Page précédente Table des matières Page suivante


Plans et spécifications

Sennes

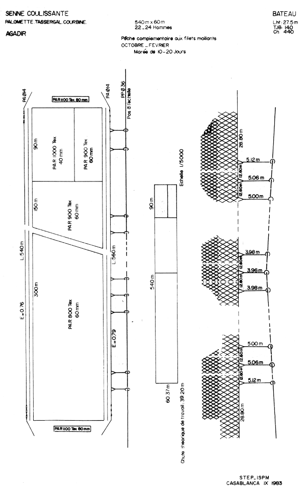
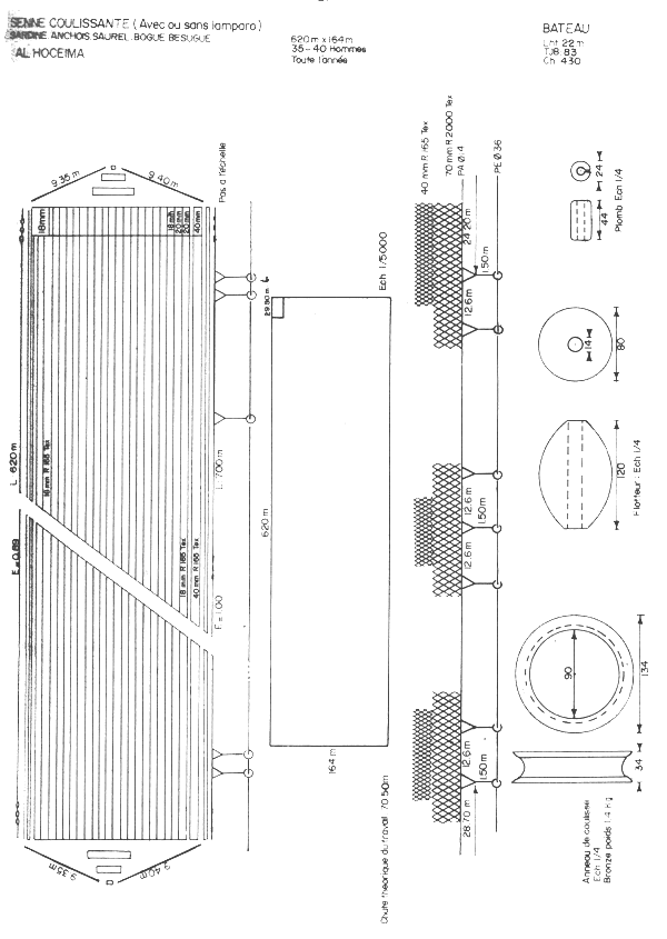
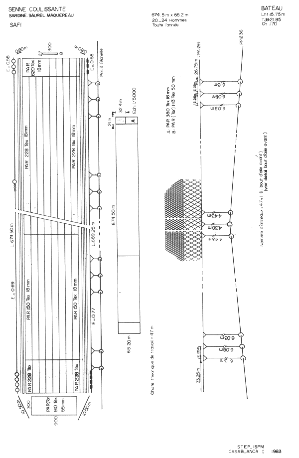
Sennes coulissantes à petits pélagiques

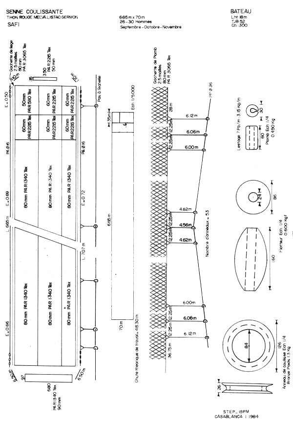
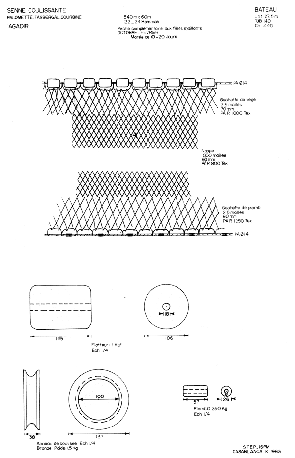
Sennes coulissantes à gros pélagiques

Sennes de plage


Page précédente Début de page Page suivante