Page précédente Table des matières Page suivante


Chaluts de fond à panneaux

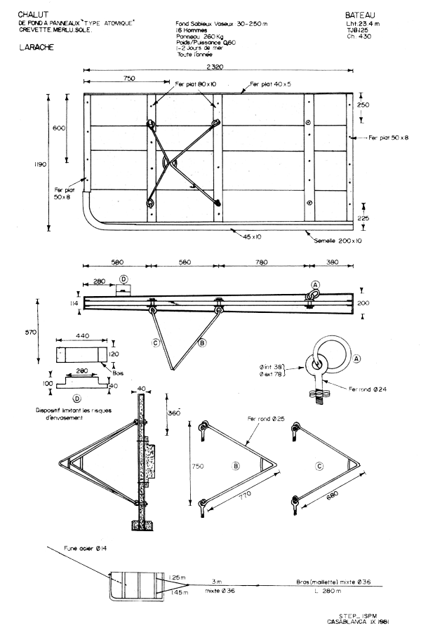
Type “Atomique”

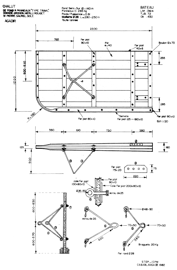
Type “Trawl”

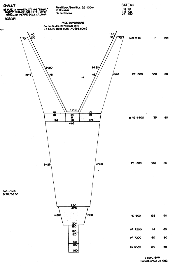
Type “Italien”


Page précédente Début de page Page suivante