Page précédente Table des matières Page suivante


ANNEXE 1


1. Dessins d'un chalutier pêche arrière de 12,8 m
2. Caractéristiques générales d'un chalutier de 12,80 m en ferrociment
3. Coûts d'un chalutier de 12,8 m en ferrociment
4. Collationnement des données sur la main d'oeuvre et les fournitures pour la construction d'un bateau en ferrociment

1 N.B. Tous les prix indiqués § 3 et 4 de l'annexe sont en Roupies indiennes et se réfèrent à l'époque de construction du chalutier en 1985-1987. Le taux de change de l'époque était: 1$ EU = 25 Rs.

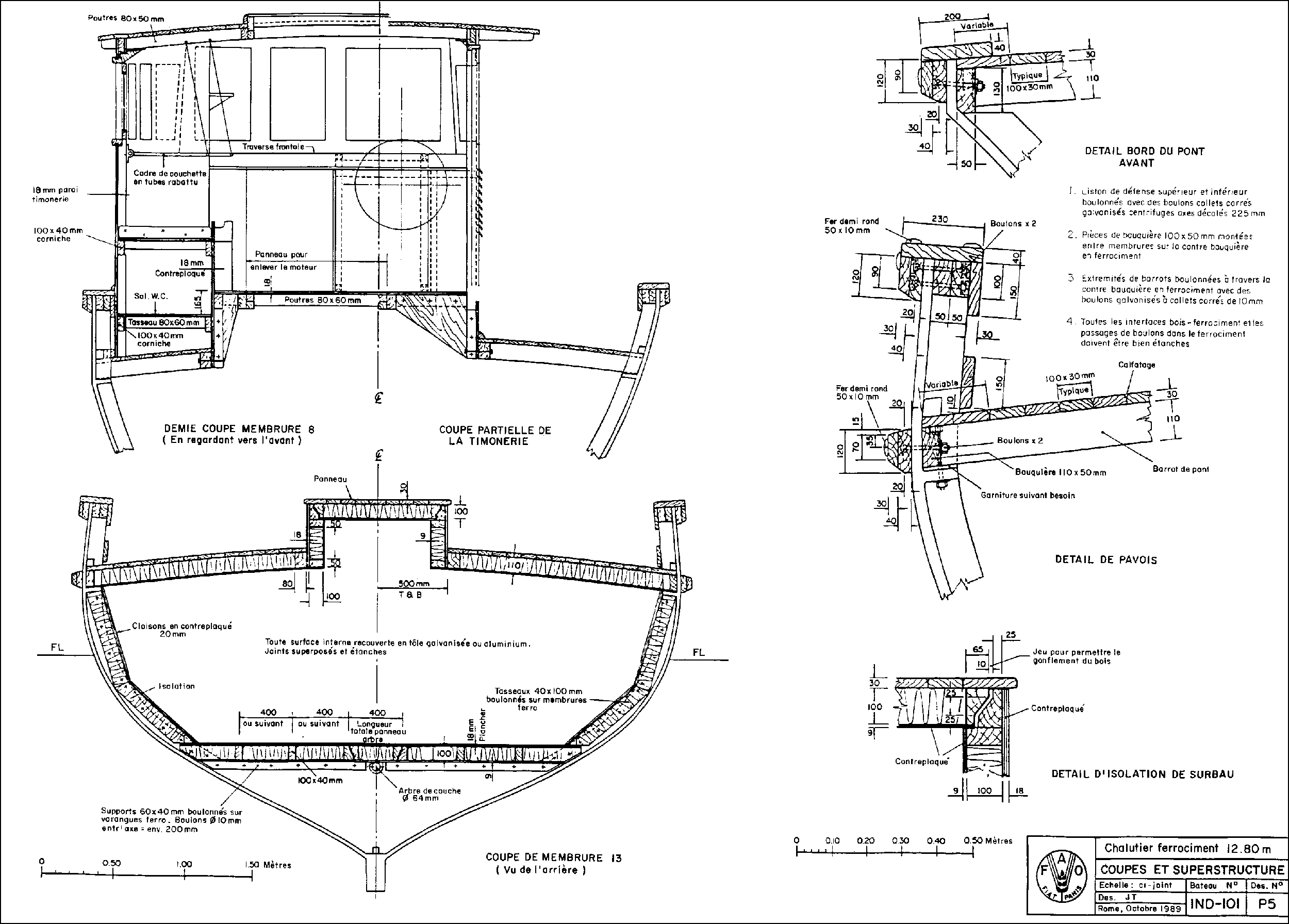
1. Dessins d'un chalutier pêche arrière de 12,8 m

Les dessins représentent un chalutier de 12,80 m en ferrociment construit en 1985-87 par l'Institut Central des Pêches et de Formation Nautique et Mécanique à Cochin, Etat de Kerala, Inde avec l'assistance technique de la FAO-ONU (dessins FAO IND-101)


LISTE DES DESSINS

Plan des formes

IND-101

P1

Construction de la coque

IND-101

P2

Aménagement général

IND-101

P3

Coupes des membrures

IND-101

P4a


IND-101

P4b


IND-101

P4c

Superstructures et coupes

IND-101

P5


P1. PLAN DES FORMES

P2. CONSTRUCTION DE LA COQUE

P3. AMENAGEMENT GENERAL

P4a. COUPES DE MEMBRURES

P4b. COUPES DE MEMBRURES

P4c. COUPES DE MEMBRURES

P5. COUPES ET SUPERSTRUCTURE

2. Caractéristiques générales d'un chalutier de 12,80 m en ferrociment

Ce chalutier a été conçu pour les conditions spécifiques de pêche règnant à Veraval, un centre de pêche de l'Etat de Gujarat. Il illustre les caractéristiques propres d'un navire en ferrociment. Les principales caractéristiques sont les suivantes:

Longueur hors tout

12,80 m

Longueur à la flottaison

12,00 m

Largeur au maitre bau

4,28 m

Hauteur sous barrot au milieu du bateau

1,99 m

Tirant d'eau

1,80 m

Moteur

Ashok Leyland ALM 680

Puissance

95 Kw à 1500 tr/min
110 Kw à 1825 tr/min

Réducteur

Inverseur hydraulique
Réducteur 3,83: 1

Vitesse

8 noeuds à 1500 tr/min

Capacité du réservoir de carburant

1433 litres

Autonomie

65 heures à 1500 tr/min

Capacité du réservoir d'eau

420 litres

Equipement

6 couchettes

Capacité de la cale à poisson

13 m3


Comparé aux chalutiers traditionnels en bois de même taille, le bateau en ferrociment est plus stable. Il a un franc bord plus élevé, une plus grande résistance, un treuil plus puissant, une cale à poisson isolée plus grande, un plus gros moteur. Il dispose d'un équipement de pont plus efficace pour les opérations de pêche. Par surcroit, le navire a quelques équipements originaux décrits ci-dessous.

Le plan N° IND-101 P2 montre la construction de la coque. Des détails de construction des membrures et de la coque sont donnés Fig. 10, montrant les ronds de 16 mm des membrures en acier au carbone, la double couche de ronds en acier de 6 mm étiré à froid et les trois couches de grillage à mailles carrées soudées de 13 × 13 × 1 mm appliquées de chaque côté (i.e. 6 couches au total) de l'armature de ronds. La coque est divisée en 5 compartiments par 4 cloisons en bois (voir aménagement général IND-101 P3).

Le pont est en bois avec un bordé de 30 mm d'épaisseur posé sur des barrots de 110 × 80 mm; le dessin IND-101 P5 montre les interfaces typiques bois/ferrociment. Le bateau a un grand pont de travail à l'arrière avec un portique supportant un enrouleur de chalut, la fune étant guidée par le treuil de chalut. Le cul de chalut est relevé par la poupée de treuil via un galet fixe sur le sommet de portique. Ainsi la pêche peut être déversée sur un pont complètement dégagé et triée dans les parcs à poisson avant d'être arrimée en bas. Le treuil de chalut à trois bobines est entrainé mécaniquement à partir du moteur principal par un embrayage et un arbre intermédiaire. Le treuil est équipé d'un guide cable mécanique. Il a une traction de 1 tonne au diamètre moyen. La capacité de la bobine est de 800 m de fune de 12 mm.

La cale à poisson est isolée avec de la mousse de polystyrène épaisse de 10 cm. Ceci permet de conserver le poisson en glace jusqu'à 6 jours: la cale peut être subdivisée pour transporter la glace jusqu'aux lieux de pêche et pour stocker séparément diverses espèces de poisson si on le désire. Le graisseur du tube d'étambot peut être vérifié et rempli en enlevant un élément de l'isolation au fond de la cale à poisson.

Le moteur, un Ashok Leyland ALM 680 entraine une hélice Kaplan à 3 pales de 1,17 m de diamètre et un pas de 0,761 montée avec un tube de Kort donnant une vitesse de chalutage de 3,7 noeuds à 1600 tr/min et une vitesse de 8,8 noeuds en route libre.

La timonerie s'étend jusqu'au pavoi babord pour disposer d'une capacité de logement maximum. Le plancher de la timonerie repose sur un chassis en bois dur et est isolé par du matériau incombustible. Il comprend une écoutille encastrée pour faciliter l'enlèvement du moteur.

Le bateau peut accueillir 6 personnes avec 4 couchettes dans le gaillard d'avant et 2 couchettes dans la passerelle. Il y a des toilettes séparées avec passage par le pont. On a une bonne vue sur le pont de travail par deux fenètres situées à l'arrière de la passerelle.

L'équipement électrique fonctionne en 12 volts avec deux batteries de 180 Ah; l'une sert uniquement au lancement du moteur et l'autre pour l'éclairage. Tous les circuits sont convenablement cablés avec interrupteurs et fusibles. Les coffres à batteries sont recouverts de plomb et ventilés..

L'équipement de sécurité est conforme aux exigences du département de la marine marchande et des autorités portuaires locales. L'équipement comprend:

1 radeau de survie pour 6 hommes
2 bouées couronne (une avec une ligne d'attrappe flottante de 18 m)
6 gilets de sauvetage
12 fusées de détresse avec parachutes
Une batterie d'extincteurs.

3. Coûts d'un chalutier de 12,8 m en ferrociment

Ce chapitre couvre les coûts de production du chalutier de 12,8 m en ferrociment. La première coque a été construite entre Mai et Août 1985. L'équipement du navire a été réalisé entre Mars 1986 et Mars 1987, cette durée correspondant aux exigences générales du projet entrepris.

Le coûts sont divisés en quatre groupes:

1. La dépense en capital pour les gabarits et modèles nécesssaires pour construire la coque à partir de zéro et considérés comme des éléments réutilisables et dont le coût n'a pas été inclus dans les dépenses finales du bateau (bien que l'on puisse l'amortir sur plusieurs bateaux). Cet élément est inclus pour mémoire comme coût de mise en oeuvre du premier bateau en ferrociment.

2. La décomposition des coûts de production de l'élément en ferrociment du bateau.

3. La décomposition en chapitres des coûts de l'équipement.

4. Une analyse générale des coûts.

La coque a été faite en suivant la méthode de fabrication établie dans les chapitres précédents de cet ouvrage.

Les coûts exposés sont particuliers à un pays et maintenant périmés, ils sont cependant intéressants. Ils indiquent, en effet, la distribution et l'ampleur des dépenses en utilisant un bateau particulier comme un exemple pour lequel on a enregistré et détaillé les composantes du prix de revient.

3.1 Coûts de gabarits et modèles

a) Matériaux

Quantité

Description

Utilisation

Valeur: Rs

239 kg

Fer U de 150 × 75 × 6 mm

Gabarit de quille

1664,15

18,5 kg

Fer plat 100 × 6 mm

Gabarit de quille

138,38

24

Boulons tête hexa avec écrous et rondelles

Gabarit de quille

64,56

15 kg

Fer U 150 × 75 × 6 mm

Paliers

104,45

119 kg

Fer cornière 50 × 50 × 6 mm

Tréteaux de gabarit de quille

774,60

76,5 kg

Fer cornière 40 × 40 × 5 mm

Gabarit de quille

567,63

18 kg

Fer cornière 40 × 40 × 3 mm

Gabarit de quille

119,23

10 kg

Fer cornière 30 × 30 × 3 mm

Gabarit de quille

65,61

5 kg

Fer plat 40 × 3 mm

Gabarit de quille

34,00

14 kg

Fer cornière 50 × 50 × 6 mm

Supports de tiges de suspension

103,88

12 kg

Fer cornière 40 × 40 × 3 mm

Etriers de tiges de suspension

79,49

3,5 kg

Fer plat 40 × 3 mm

Etriers de tiges de suspension

23,80

70 m

Tube carré 25 × 25 mm

Tiges de suspension

2312,76

79 m

Tube carré 30 × 30 mm

Tiges de suspension

4281,01

19 m

Tige filetée M 10

Tiges de suspension

570,19

98

Boulons 45 × 10 120 rondelles

Tiges de suspension 150 écrous Tiges de suspension

212,78

15 kg

Fer cornière 50 × 50 × 6 mm

Etais en A

97,65

40 kg

Fer cornière 40 × 40 × 3 mm

Etais en A

264,96

64 kg

Fer cornière 35 × 35 × 6 mm

Entretoises

446,34

8 paquets

10 Baguettes de soudure

Gabarit de quille Etais en A Tiges de suspension

617,36

2,5 litres

Peinture de fond rouge

Générale

74,45

8 panneaux

1,8 × 0,9 m × 6 mm contreplaqué

Gabarits

933,04

1 panneau

1,8 × 0,9 m × 3 mm contreplaqué

Gabarit de bouge du pont

171,63

17 panneaux

2,4 × 1,2 m × 3 mm isorel

Plan vertical

1929,50

1 panneau

2,4 × 1,2 m × 9 mm contreplaqué marine

Gabarits

525,10

15 kg

Couleur à détrempe à base d'huile

Traçage

307,10

3,25 kg

Pointes

Générale

37,43

13

Lames de scies à métaux 30 cm

Générale

103,93

0,11 m3

Bois de teck

Lattes de traçage

1000,00

6 m3

Oxygène

Général


3 m3

Acétylène

Général

253,35


Coût total des matériaux (Livraison et taxes comprises)


Rs 17 878,91


b) main d'oeuvre pour la réalisation des gabarits et modèles Rs 17 248,87

Total des coûts de matériaux et main d'oeuvre Rs 35 127,78

3.2 Coûts de la coque (bâtis de moteur, varangues, porques, quilles de roulis, chemises de tubes d'étambot et de jaumière inclus).

A) Matériaux

Quantité

Description

Utilisation

Valeur: Rs

79 kg

Fer plat 25 × 3 mm

Membrures

527,25

45 kg

Fer cornière 25 × 25 × 3 mm

Membrures

293,58

28 longueur

Tube gaz noir 20 × 27

Membrures

3593,53

192 kg

Fer rond 12 mm

Membrures, bâtis de moteur etc.

1436,54

556 kg

Fer rond 16 mm

Membrures, quilles, étraves, tableau

4075,48

2 m

Tige filetée M 10

Quille

60,02

600

Boulons T.H. 25 × 8 mm

Membrures

186,00

140

Boulons T.H. 25 × 8 mm

Plat bord

43,40

110

Boulons T.H. 25 × 8 mm

Bauquière

34,10

70

Boulons T.H. 25 × 8 mm

Porques du tableau

21,70

90

Boulons T.H. 25 × 8 mm

Evacuations d'eau

27,90

130

Boulons T.H. 25 × 8 mm

Dalots (16)

40,30

2280

Ecrous 8 mm

Générale

410,40

2280

Rondelles grower 8 mm

Générale

196,08

14 kg

Fer cornière 40 × 40 × 3 mm

Montage

92,74

7 kg

Fer cornière 40 × 40 × 3 mm

Soutiens du tableau

46,37

13 kg

Fer plat 25 × 3 mm

Anguillers

86,76

45 kg

Fer cornière 30 × 30 × 3 mm

Plat bord

315,00

35 kg

Fer cornière 30 × 30 × 3 mm

Bauquière

245,00

6 kg

Fer cornière 30 × 30 × 3 mm

Soutiens de tableau

42,00

9 kg

Fer cornière 30 × 30 × 3 mm

Entretoisement général

63,00

13 kg

Fer plat 30 × 3 mm

Bauquière et dalots

90,01

36 kg

Fer plat 30 × 6 mm

Plat bord

247,00

33 kg

Fer plat 30 × 6 mm

Bâtis de moteur

226,41

58 kg

Fer plat 50 × 6 mm

Montage de membrure

374,74

5 kg

Fer plat 75 × 6 mm

Gabarit d'étrave

37,40

55 kg

Fer carré 12 × 12 mm

Bauquière

364,32

82 kg

(6,5 m)fer plat 100 × 15 mm

Bâtis de moteur

615,00

6 m

Tiges filetées M 20

Bâtis de moteur

520,62

36

Ecrous M 20

Bâtis de moteur

53,64

1 m

Tige filetée 20 mm

Paliers

86,77

8

Ecrous M 20

Paliers

11,92

81 kg

Fil de fer recuit 1,6 mm

Ligatures

805,64

1047 kg

Ronds acier étiré 6 mm

Générale

11710,53

280 kg

Ronds acier étiré 8 mm

Générale

3132,06

22 rouleaux

Grillage galvanisé 30 m × 1 m × 13 × 13 × 1 mm

Total: 660 m²

24538,80

6½ rouleaux

Grillage galvanisé 30 m × 1,4 m × 13 × 13 × 1 mm

Total: 273 m²

10133,21

25 paquets

10 baguettes soudure

Générale

1929,25

1 litre

Peinture de fond rouge

Plat bord/membrures

29,78

6 m

Bois dur 110 × 50 (0,01 m3)

Bâtis de moteur

86,60

1,22

Camion de sable

Coulée du mortier

319,64

1 tonne

Glace

Coulée du mortier

153,60

110 sacs

Ciment Portland ordinaire

Coulée du mortier

6894,80

2 boites

Craie blanche

Générale

11,26

30

Lames de scie 300 mm

Générale

244,44

1

Lame de scie 450 mm

Générale

47,44

9

Lames de scie 355 mm

Générale

390,24

10 kg

Huile de détrempe

Traçage

205,10

200

Mudi (Bastin)

Durcissement du mortier

80,00

6 m3

Oxygène et 3 m3 acétylène

Générale

242,31


Location d'une génératrice 10 Kw

Coulée du mortier (en attente)

2550,00


Location aiguilles vibrantes

Coulée du mortier 2 × 40 mm

150,00

2

Location de baches 4,5 m × 3,5 m

Coulée du mortier

24,00

13 kg

Résine polyester de rebouchage

Porques, varangues

748,02

3 kg

Mastic marine

Rebouchage

301,68

1

Chemise

Tube d'étambot

1500,00

1

Chemise

Tube de jaumière

944,00

1

Crapaudine complète

Gouvernail

1740,50


Coût total des fournitures (livraisons et taxes incluses)

Rs 83377,88


b) Main d'oeuvre

Coût de la main d'oeuvre pour construire la coque y compris le coût des cimentiers sous contractants pour: Rs 4887,00

Coût total main d'oeuvre:

Rs 40660,69

Coût total:

Rs 124038,57


Le coût moyen de main d'oeuvre pour la coque a été de Rs 47,50 par jour ouvrable de 7 heures (1985). On doit garder à l'esprit le fait que toute la main d'oeuvre utilisée découvrait la construction en ferrociment et avait l'habitude de travailler pour un institut gouvernemental. Les chiffres du coût de main d'oeuvre auraient été considérablement réduits si la coque avait été construite par le secteur privé.

3.3 Coût de l'armement

Du fait que ce qui est appelé “pratique normale” pour fixer les prix de bateau varie tellement d'une région de construction à une autre, on a pensé qu'il était inutile de détailler les éléments de l'armement du bateau. On a cependant considéré qu'une liste par groupes de travaux d'armement pouvait être utile.

On peut faire un choix dans un certain nombre d'éléments de la liste pour établir le prix d'un ensemble donné.

Les dessins et descriptions donnnés dans l'annexe peuvent aider à évaluer la qualité et l'étendue du travail réalisé

Une liste récapitulative des coûts des fournitures et de main d'oeuvre est donnée dans le tableau 3 pour l'armement d'un bateau de 12,8 m. Le coût de la coque est inclus (article 1) pour donner le coût total du navire.

Le salaire moyen au moment de l'armement était monté à Rs 56,60 par journée ouvrable de 7 1/2 heures.

3.4 Analyse du prix de revient

Quand on examine les chiffres, on doit tenir compte des points suivants:

a) Tous les prix des fournitures comprennent le transport et les taxes.

b) Le coût total est sans frais généraux ni bénéfice.

c) On peut espérer un prix moins élevé pour les raisons suivantes:

i) Le bateau a été construit dans le cadre d'un projet de formation, FAO/Gouvernement indien.
ii) Le bateau était de conception nouvelle et incorporait plusieurs équipements encore inconnus (du personnel).

iii) Le prix de revient de la main d'oeuvre due à (i) et (ii) devait, par la force des choses, être plus élevé que dans une entreprise commerciale.

iv) L'achat des fournitures par l'administration gouvernementale prend plus de temps et coûte plus cher que par une entreprise commerciale, à cause de la procédure de paiement et d'appel d'offre.

Il paraitrait honnête, pour estimer les coûts d'une entreprise commerciale sans frais généraux ni bénéfice, de réduire les chiffres de main d'oeuvre de 25 % et les coûts des équipements pour l'armement - excluant le moteur, les pièces de rechange du moteur, les appareils à gouverner et propulsifs, la tuyère, le portique, le treuil et les appareils de pêche - de 20 %.

Les observations ci-dessus sont faites pour fournir une image plus réaliste à ceux qui veulent utiliser ces chiffres pour essayer d'établir leurs propres prix de revient

4. Collationnement des données sur la main d'oeuvre et les fournitures pour la construction d'un bateau en ferrociment

Le procédé le plus facile pour analyser la main d'oeuvre pour la construction en ferrociment consiste à diviser les tâches. Par exemple pour la construction de la coque:

1. Fabrication des membrures, étrave et tableau arrière inclus

2. Pose du grillage sur les membrures

3. Montage de la quille, des membrures, de l'étrave et du tableau

4. Alignement de la coque

5 Montage de la chemise du tube d'étambot

6. Montage complet des bâtis de moteur

7. Montage des supports de paliers

8. Assemblage du livet de pont création des points de la brisure

9. Montage complet de la bauquière

10. Porques de tableau

11. Porque de la ligne centrale

12. Ferraillage complet de la coque

13. Pose complète du grillage de coque

14 Quilles de roulis finies

15. Montage de l'appareil à gouverner, chemise et sabot de quille

16. Passages de coque, découpes de dalots, chaumards

17. Inspection de la coque

18. Coulée de la coque

19. Durcissement du mortier

20. Essais à l'eau, dépose de l'échafaudage, rebouchage des trous de boulon et de la coque

Tableau 2: Prix de revient récapitulatif d'un chalutier de 12.8 m en ferrociment

Description

Fournitures

Main d'oeuvre

Coût total Rs

% du coût

1. Construction de la coque

83377,88

40660,69

124038,57

10,68

2. Moteur ALM 680 avec réducteur/inverseur hydraulique.

222708,50




Prise de force, arrivée et départ d'eau de mer, échappement, commandes, etc..

6454,17

3283,15

232445,82

20,03

3. Appareil propulsif avec hélice Kaplan 3 pales

42513,63

479,85

42993,48

3,70

4. Tube de Kort

10446,73

10730,95

21177,68

1,82

5. Appareil à gouverner avec commandes

21509,53

1237,50

22747,03

1,96

6. Système de lavage de cale et de pont

13930,54

1692,09

15622,63

1,35

7. Réservoirs à carburant complets

8002,36

3358,91

11361,27

0,98

8. Réservoir d'eau douce équipé

2394,37

2904,33

5298,70

0,46

9. Mécaniques diverses

7333,20


7333,20

0,63

10. Installation électrique

16372,28

2601,27

18973,55

1,63

11. Pont, cloisons, planchers, supports gaillard d'avant,

110498,79

57758,20

168256,99

14,49

12. Cale à poisson panneaux de séparation

65904,13

14395,36

80299,49

6,91

13. Evier, WC

6113,37

1969,89

8083,26

0,70

14. Main courante et pavois

4340,34

4040,80

8381,14

0,72

15. Equipement général de pont

39364,64

4545,91

43910,55

3,78

16. Portique terminé

9137,56

5909,67

15047,23

1,30

17. Treuil complet avec arbre intermédiaire et commandes

39159,23

3813,51

42972,74

3,70

18. Anodes de coque

525,76

404,08

929,84

0,08

19. Peinture terminée

36263,33

6642,07

42905,40

3,69

20. Ferrures

19099,24


19099,24

1,64

21. Lancement, essais et finitions

39139,20

1161,73

40300,93

3,47

22. Pièces détachées du moteur réducteur/inverseur

28185,31


28185,31

2,43

23. Options

91718,00

1464,80

93182,80

8,02

24. Apparaux de pêche complets avec 6 chaluts et 2 jeux de panneaux

61434,71

6293,11

67727,82

5,83

Coûts totaux sans frais généraux ni bénéfice

985926.80

175347.87

1161274,67

100,0


Naturellement les coûts de préparation des tiges de suspension, de la quille et des divers gabarits devraient être portés dans un chapitre séparé et amortis sur un certain nombre de coques à construire sur le même modèle.

En répartissant la main d'oeuvre sous les titres ci-dessus, on peut avoir une idée claire à partir de deux ou trois coques quant au nombre d'heures nécessaires pour chaque étape du travail. On peut également avoir une indication sur les coûts comparés d'une contre-bauquière en ferrociment et d'une bauquière en bois.

Matériau

La seule manière de tenir un compte exact des matériaux utilisés est d'avoir tous les éléments bien rangés et les sorties notées chaque jour ou de connaitre les quantités en stock avant de commencer un travail particulier et de reprendre le stock après ce travail. Il est évident que si on construit plusieurs bateaux à la fois, il vaut mieux utiliser la première méthode.

Si les fournitures sont rangées par taille, la tenue du stock est un travail facile jusqu'à un certain point, de même que la sortie des fournitures des magasins en est très simplifiée.

On peut noter les sorties sur une base journalière en les affectant à une opération et en les transférant dans les dossiers des opérations. On peut ensuite calculer les coûts à partir d'un index du stock, dont les prix sont remis régulièrement à jour, incluant les taxes et les frais de transport et calculés en coût au Kg, au mètre ou sur une base de quantité.

Chaque partie des dossiers de travaux permet d'identifier rapidement l'opération chiffrée i.e. travail de gabarit, fabrication de la coque, etc..

Prix de revient et estimation du travail du ferrociment

Naturellement pour faire un prix de revient ou une estimation, il vaut mieux disposer déjà de quelques éléments de coûts à partir de travaux effectués antérieurement.

A partir de cette expérience, on peut calculer la main d'oeuvre et les matériaux par mètre carré. Pour faire une telle estimation, il est préférable de disposer des éléments de coûts de plusieurs types de bateaux.

Pour une estimation, quand on n'a aucune expérience antérieure, des exemples sont donnés ci-dessous pris à partir du projet de Cochin sur une première construction en utilisant des ouvriers qualifiés mais ne connaissant pas la construction en ferrociment.


Coût des matériaux
Taxe comprise

Main d'oeuvre
au m2

a) Coque d'un bateau de pêche de 10,5 m

Rs 730/m2

60 h/m2

b) Coque d'un bateau de pêche de 12,8 m

Rs 730/m2

53 h/m2


Ces chiffres concernent 1985, une estimation faite aujourd'hui devrait tenir compte de l'inflation, du coût proportionnel des gabarits, des frais généraux et du bénéfice pour avoir un prix de vente réactualisé.

Les chiffres de main d'oeuvre ci-dessus devraient être énormément changés pour établir une comparaison avec les temps réels dans une construction commerciale d'un navire semblable avec du personnel bien formé et travaillant avec un système de primes:


Main d'oeuvre / m²

a) Coque d'un bateau de pêche de 10,5 m

21,5 h/m2

b) Coque d'un bateau de pêche de 12,8 m

19 h/m2


Il est par conséquent essentiel de connaitre les capacités de son personnel pour pouvoir évaluer les coûts avec précision. Le tableau 3 est établi pour faciliter l'estimation des coûts de la construction en ferrociment

Tableau 3 Estimation du prix de revient du ferrociment

Type de coque______________

Travail N°______________

Préparé par________________

Dâte: _________________

Calcul des surfaces

1. Coque________________

5. Contrebauquière _____________

9. Hiloires______________

2. Porques______________

6. Cloisons____________________

10. Quilles de roulis ______

3. Varangues____________

7. Pont_______________________

11. Porques longit _______

4. Bâtis de moteur _______

8. Porques de pont _____________

12. Massifs_____________

Surface totale ______m2


Main d'oeuvre:







Heures à

de l'heure

___

___

___

___

___


Frais généraux à %

___

___

___

___

___


Total main d'oeuvre

___

___

___

___

___

Matériaux:







m² à


le m²

___

___

___

___

___


Frais généraux à %

___

___

___

___

___


Total matériaux:

___

___

___

___

___


Coût main d'oeuvre sous contractée

___

___

___

___

___


Coût indemnités déplacement

___

___

___

___

___


Coût société classification

___

___

___

___

___


Frais généraux à %

___

___

___

___

___


Total divers

___

___

___

___

___


Coût total:

___

___

___

___

___


Marge bénéficiaire %

___

___

___

___

___

Coûts additionnels:







a)

Royalty des architectes naval

___

___

___

___

___


b)

Traçage

___

___

___

___

___


c)

Coût de remise en état des gabarits

___

___

___

___

___


d)

Coût du ber

___

___

___

___

___


e)


___

___

___

___

___


Prix de revient total:







Prix de vente jusqu'à 19 (hors livraison, transport et taxe)________


Page précédente Début de page Page suivante