Z. Hankó
Research Centre for Water resources Development
Budapest, Hungary
1. WATER CONVEYING CAPACITY OF PIPELINES
2. WATER CONVEYING CAPACITY OF OPEN CANALS
3. OUTFLOW UNDER GATES AND MOVABLE WEIRS
4. FLOW OVER WEIRS
1.1 Calculation of Head Loss
1.2 Fundamental Equation for Calculating Head Loss in and/or Discharge of Pipelines
Most important notations:
Q (m3/s) = discharge
l (m) = length of the pipeline
d (m) = diameter (inside) of the pipe
A = d2p /4 (m2) - area of the pipe cross-section
v= Q/A (m/s) - mean velocity in the pipe cross-section
g = 9.81 (m/s2) - acceleration due to gravity
n = (m2/s) = kinematic viscosity of water at10°C temperature n 10 = 1.31 × 10-6 m2/sl (-) = friction factor.
20°C temperature n 20 = 1.00 × 10-6 m2/s
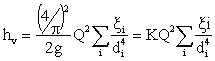
Transport of water in a pipe-line involves head loss. The most important part of head loss is due to friction which is proportional to the length of the pipeline. The second most important part of head loss consists of the sum of local head losses caused by changes in direction, changes in diameter and pipe fittings such as tap, valve, etc. The general form of the equation for head loss, measured in height of water column is:
|
|
(1.1) |
where hv (m) = head loss in height of water column, x i (-) = resistance coefficient, v2i/2g (m) = velocity head in height of water column. It is generally calculated by the downstream cross-section of the head loss producing cross-section. The main part of the head loss is due to friction, the resistance coefficient of which is:
|
|
(1.2) |
The friction factor, l, may be calculated by the Colebrook-White equation
|
|
(1.3) |
where
e (m) = surface roughness of the pipe material (Table 1)
Re = vd/n (-) = Reynolds Number of the flow.
Table 1 Surface Roughness of the Pipe Material
|
Pipe material |
e (m) |
|
Riveted steel |
(90 to 9) × 10-4 |
|
Concrete |
(30 to 3)×10-4 |
|
Wood stave |
(20 to 2)×10-4 |
|
Cast iron |
2.5×10-4 |
|
Galvanized iron |
1.5×10-4 |
|
Asphalted cast iron |
1.2×10-4 |
|
Commercial steel |
0.5×10-4 |
|
Wrought iron |
|
|
Drawn tubing |
0.15×10-4 |
Equation (1.3) is represented in Figure 1, originally found by Nikuradze and later completed by Colebrook and White, in which the friction factor, l, is the function of the Reynolds Number, Re, and the third parameter is the relative surface roughness of the pipe material, e /d. Supposing n = 1 m/s mean velocity, d = 100 to 500 mm diameter, e = 1×10-4 m surface roughness and n = 1×10-6 m2/s kinematic viscosity the region of practical value is:
1×105 < Re < 5×105 and
0.02<l <0.03
The resistance coefficient of local head loss is mainly characterized by the type of fitting causing it. The numerical values of the various resistance coefficients are determined by experiments. The empirical relationships and numerical values of the most important causes of local head loss are summarized below.
a) Elbow pipe
|
|
(1.4) |
a - sudden change in direction (if a = 90°, then x a = 1).
Figure 1. Friction factor vs. Reynolds Number and relative surface roughness of pipe material
b) Bend (Table 2)
Table 2 Resistance Coefficient (x b) of Right-Angled Bend (a = 90)
|
R |
Re = 1.0×105 |
Re = 1.4×105 |
Re = 1.8×105 |
Re = 2.2×105 | ||||
|
d |
Smooth |
Rough |
Smooth |
Rough |
Smooth |
Rough |
Smooth |
Rough |
|
1 |
0.28 |
0.52 |
0.24 |
0.52 |
0.23 |
0.52 |
0.22 |
0.52 |
|
2 |
17 |
31 |
15 |
29 |
13 |
28 |
14 |
28 |
|
4 |
13 |
25 |
10 |
24 |
09 |
23 |
11 |
23 |
|
6 |
10 |
23 |
08 |
18 |
07 |
18 |
08 |
18 |
|
10 |
11 |
23 |
09 |
20 |
09 |
20 |
11 |
20 |
The roughness of the pipe-wall and relative radius of curvature, R/d, has a similar effect in order of magnitude on the resistance coefficient, while the variation of Reynolds Number, Re, involves hardly any change.
If the change of direction is different from a right angle, then
|
|
(1.5) |
c) Sudden expansion (increase of diameter from d1, to d2) 2
|
|
and |
(1.6) |
|
|
(1.7) |
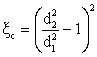
d) Sudden contraction (decrease in diameter from d1 to d2; Table 3)
Table 3 Resistance Coefficient (x d) of Sudden Contraction
|
(d1/d2)2 |
0.01 |
0.1 |
0.2 |
0.4 |
0.6 |
0.8 |
|
x d |
0.50 |
0.50 |
0.42 |
0.33 |
0.25 |
0.15 |
Calculated by the velocity head of the "2" cross-section in accordance with Equation (L.6).
e) Gradual expansion or diffusor (increase of diameter from d1 to d2) The resistance coefficient in Equation (1.6).
|
x e = y k |
(1.8) |
where
k = l/d1 length of the diffusor and
y = function (b °, k), b ° = expansion angle of the diffusor, (Figure 2)
f) Gradual contraction (decrease of diameter from d1 to d2)
The resistance coefficient in Equation (1.6)
|
|
(1.9) |
where
l = friction factor and
l = length of the contraction.
g) Entrance (from a still water body to a pipe with diameter d). The resistance coefficient in Equation (1.6) (from sharp edged to bell mouth) can be estimated as
x = 0.5 to 0.04
h) Exit1/ - (from a pipe with diameter d to open air or a still water body)
|
|
(1.10) |
1/ Previously the head loss has always been calculated by the velocity head of the downstream cross-section. The exception is the exit head loss which must be calculated by the velocity head of the upstream cross-section
j) Valve produces head loss when fully opened (in decreasing rate by increasing diameter), but it is much more important to consider the effect of the closing rate, which is characterized by the relative increment, a/d (Table 4).
Table 4 Resistance Coefficient of Valve (x j)
|
|
a/d | ||||||||||
|
|
0.95 |
0.9 |
0.8 |
0.7 |
0.6 |
0.5 |
0.4 |
0.3 |
0.2 |
0.1 |
0.0 |
|
d mm |
|
|
|
|
|
|
|
|
|
|
|
|
150 |
850 |
215 |
47 |
16 |
7.0 |
3.3 |
1.7 |
1.50 |
0.68 |
0.46 |
0.33 |
|
300 |
680 |
165 |
35 |
12 |
5.5 |
2.7 |
1.3 |
0.65 |
0.29 |
0.15 |
0.05 |
|
900 |
|
|
28 |
9 |
4.0 |
1.8 |
|
|
|
|
|
k) Foot-valve and protecting screen involves a definite head loss at the suction side of a pump (Table 5)
Table 5 Resistance Coefficient of Foot-Valve and Protecting Screen (x k)
|
d mm |
40 |
50 |
70 |
100 |
150 |
200 |
300 |
500 |
750 |
|
x k |
12 |
10 |
8.5 |
7.0 |
6.0 |
5.2 |
3.7 |
2.5 |
1.6 |
l) Suction shaft of vertical shaft with semi-axial flow pump
For a suction shaft of 3.5 d width and 4 d depth, with a gap of 0.8 d between the bottom and suction pipe, the resistance coefficient can roughly be estimated by the empirical relationship:
|
|
(1.11) |
and consequently:
|
|
(1.12) |
Figure 2. Diagram for calculating resistance coefficient of gradual expansion (diffusor)
Figure 3. Diagram for calculating resistance coefficient of screens
m) Screens1/ (e.g. at the entrance cross-section of a suction shaft) with a flow direction perpendicular to the screen and horizontal. The general relationship of the resistance coefficient is:
1/ Similar to the exit head loss, the head loss of the screen must be calculated by the upstream velocity head
|
x m = kf ka x 1 |
(1.13) |
where kf is a correction factor for the cross-section shape of the bars and ka is a correction factor for inclination of the screen, while x 1 is the basic resistance coefficient of the screen with rectangular bars, the cross-section of which is s times l (s is perpendicular to flow direction), with a gap, b, between the bars, and with an inclination of the screen of 70° to the bottom. That means:
x 1 = F1 (s, l, b)
as shown in Part A of Figure 3, while kf, is indicated as Part B and ka as Part C of the same figure.
As indicated in Equation 1.1 (or 1.6) the head loss and discharge in a pipeline are mutually interrelated by the velocity head. The general relationship can be rearranged
|
|
(1.14) |
where
, a constant factor,
Q(m3/s) = discharge,
x i (-) = resistance coefficient and
di (m) = diameter of the pipe, while
hv (m) head loss in height of water column, or conversely
|
|
(1.15) |
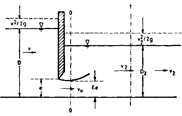
Pipelines are regarded as short pipelines if local head losses must not be neglected compared to friction head loss. As an example see Figure 4, where as well as the manometric head of the pump, the suction head can also be calculated.
a) Manometric head of the pump is
where
H(m) is the geometric head and
(m) is the sum of local and friction head losses, which, in the particular case of Figure 4, consist of:
|
- screen: |
|
|
|
- suction shaft: |
|
|
|
- foot-valve: |
|
- friction (1): |
|
- bend (1): |
|
friction (2): |
|
|
|
friction (3): |
|
- bend (2): |
|
friction (4): |
|
- valve: |
|
friction (5): |
|
- exit: |
|
|
As a consequence the manometric head of the pump equals:

where on the right hand side all of the numerical values are known (as di, li, Q, g, p) or can be calculated (as x m, x k, l 1, x b,l 2, x j, l 3 ) according to the previous section.
b) The suction head, Hs, of the pump must be less than the head of vacuum, Hvac = 10 m:
For practical purposes Hs max = 6 to 7 (m)
Pipelines can be regarded as long pipelines if local head losses can be neglected compared to friction head loss. (l/d > 500 to 1 000). As an example see Figure 5. For calculating discharge or pipe diameter the basic equation is:
|
|
(1.16) |
and by rearranging
|
|
(1.17) |
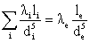
The denominator in the square root can be replaced by the same group of parameters corresponding to the "equivalent pipe" as follows:
|
|
(1.18) |
where
l e = friction factor of the "equivalent pipe",(m) = the total length of the pipeline, and
de (m) = diameter of the "equivalent pipe". Supposing
l 1 = l 2 = ... = l i = ... = l e = 0.02 to 0.03 = constant, the "equivalent pipe" diameter amounts to:
|
|
(1.19) |
and the discharge transported equals:
|
|
(1.20) |
Figure 4. Sketch of a short pipe-line for calculating manometric and suction head of pumps
Figure 5. Sketch of a long pipe-line for calculating head-loss in or discharge of a pipe line
The diameter of the pipe cross-section can be calculated by re-arranging Equation (1.20)
|
|
(1.21) |
2.1 Fundamentals for Calculating the Characteristics of Uniform Steady Flow in Open Canals, the Chézy Formula
2.2 The Velocity Coefficient (Chézy's C)
2.3 Characteristics of the Canal Cross-Section, Permissible Velocity
2.4 Computation of Cross-Section Dimensions or Discharge
Most important notations (beyond those summarized in Section 1) are:
D (m) = water depth,
P (m) = wetted perimeter of the cross-section,
R = A/P (m) = hydraulic radius of the cross-section,
S (-) = slope (energy grade line, water surface or pressure grade line in longitudinal section),
C (m1/2/s) = Chézy (velocity) coefficient.
Before embarking upon any detailed treatment of open channel flow, it is advisable to review the different conditions of flow. As is known, the flow in open channels may be classified according to variation with respect to both location and time.
Considering variation with respect to location, distinction is made between:
- uniform flow, in which the cross-section and the mean velocity remain constant along the stream lines, and- varied flow, in which the wetted area (A) and/or the mean velocity (v) undergo changes, viz.
= gradually varied flow (changes in A and v are gradual and continuous), and
= suddenly varied flow, where abrupt changes occur in A and v at certain sections.
Considering variation with respect to time, the flow may be classified as:
- steady, in which the characteristics of the flow remain unchanged at the cross-section under consideration, and- unsteady, in which the flow characteristics are varying in time at the same point.
Combining the two kinds of classification, the flow in open channels may be:
- uniform steady (e.g. prismatic canal, the water surface parallel to the bottom),
- gradually varied steady (e.g. back-water reaches),
- suddenly varied steady (e.g. at overfalls),
- gradually varied unsteady (e.g. the passage of flood waves),
- suddenly varied unsteady (e.g. surge waves).
Taking into account the aims of the present course the most important flow-types are the uniform steady flow in open canals (the calculation methods of which will be summarized below), and the suddenly varied steady flow (the calculation methods of which will be introduced in Sections 3 and 4).
In uniform steady flow the slope of the water surface, Sw , is parallel to the slope of the bottom, S , and to the energy grade line, Se . Consequently the water depth, D, and the mean velocity, v, are constant. In other words the loss in energy is due to friction (Figure 6). That means the energy loss. D h , over the length, D l¢, equals D h, the height difference between cross-sections "A" and "B", respectively. The work performed by the water body (the cross-section area of which is A and thickness in flow direction 1 m), due to gravity from cross-section "A" to "B", equals
|
G = g A (1 m) D h |
(2.1) |
in which g = r g (g specific gravity, r = mass density and g = acceleration due to gravity). The resistance force due to friction is proportional to the square of velocity (turbulent flow), v2, and the area of contact, P (1 m), and to some kind of friction coefficient, f. So the work performed by friction over the length, D l¢, equals
|
F = f v2 p (1m) D l¢ |
2.2) |
making the work performed by the two forces equal (because the flow is uniform and steady, and therefore is in dynamic equilibrium)
r g A (1 m) D h = f v2 p (1 m) D l¢
and thus
|
|
(2.3) |
At flat slopes (a < 4°), the value D h/D l¢ = sin a can be changed to the surface slope D h/D l = h/l = tan a = S. To replace the term A/P (area of the cross section over wetted perimeter of the cross-section), the hydraulic radius, R, was introduced by Du Buat as a new concept some 200 years ago, and the term
is the velocity coefficient and named as Chézy's C. So the so called Chézy formula, for computing the mean velocity of uniform, steady, open channel flow, has been used by hydraulic engineers (sometimes beyond its limit Of validity) in the form
|
|
(2.4) |
The fundamental term in the Chézy formula is the velocity coefficient, C, for which many investigators have suggested a variety of relationships and determined experimental values. Some of these are Basin, Strickler-Manning-Lindquist, Kutter and Kutter-Ganguillet, Agroskin and Pavlovsky. For less sophisticated practical application the formula adopted by Strickler-Manning-Lindquist may be used:
|
|
(2.5) |
for water with moderate temperature and with a flow depth, D £ 6 to 8 m. The values of roughness coefficient, n, must be substituted according to Table 6.
Taking into account that Chézy's velocity coefficient, C, and the friction factor l (used mainly in pipelines), are related as
|
|
(2.6) |
the Colebrook-White relationship (Equation 1.3) can be rearranged for calculating the velocity coefficient of open channel flow (without any restriction concerning type and temperature of fluid and depth of flow, etc.), as follows:
|
|
(2.7) |
The numerical values of roughness elements, e, are also compiled in Table 6. (Szesztay)
It should be noted that dimensional homogeneity of Equations (2.5) to (2.7) is very important.
Figure 6. Longitudinal section of open channel flow. Explanation for Chézy formula
Table 6 Values of Roughness Coefficient, n, and Roughness Elements, e, in Open Channels and Flumes
|
No. |
Type of channel and description |
Roughness | |
|
|
|
coefficient n (s/m1/3) |
element e (m) |
|
1 |
Exceptionally smooth, painted or enamelled surfaces |
0.009 |
1×10-5 |
|
2 |
Plank planed with great care, accurately jointed; surface finished with neat cement mortar |
0.010 |
4×10-5 |
|
3 |
Good cement mortar (1/3 sand) finish, planed planks |
0.011 |
1×10-4 |
|
4 |
Well jointed unplaned plank, careful concrete work |
0.012 |
5×10-4 |
|
5 |
Sound plank surface, good brickwork |
0.013 |
1×10-3 |
|
6 |
Fair concrete lining |
0.014 |
2.5×10-3 |
|
7 |
Brickwork, or dressed stone lining both of medium quality |
0.015 |
4×10-3 |
|
8 |
Sound rubble masonry; old (crumbling) brickwork; unfinished, coarse concrete; exceptionally smooth, uniformly finished rock |
0.017 |
1×10-2 |
|
9 |
Channels with a thick, consolidated silt layer; such excavated in dense loess or gravel covered with a thin silt layer (all in perfect condition) |
0.018 |
1.5×10-2 |
|
10 |
Rubble lining of fair quality (good working condition); canals excavated in rock, loess, dense gravel, dense soil, with silt deposits, (average condition) |
0.020 |
2.3×10-2 |
|
11 |
Canals excavated in dense soil (loess, gravel, loam) with local silt deposits; earth canals in better than average condition |
0.0225 |
4.5×10-2 |
|
12 |
Good dry rubble; earth canals with average maintenance; streams under very good conditions (clean, straight banks, no scours or bankslides, unobstructed flow) |
0.025 |
6.5×10-2 |
|
13 |
Earth canals in poorer than average condition |
0.0275 |
1.1×10-1 |
|
14 |
Earth canals in rather poor condition (e.g. local scours, cobbles, rocks) with conspicuous weedy spots, slopes locally slumped; streams with good channel conditions |
0.030 |
1.5×10-1 |
|
15 |
Canals in poor condition (irregular section, heavy weeds, or sediment deposits); streams with fair bed conditions, minor gravel deposits and little aquatic vegetation |
0.035 |
2.5×10-1 |
|
16 |
Canals in very poor maintenance (great scours and slope slides; reed, dense roots, large boulders in the channel, etc.); deteriorated streams (poorer than above) with heavy stands of aquatic vegetation, extensive gravel deposits, meandering flow, minor scours and sand bars |
0.040 |
4.2×10-1 |
In the formula Q = A v, for computation of discharge, an important role is played by the cross-sectional area, while in the Chézy formula, for calculating mean velocity in the cross-section, the hydraulic radius is an important feature. The cross-sections of canals and regulated channels of small water courses are mainly trapezoidal. For bank slopes in trapezoidal canals the values in Table 7 are suggested.
Table 7 Bank Slopes Suggested in Trapezoidal Canals
|
Type of channel material |
Bank slope: r = tan b |
|
Fine-grained silt |
1:3 |
|
Silty clay |
1:2 |
|
Sand, gravel and clay |
1:1.5 |
|
Stiff clay or stone lining |
1:1 to 1:1.5 |
|
Rock |
2:1 to 10:1 |
The actual mean velocity in the channel cross-section has to be between the permissible limits. The acceptable minimum for avoiding siltation is
vp min = 0.2 to 0.6 m/s
depending on the permissible maximum.
The maximum velocities recommended are shown in Table 8.
Table 8 Maximum Velocities Recommended (vp max¢ ) in m/s
|
Type of channel material |
Clear water flow |
Water flow with | |
|
|
|
clayey |
sandy-gravel |
|
|
|
sediment load | |
|
Fine sand (non colloidal) |
0.45 |
0.65 |
0.45 |
|
Sandy loam (non colloidal) |
0.50 |
0.65 |
0.60 |
|
Silt loam (non colloidal) |
0.60 |
0.90 |
0.60 |
|
Alluvial silts (non colloidal) |
0.60 |
1.00 |
0.60 |
|
Dense clay loam |
0.70 |
1.00 |
0.75 |
|
Volcanic tuff |
0.70 |
1.00 |
0.70 |
|
Fine gravel |
0.70 |
1.50 |
1.10 |
|
Stiff clay |
1.10 |
1.50 |
1.20 |
|
Cobbles in loam matric (non colloidal) |
1.10 |
1.50 |
1.50 |
|
Alluvial silts (colloidal) |
1.20 |
1.50 |
0.90 |
|
Cobbles in silt matrix (colloidal) |
1.20 |
1.60 |
1.50 |
|
Coarse gravel (non colloidal) |
1.50 |
1.80 |
1.90 |
A typical trapezoidal cross-section of a canal is shown in Figure 7, while Figure 8 illustrates a compound trapezoidal cross-section mainly applied for regulated small watercourses. The first one is recommended if the hydraulic characteristics of flow (e.g. D, Q) are more or less constant. The second one is used if the main parameters vary to a large extent (e.g. Qmin << Qmax and Dmin << Dmax etc.).
Figure 7 indicates also two more measures, viz. free-board of lining, s, and freeboard of embankment, f, the recommended values of which are shown in Table 9.
Figure 7. Simple trapezoidal cross-section
Figure 8. Compound trapezoidal cross-section
Table 9 Free-boards of Lining, s, and Embankment, f, Respectively
|
Discharge, Q (m3/s) |
Free-board of | |
|
|
lining, s (m) |
embankment, f (m) |
|
0.3 |
0.15 |
0.40 |
|
3 |
0.20 |
0.60 |
|
10 |
0.35 |
0.75 |
|
30 |
0.50 |
1.00 |
The water conveying capacity of an open channel is fundamentally determined by the slope (bottom, surface, energy grade line). It is advisable to use as a guideline for slope of the canal the mean slope of the valley (that is the most economical solution). So supposing the slope is known, the task is either to compute the discharge of a known cross-section or the dimensions of a cross-section if discharge is known.
The first one is easy to solve because it is only necessary to apply the Chézy formula
|
|
(2.8) |
in which the numerical values are all known or can be calculated.
If the aim is to design a cross-section for a known discharge capacity the following considerations apply:
a) The slope, S, should equal (or be slightly less than) the mean slope of the valley;
b) The bank-slope, r, of the cross-section should be according to Table 7;
c) The mean velocity should be between the limits of permissible velocities (Table 8);
d) Roughness coefficient, n, or roughness element, e, should be according to Table 6);
So the values, known originally or adopted, are as follows:
Q, S, r, vpmin and vpmax, n, or e
Adopting the continuity equation
Q/vpmin ³ A ³ Q/vpmax¢ ,
while applying the Chézy formula (Equation 2.4) in the form proposed by Strickler-Manning-Lindquist (Equation 2.5).
Figure 9. Free outflow followed by a shooting tailwater flow
Figure 10. Free outflow followed by an undulating hydraulic jump in the tailwater
Figure 11. Free outflow followed by a perfect hydraulic jump with surface roller in the tailwater
This means the most important geometric characteristics of the cross-section, viz. cross-sectional area. A, and hydraulic radius, R, have to lie between the above limits. Considering that the characteristics of the hydraulically optimum cross-section may be computed, viz.
|
|
(2.9) |
|
|
(2.10) |
|
|
(2.11) |
the actual water depth may vary between the limits:
If a decision is made concerning actual (or design) water depth, Dd, the other characteristics can be calculated.
3.1 Various Types of Outflow Under Gates and their Hydraulic Computation
3.2 Hydraulic Computations for Estimating Characteristics of Tailwater Apron and the Hydraulic Jump
Movable weirs form a large group of hydraulic structures characterized by the fad that, under the action of the differential head between headwater and tailwater, the discharge is passed under the structure through a variable cross-section, the magnitude of which depends on the gate opening. The flow thus resembles flow through an orifice that can be described as suddenly varied steady (or unsteady) flow. The structure itself can be built flush with the canal bottom, on a bottom sill or on the crest of a fixed weir. From the foregoing, calculations of the most simple case will be reviewed.
Three main types of outflow may be classified, viz. free outflow, submerged outflow and outflow under pressure.
Figures 9 to 11 illustrate three typical forms of free outflow. The ruling characteristics of this type of outflow is that at cross-section "0-0" the velocity
, the critical velocity between shooting and tranquil flow. The cross-section "0-0" is then followed by shooring flow (Figure 9), undulating hydraulic jump (Figure 10) or perfect hydraulic jump with surface roller (Figure 11) . The two last cases have tranquil flow down-stream of the hydraulic jump.
Applying Bernoulli's energy equation the discharge of unit width, q, flowing out of the opening, e, under the sharp edged movable gate equals
|
|
(3.1) |
in which e is the contraction coefficient and f the velocity coefficient of the sharp edged gate (Figure 14), and D is the water depth in the headwater and e the gate opening.
The range of validity of Equation (3.1) can be limited by the tailwater depth, D2, with respect to headwater depth, D, viz.
|
|
(3.2) |
If the relative opening, e/D, is less than 0.1 and the relative tailwater depth, D1/D2 is less than 0.44 a simplified relationship can be used:
|
|
(3.3) |
Figure 12 illustrates a typical submerged outflow under a sharp edged gate which occurs if the tailwater depth exceeds the upper limit of Equation (3.2). Discharge can only be computed as a rough estimation because the hydraulic conditions are very unstable. Applying Bernoulli's energy equation between headwater and cross-section "0-0" in the tailwater, D' has to be taken as pressure head (water depth) which is hardly possible to determine. It is necessary, therefore, to apply an approximation for calculating Do¢. Adopting the momentum (impulse) theorem between cross-sections "0-0" and "2-2", respectively, the undeterminable D' can be replaced by the tailwater depth, D2. The resulting equation, serving only for a rough estimation of the discharge of unit width q is as follows:
|
|
(3.4) |
in which D and D2, are water depths in the head and tailwater, respectively, while e is the gate opening. Then e and f are the contraction and velocity coefficients, respectively, of the sharp edged gate (to be adopted as functions of relative gate opening, e/D, (Figure 14).
If the relative opening, e/D is 0.1 or less and if the tailwater depth with respect to headwater depth, D2/D, is 0.44 or more, a simplified relationship can be used:
|
|
(3.5) |
If the tailwater depth is increased it reaches a limit where the submerged outflow transforms into outflow under pressure as shown in Figure 13. The relevant and more or less simplified relationship for computing discharge of unit width, q, equals
|
|
(3.6) |
which is the limit of Equation (3.4) if
- eithertends to unity,
- ortends to zero,
- ortends to unity.
Figure 12. Submerged outflow (the hydraulic jump with surface roller shifter upstream to the gate so that the "0-0" cross-section is submerged)
Figure 13. Outflow under pressure
Figure 14. Contraction coefficient, e, and velocity coefficient, f, vs. relative opening, e/D, respectively
In practical applications the two latter conditions have to be simultaneously satisfied.
If the relative gate opening, e/D, is less than 0.1 and if the tailwater depth with respect to headwater depth, D2/D, tends to unity, a simple relationship can be used for rough estimation of discharge per unit width, q, as follows
|
|
(3.7) |
As indicated in the introduction to this section the outflow under gates can be described in terms of suddenly varied steady (or unsteady) flow. The sudden variation of water depth and velocity is dangerous from the point of view of scouring. The hydraulic structure which protects against this is called the tailwater apron.
Considering the various forms of outflow reviewed in the previous paragraphs, from the point of view of scouring, the most dangerous one is the free outflow. Following the flow direction (Figure 11) the headwater depth, D, is large while velocity, v, is small. In the gate opening, e, and afterwards in the contracted cross-section "0-0" the water depth, e e, is low and the velocity, vo, is much above the critical velocity (between shooting and tranquil flow),
or generally
. The flow between cross-sections "0-0" and "1-1", respectively, is shooting and while the depth is increasing from e e to D1, the velocity is decreasing from v0 to v1, and in cross-section "1-1" the actual velocity is more than the critical one, viz.
. Then a hydraulic jump follows, with a sudden variation in both water depth (increase) and velocity (decrease). In cross-section "2-2" the actual velocity v2, is less than the critical one, so the flow is tranquil.
Because of the magnitude of velocities and of their sudden variation the canal bottom has to be protected against scouring by the tailwater apron up to cross-section "2-2". The main task of hydraulic computations is the determination of the length of the tailwater apron.
The length (in meter units) of tailwater apron consists of three main parts:
- gate opening to cross-section "0-0" (shooting, gradually decreasing water depth and increasing velocity),- cross-sections "0-0" to "1-1" (shooting, gradually increasing water depth and decreasing velocity),
- cross-sections "1-1" to "2-2" (hydraulic jump, sudden increasing water depth and decreasing velocity).
The horizontal length between gate opening and cross-section "0-0" can be estimated as equal to gate opening, say:
|
l0 = e |
(3.8) |
The length between cross-sections "0-0" and "1-1" can be calculated by the differential equation of gradually varied steady flow, applying the Chézy formula in the form proposed by Strickler-Manning-Lindquist. The resulting relationship (also called distance of hydraulic jump) is as follows: 1/
1/ It is important to remember that the numerical values of roughness coefficient, n, as shown in Table 6 are in s/m1/3 units, and so the numerical values of both the various water depths, D1,e e, gravitational acceleration, g, and the discharge of unit width, q, have also to be applied in meter and second units
|
|
(3.9) |
The characteristics of the hydraulic jump can be computed by applying the momentum theorem. According to this theorem the resultant of the outside hydraulic forces has to be balanced by the change of momentum. If this dynamic equilibrium is not established the jump moves either upstream or downstream. Assuming the velocities over the entrance and exit sections (cross-sections "1-1" and "2-2"), to be uniform and horizontal, only the difference of the horizontal hydrostatic forces (wall friction neglected) needs to be balanced by the change of momentum. The resulting equation expresses the relationship between the so called conjugate depths of the hydraulic jump, as follows:
|
|
(3.10/a) |
|
|
(3.10/b) |
The horizontal length between cross-sections "1-1" and "2-2", the length of the hydraulic jump, may be estimated as
|
|
(3.11) |
In designing a plane, horizontal tailwater apron the following are the steps to be taken:
a) Known variables are:discharge of unit width, q,
headwater depth, D, tranquil flow,
tailwater depth, D2, tranquil flow.b) By applying Equation (3.10/b) the conjugate upstream water depth, D1, of the hydraulic jump can be calculated (shooting flow) from the tailwater depth, D2 (which is the conjugate downstream water depth of the hydraulic jump).
c) By rearranging Equation (3.1) the water depth in cross-section "0-0" can be computed as:
|
|
(3.12) |
in which the velocity coefficient, f, can be taken as unity as a first approximation, and later on reiterated according to Figure 14. Otherwise, for rough estimation. Equation (3.3) may be rearranged as
|
|
(3.13) |
d) By comparing the results obtained in items b) and of) the possible alternatives aree e (or 0.6 e) £ D1
If e e (or 0.6 e) is less than D1 it indicates that a stretch of gradually varied steady shooting flow exists between cross-sections "0-0" and "1-1", respectively. The total length of plane horizontal tailwater apron then can be computed by summing up the particular lengths of the three stretches (by applying Equations (3.8), (3.9) and (3.11) above, viz.
|
Lpf = e + l1 + l2 |
(3.14) |
If e e (or 0.6 e) is more than D1 it indicates that no free outflow exists, and the computation has to be repeated by assuming submerged outflow. The first step is the calculation of the necessary gate opening, e. Taking into account that no explicit form exists for Equation (3.4), either the application of a trial-and-error method is advised for computing gate opening, e (or e e), or Equation (3.5) can be re-arranged for a rough approximation, viz.
|
|
(3.15) |
Then the necessary length of the tailwater apron may be estimated as
|
|
(3.16) |
If the contracted water depth, e e, in cross-section "0-0" is much less then the upstream conjugate water depth, D1, of the hydraulic jump according to the consideration c) above the distance of the hydraulic jump, l1 may be very large and so the tailwater apron will be very costly. In that case a depressed tailwater apron can be designed by which l1 can be eliminated.
Applying Equation (3.10a) and substituting e e for D1 according to Equation (3.12) or (3.13) above, a new D2' can be calculated as
|
|
(3.17) |
and the measure of the depression by which the bottom of the apron has to be sunk below the bottom of the tailwater canal is
|
D D2 = D2¢ - D2¢ |
(3.18) |
while the length of the depressed apron may be estimated as
|
Ldf = e + 6(D2¢ - e e) |
(3.19) |
4.1 Sharp Crested Weirs
4.2 Weir Section Shaped to fit the Nappe, or Ogee Profile
4.3 Special Weirs
4.4 The Tailwater Apron Following Weirs
Where an obstacle is constructed on the bottom of an open channel, the water surface is raised and passes over it. Structures of this type are called weirs. Aside from special cases, flow over weirs may be regarded as steady, i.e. unchanging with respect to time, and suddenly varied, as in most hydraulic structures.
Weirs are a familiar structure in hydraulic engineering, for they are applied to a wide variety of barrages, bottom drops, spillways, etc.
Weirs can be classified according to several aspects:
- Width and shape of crest (Figure 15)
- Location of crest in plan (Figure 16)
- Location with respect to canal (Figure 17)
- Type of flow over the weir (Figure 18)
The most important problem arising in connection with weirs is the relationship between the discharge over the weir and the characteristics of the weir. Many authors have suggested various relationships (e.g. Poleni, Weissbach, Boussinesq, Lauck, Pikalow) generally along the same theoretical lines and with similar results. So it seems satisfactory to introduce only the relationship of Weissbach (free overfall on sharp crested weir without any side contraction, Fig. 15a)
|
|
(4.1) |
in which Q (m3/s) is discharge, b (m) is the width of the rectangular canal and that of the weir, g = 9.81 (m/s2) is the acceleration due to gravity, h (m) is the overfall height (measured about a distance of 5 h upstream from the crest), v = Q/b (M + h) (m/s) is the mean velocity in the headwater, M(m) is the height of the weir crest above the headwater bottom, and m is a dimensionless discharge coefficient.
If h/(M+h) tends towards zero (because h is small compared to M) then v2 /2gh also tends towards zero; so a simplified relationship can be reached as introduced first by Poleni about 250 years ago:
|
|
(4.2) |
In Equations (4.1) and (4.2) the only remaining problem is the dimensionless discharge coefficient, m , which may be computed by using the relevant one of the following empirical relationships.
a) Free overfall on a sharp crested weir with free jet without side contraction (Figure 15c) (Basin):
|
|
(4.3) |
b) Free overfall on a sharp crested weir with adhering jet without side contraction (Figure 18b) (Rehbock):
|
|
(4.4) |
c) Free overfall on a sharp crested weir with depressed jet without side contraction (Figure 18a):The magnitude of the discharge coefficient depends on the rate of depression and it has to lie between the limits of Equations (4.3) and (4.4), respectively.d) Submerged overfall on sharp crested weir without side contraction (Figure 17c) (Basin):
|
m s = s ms' in which |
(4.5) |
|
|
(4.6) |
|
|
(4.7) |
e) Free overfall on sharp crested weir with free jet and with side contraction (Figure 17a) (The Swiss Society of Engineers):
|
|
(4.81/) |
1/ Equations (4.3) to (4.8) are empirical relationships. The numerical values of the symbols have to be substituted in meter units
Figure 15. Classification of weirs with respect to width and shape of crest: a) sharp crested weir, b) broad crested bottom sill, c) Ogee-type weir, d) broad crested weir
Figure 16. Classification of weirs with respect to location of crest in plane: a) perpendicular, b) oblique, c) broken, d) curved, e) lateral, f) circular
Figure 17. Classification of weirs with respect to location in canal: a) side contraction, b) without side contraction, c) both with bottom contraction
Figure 18. Classification of weirs with respect to flow over the weir; free overfall with satisfactory ventilated free jet (see Fig. 4.1, a) and d)): a) free overfall with unsatisfactory ventilated, depressed jet; b) free overfall with unventilated, adhering jet

The trajectory of the nappe after springing clear of the weir crest is approximately parabolic. It is therefore of advantage in hydraulic engineering to adjust the dam cross-section required for structural reasons to the nappe.
At the downstream edge of a broad crested weir the water depth is critical. That means the water depth, h1, and the mean velocity, v1, at the cross-section are interrelated by the equation
|
|
(4.9) |
and so the energy content of this section equals
Because the energy content above the weir crest is characterized by the overfall height or head on the weir, h, the water depth at the downstream edge cross-section of the broad crested weir equals
|
|
(4.10) |
and its centre line is the height of h/3 above the weir crest. This point is the origin of a co-ordinate system in which the trajectory of the nappe will be calculated (Figure 19).
The shape of the dam profile is obtained simply by determining the co-ordinates of the centre line of the overfalling nappe and by plotting its thickness perpendicular thereto. In this method of approximation friction is neglected and the velocity in the origin is considered to be horizontal. This constant horizontal component of the velocity vector then follows the falling nappe.
The constant horizontal component of the velocity vector equals
|
|
(4.11) |
while the variable vertical component of the velocity vector can be computed as
|
|
(4.12) |
and because the magnitude of the velocity vector equals
|
|
(4.13) |
the thickness of the nappe is
|
|
(4.14) |
and it is a function of y.
The co-ordinates of the centre line are interrelated with the equation
|
|
(4.15) |
and so both the centre line and the upper and lower shape of the nappe can be plotted. The lower shape of the nappe approximates the dam-section.
It is important to remember that for calculating a hydraulically favourable dam-section a design discharge, Qd, or weir head, hd, has to be selected (Qmax ,or hmax , respectively). If the actual discharge (or weir head) is less than the design one the falling of the nappe will be no more "frictionless" and so the discharge coefficient will be affected.
For weirs with a vertical upstream face and free overfall, Pawlowsky suggested the following empirical relationships:
|
|
|
and |
(4.16) |
|
|
|
(4.17) |
in which
|
|
and |
(4.18) |
|
|
(4.19) |
The basic discharge coefficient derived by Knapp with due regard to losses is
|
|
(4.20) |
If instead of free overfall a submerged (or drowned) overfall exists, the discharge coefficient of free overfall has to be multiplied by the submergence coefficient and so
|
m so = s o m o |
(4.21) |
The submergence coefficient of Ogee type weirs is tabulated in Table 10 (according to the notations of Fig. 18c).
Figure 19. Explanation for calculation of nappe trajectory
Figure 20. Cross sections of rock fill weirs
Table 10 Submergence Coefficient,s 0, of Ogee Type Weirs
|
|
s o |
|
s o |
|
s o |
|
0.00 |
1 000 |
0.660 |
0.930 |
0.850 |
0.670 |
|
0.20 |
0.997 |
0.720 |
0.890 |
0.900 |
0.575 |
|
0.50 |
0.980 |
0.780 |
0.820 |
0.950 |
0.412 |
|
0.63 |
0.950 |
0.820 |
0.756 |
1 000 |
0.000 |
Rock fill weirs are often applied as regulating structures e.g. bottom drops in small watercourses. Various dam sections can be used depending on the construction methods (Figure 20). The relationship between overfalling discharge and hydraulic characteristics is the same but the discharge coefficient depends, besides the characteristics of M, a and h, on the type, the material and the construction method of the weir, and varies from 0.5 to 0.65.
Circular weirs are often used as spillway shafts for maintaining a nearly constant water level in a reservoir or pond (Figure 16f). The vertical section (Figure 21) of the so called "morning glory" type illustrates its functioning. The usual relationship can be applied for calculating discharge but 2p R is substituted for b. Because of the favourable shaping of the entrance section a relatively high discharge coefficient exists, between 0.5 and 0.8, with a decreasing coefficient as weir head is increased. This structure can function as a circular weir only up to a certain limit of weir head, ho , the corresponding discharge, Qo , of which equals the discharge capacity of the shaft. The discharge capacity of the shaft can be approximated by a "short pipeline" calculation. If the actual discharge exceeds the discharge capacity of the shaft then the free overfall transforms into submerged overfall which results in an increased level in the headwater. By further increasing discharge the structure will be submerged and it will function as a short pipeline with a favourable "bell mouth" entrance. This indicates how important the determination of the discharge capacity of the structure is.
The limit of oblique weirs (Figure 16b) is the side weir of Figure 22, the crest of which is parallel to the main flow direction. The discharge capacity of a side weir is significantly less than that of a weir with a crest perpendicular to the main flow direction. As illustrated in Figure 22 the weir head varies along the crest and the maximum is reached at the downstream end of the crest. The discharge capacity of the side weir can be approximated using this maximum weir head, h, with a discharge coefficient corresponding to the actual types of weir and overfall, respectively, but it has to be multiplied by the side coefficient which can be estimated (Pawlowsky and Engels) as
|
|
(4.22) |
So the overfall discharge equals
|
|
(4.23) |
in which m as the relevant one of the discharge coefficients, can be applied.
The sudden variation in water depth and mean velocity over weirs is similar to that which has been illustrated in the previous section concerning outflow under gates and movable weirs. The consequences of these variations are obvious: a siltation process can be foreseen in the headwater, and a scouring in the tailwater will endanger the stability of the structure if no appropriate tailwater apron is constructed.
The same considerations can be applied as in designing a tailwater apron to a fixed weir, with the amendments summarized below.
The shape and the geometric and kinematic characteristics of a nappe (jet) have been illustrated. These can also be applied in designing the tailwater apron as follows:
a) The distance between the downstream edge of the weir crest and the cross-section "0-0" of the tailwater apron can be estimated by rearranging Equation (4.15)
|
|
(4.24) |
b) The water depth of the shooting flow in cross-section "0-0" can be approximated by the relevant thickness of the nappe and can be calculated by rearranging Equation (4.14)
|
|
(4.25) |
c) Considerations a), b) and d) of the computations in Section 3 apply with the only difference that instead of e and e e (or 0.6 e) always lo (Equation 4.24) and Do (Equation 4.25), respectively, should be understood.
Figure 21. Morning glory (vertical section)
Figure 22. Side weir in plan and cross section