J. Kövári
Food and Agriculture Organization of
the United Nations
Rome, Italy
1. INTRODUCTION
2. OUTLINE OR FEASIBILITY PLAN
3. DETAILED PLAN
4. ESTIMATES
5. TENDER DOCUMENTS
6. REFERENCES
ANNEX 1 HYDROLOGICAL FORMULAS
ANNEX 2 GENERAL PROVISIONS
ANNEX 3 SPECIAL PROVISIONS
ANNEX 4 CONSTRUCTION OF CHIPATA FISH FARM IN ZAMBIA
ANNEX 5 Bill No........ Construction of Outlets
ANNEX 6 Bill of Quantities and Contract Cost
ANNEX 7 Bidding Schedule
Engineering planning, design and construction of dams, barrages, pumping stations, etc., is normally carried out with a high degree of efficiency. Sometimes, however, the smaller structures, secondary channels, etc., used for aquaculture projects are badly made or omitted entirely from engineering plans. In developing countries engineers have frequently neglected these minor works, particularly those required at the farm level. To contractors they do not mean much profit and they are dispersed and difficult to supervise.
It has been increasingly recognized that one of the major difficulties encountered in the implementation of aquaculture development programmes in developing countries is proper project preparation. Inadequate and poor preparation of projects has often caused the final construction cost of the project to be much higher than estimated. The purpose of this lecture is to present in simple form the various steps required in preparation of plans, estimates and tender documents for projects and to describe some of the planning procedures that are used in these processes.
Project preparation is usually considered to include all those activities short of a final decision to implement. This process includes the following stages:
(i) Identification of the project. At this stage, the production target based on a marketing study, the species to be cultured and the systems of culture to be adopted, the availability of a large enough drainable and accessible land area free from flooding and having adequate soil conditions as well as adequate water source, must all be investigated and determined.(ii) Preparation of outline or feasibility plan of the project.
(iii) Preparation of detailed plan of the project.
(iv) Preparation of estimates of the project.
(v) Preparation of tender documents of the project.
During each stage, a number of activities and analyses must be carried out and the findings used to meet the requirements of the subsequent phase, until the project is finally completed.
2.1 Purpose of Outline Plan
2.2 Procedures for Preparation of Outline Plan
The purpose of an outline plan is to confirm that the proposed project can be economically developed on the selected site, and to investigate and provide all data, calculations and outline plans based on the different investigations required for the project approval and detailed planning.
2.2.1 Site selection
2.2.2 Collection of maps and data
2.2.3 Outline plan
In aquaculture project operations, site selection is of paramount importance. Success of the project depends to a large extent on the proper selection of the site. There are both ecological and technological as well as economic and social considerations involved in site selection. Factors to be considered in site selection are described in more detail in Chapter 1 on considerations in the selection of sites for aquaculture (Pillay, 1977).
The following maps and data about the site should be gathered to facilitate the preliminary investigations and calculations:
(a) Maps- contoured sheet of map at a scale of 1:25 000 to 1:50 000. This can be used for preparation of a project location map, to determine the water catchment area and to serve as a source of information on road connections, etc.;- land map showing boundaries of properties with different ownerships according to the official register of owners;
- soil or geological map showing the topsoil or subsoil encountered at the site;
- water resources development map. This will help in determining the water source of the project by indicating the possibilities of water supply and drainage, as well as by showing the depth of the expected water tables and yield capacities of any aquifers; climatological map showing the meteorological stations nearest to the site and the monthly mean values of temperature and rainfall;
- other development map, if any, regarding the proposed site.
(b) Meteorological data
- mean monthly temperature;
- mean monthly rainfall;
- mean monthly evaporation;
- mean monthly humidity;
- mean monthly sunshine;
- mean monthly wind speed and direction.(c) Hydrological data
- data for discharge, yield, floods and water elevations of existing water sources (rivers, irrigation channels, reservoirs, springs, etc.);- restriction for water supply to the fish farm (for example, periods of the maintenance works in the irrigation channel).
An outline plan is generally used as a basis for approval and financing of a project. This should prove the technical feasibility of the project. The production calculations concerned as well as the design should be in sufficient detail so that a reliable cost estimate including both the annual operational and production cost can be established.
The principal parts of the outline plan consist of the following;
(i) ReportThis should contain the most important information on the project proposal including a description of the site, soil characteristics determined by the reconnaissance soil survey, source of water and the results of the water analysis, meteorological features used for planning, operation plan with the necessary production calculations, planning considerations, arrangement of the layout plan for the ponds and the location of the hatchery and the other buildings with the approach road to the project, arrangement for water supply and drainage of the ponds and the hatchery, the pond facilities, abstract of costs for capital, operational and production costs, economic analysis for benefits, and the proposed construction programme. Additionally, all the statements obtained and required for approval and implementation of the project must be presented usually in a list of annexures to the report.(ii) General location map
This is generally an unsealed map showing the location of the project.(iii) Plane table map
This has a scale of 1:2000 to 1:5000 depending the size of the project, showing the boundary lines and the proposed size of the project, the locations of the soil test pits with their elevations, the rough contour lines and water source and drainage possibilities.(iv) Outline layout plan
This plan to a scale of 1:1000 to 1:5000 should include the arrangements of the ponds, the water supply and drainage systems as well as the location of the hatchery and other buildings including the proposed approach road and the power and telephone lines.(v) Outline cross-sections of dikes and channels
All the typical cross-sections of the dikes and channels showing their measurements and slopes required for the cost estimate must be provided.(vi) List of proposed buildings and equipment
A list of the proposed buildings with their plinth areas and the equipment needed for running the project should be given for the cost estimate.(vii) Soil and water test results
Soil test laboratory results of the samples taken from the test pits for engineering and production purposes should be provided in tables which are used for planning dikes, etc. (Buring, 1979).(viii) Cost estimate
Estimates of base (civil works) cost must be calculated using unit rates judged to be applicable for the region of the project site and major quantities of each item shall be calculated from the drawings in just sufficient detail to serve the needs of proper estimating. Building costs should be estimated on plinth area. Earthwork costs are based as far as possible on a balance between cutting and filling. Estimates of cost are given for electricity supply, engineering (design of detailed plan and supervision of construction), equipment, land procurement and physical contingencies.Lastly, the operational costs and the production cost are provided under separate heads.
(ix) Implementation schedule
Based on the results of the reconnaissance investigations and quantity calculations a bar-chart for the various activities required to complete the detailed plans and tender documents and procure the land for construction should be prepared.
After having approved the outline plan of the project, a review should be made of all data available and, if this is insufficient, action should be taken to rectify the deficiency. Any modifications of the proposed operating schedule and related water management and water requirement calculations for both the fish ponds and the hatchery have to be completed prior to commencing detailed planning.
The topographic survey which has to be carried out at the site selected for a project should be based on a convenient datum marked with a temporary bench mark (TBM) at the site. There are several methods used for topographic surveys. Depending upon the nature and size of the land required for the project, the following methods are the most commonly applied for topographic surveying:
(i) Gridding
(ii) Plane tabling
(iii) Cross-section method with traverse survey
(iv) Radiating lines method with traverse survey
(v) Tachiometry
Methods (i) and (ii) are ideal on relatively flat land, while methods (iii) and (iv) may also be used but are best suited to hilly terrain or use in a narrow, long valley. Tachiometry can be used in either case. The field work in tachiometry is rapid compared with the other methods and it is widely used, therefore, for contouring of any types of areas. With reasonable precautions, the results obtained can be of the same order of accuracy as, or better than, those obtainable by other methods. The following topographic maps and plans are generally needed for a project:
(i) Index or location map
(ii) Boundary map
(iii) Contour map
(iv) Cross and longitudinal sections
(v) Land map
3.1.1.1 Requirements of maps for engineering designs
(i) Index or location mapThis map, which gives general information about the location of the project, the existing roads, railways, towns or other settlements, rivers, lakes, contours, etc., is the most commonly prepared from one of the map sheets scaled at 1:50 000, which may be obtained from the Survey Department Map Sales Depot, or the Survey Department. An example of a location map prepared for the Chipata Fish Farm is shown in Figure 1.(ii) Boundary map
During topographic surveying the boundary lines of the selected area for the project should be fixed by stones or concrete blocks. The boundary lines are usually formed by a closed traverse. The points of the traverse lines are called stations or bearing points (PBR). These may also serve for control of levelling or contouring operations over the site, and for setting out the facilities of the project. The boundary map, as shown in Figure 2, must indicate the lengths of the traverse lines for the boundary of the project, locations of the PBRs, the coordinates of the reference meridian, the bearings of the lines, the actual area covered by the traverse lines, the existing roads, buildings, rivers and other property boundaries. The list of the coordinates of the PBRs, including the elevation as shown in Table 1, should be attached to the boundary map, and the data should be recorded in the construction site logbook before starting any construction works at the site. This is essential as, if the PBRs are destroyed by any machines during the construction period, they can easily be re-established from the site logbook.
Figure 1. Chipata Fish Farm. Location map
Table 1 List of Coordinates and Elevation of PBRs
|
PBR |
Coordinates (m) |
Elevation (m) | |||
|
|
Partial E |
Partial N |
Easting |
Northing |
|
|
6170 |
|
|
492 403.11 |
101 604.34 |
2.241 |
|
6173 |
- 194.26 |
- 68.54 |
492 334.57 |
101 410.08 |
5.544 |
|
6174 |
- 193.57 |
- 68.70 |
492 265.87 |
101 216.51 |
0.880 |
|
6175 |
- 181.20 |
+ 68.59 |
492 084.67 |
101 285.10 |
0.906 |
|
6176 |
- 296.20 |
+111.18 |
491 788.47 |
101 395.28 |
1.158 |
(iii) Contour mapContour maps used in design of the facilities of the project must show the contour lines and all the establishments found at the proposed site such as roads, electric and telephonic lines, rivers and drains or other channels, buildings, underground oil, gas or water supply pipelines, borrow pits, boundary lines, including the location of the PBRs and the TBMs, the north direction as well as the scale used for mapping. The contour map may also show the location of soil sampling stations with numbering. The contour maps, depending on the size of area proposed for the project, should be scaled in 1:1000 to 1:5000.The contour lines should be plotted on the map at 10 cm intervals for flat land and 20 to 25 cm intervals for hilly or valley terrain.
(iv) Cross and longitudinal sections
If a project is established in an area where there are fish ponds, drains and other channels, etc., their cross and longitudinal sections are often required for designing of the new fish ponds or the renovation of the old ones, etc. In such a case, the cross-sections should have a scale of 1:100 and the longitudinal sections should be plotted to a scale of 1:100 vertical and 1:500 to 1:5000 horizontal.(v) Land map
In order to procure the land needed for a project, the required area of the project should be marked by the selected boundary lines on the land map. For procurement of land, the cadastral data of the lands including their owner's names, the size and unit price, as well as total amount in local currency of lands, should be prepared as shown in Table 2.
Table 2 Land Cadastral Data
|
Item |
Land owner's name |
Land |
Land price | |||
|
|
|
Number |
Area (ha) |
Required area (ha) |
Unit |
Total amount |
|
1 |
Shri M.B. Prasad |
900 |
0.154 |
0.154 |
40 000 |
6 160 |
|
2 |
Shri A.K. Sing |
989 |
0.125 |
0.125 |
40 000 |
5 000 |
|
3 |
Shri M.B. Beg |
934 |
0.229 |
0.138 |
45 000 |
6 210 |
|
|
Total |
17 370 | ||||
A detailed investigation of soils is needed to design the facilities of a project. The first step in a detailed investigation is a review of the work already done in the previous project stage. This includes not only a review of the reconnaissance investigations, but also an examination of the reconnaissance design, if any is available, and a determination of whether the objective is still the same. Depending upon the results of the reconnaissance exploration and the size of the project, the requirements for the detailed soil survey must be predetermined. The number and spacing of borings including their exploration depth is dependent upon what is needed to get the data of the soils found in the bore holes at the site. By studying the exploration boring logs available general information on the expected conditions can be obtained. From this the additional number of borings including their spacing distance and exploration depths can be determined. In order to avoid loss of time and money due to boring superfluous bore holes, the following is suggested for preparation of a detailed investigation (U.S.D.I., 1965).
(i) 1 or 2 sample stations to each 2 to 5 ha of the site, should generally be used under uniform soil conditions. More sample stations will be required in variable soil conditions. The Engineer conducting the field exploration work should decide upon the additional number of sample stations.(ii) The depth of each bore hole should be a minimum of 2.0 m below the deepest intended excavation of the project area. The boring depth and the number of sample stations for a special structure, i.e. a large water tower, should be commensurate with the size of the structure.
A number of disturbed and undisturbed samples should be taken from every stratum encountered in the bore holes. The soil samples provide material for an investigation of the soil properties by means of laboratory tests. The results of the soil investigations should be detailed in a report (Terzaghi, 1967).
3.1.2.1 Requirements for soil survey report
The results of the soil survey should be presented in a report. A detailed soil survey report must contain the following:
(i) General reportIn this part, the location of the investigations, methods of boring and samplings, in situ tests conducted at the site, the results of the laboratory tests, the allowable bearing capacity and settlement, the characteristics of the ground water, including whether the water table is perched or normal, its expected fluctuation at the site and quantity of soluble salts or other minerals present as well as foundation and dike construction considerations, should be described in detail.The laboratory tests should provide the required data as listed below for the construction works:
(a) soil consistency
- liquid limit (LL)
- plastic limit (PL)
- plastic index (PI)
- relative consistency (Cr)(b) soil components
- grain size analysis curves coefficient of uniformity (Cu)
- particle size analysis(c) index properties
- water content (w)
- void ratio (e)
- porosity (n)
- dry density (g d)
- wet density (g wet)
- proctor maximum dry density (g Pr)
- absolute specific gravity (Gas)
- apparent specific gravity (Gs)
- cohesion (c)
- angle of internal friction (f)
- allowable bearing capacity (s a)
- modulus of elasticy (E)
- permeability coefficient (k)(d) ground water analysis
- pH
- content of sulphate ion(ii) Location map
Location map should show all the locations of sample stations with their ground elevation.(iii) Logs of sample stations
A log is a written record of the data concerning soils and conditions encountered in individual bore holes. It also provides the results of the laboratory tests on which all subsequent conclusions are based, such as design of the facilities and method of construction. It may form an important part of contract documents and it may be required as basic evidence in court in case of dispute. Each log, therefore, should be factual, accurate, clear and complete. It should not be misleading. The headings on the log forms provide spaces for supplying identifying information as to project, hole number, elevation, dates started and completed, and the name of the person responsible. The body of the log form is divided into a series of columns covering the depth, thickness and description of strata, the presence or absence of water levels as well as the results of the laboratory tests.(iv) Soil profiles
Sections to show the subsurface conditions are used in projects located on hilly terrain. Where soil profiles are provided in the soil report, the information shown in them is limited to factual data such as the ground surface line and logs of bore holes located in their actual position with respect to the ground surface line. Although the choice of sections is made to simplify interpretation, actual locations of features such as water table, etc., are not illustrated by continuous lines, but only where they are encountered in each hole.
3.2.1 Project report
3.2.2 Designs
3.2.3 Criteria for designing pond facilities
3.2.4 Preparation of detailed drawings
A complete report should be prepared covering the project proposal, investigation, the production including its proposed method, engineering features, execution of construction, summary of costs, etc. It should contain a general description of the design including the drawings. The following outline of the items which the report should cover is included as a guide. Obviously, all of the information listed in this outline is not necessary for any particular small project, but the greater part of it will be usually required for a larger project (Alien, 1981).
1. Introduction
This includes the background information and the notes of the proposal.
2. Purpose of project
This should contain the following particulars:
2.1 Type of project
- pilot fish farm
- research fish farm
- training fish farm
- production fish farm(a) fish seed production fish farm
(b) commercial fish farm2.2 Production of project
- proposed cultural method(a) selection of fish species
(b) type of fish culture- monoculture
- polyculture
- main characteristics of production
- production calculation considerations(a) broodstock requirement
(b) survival rates
(c) fry requirement
(d) fingerling requirement
(e) stocking ratio
(f) feed conversion ratio
(g) pond fertilization2.3 Marketing schedule
- methods
3. General information and data
This should include the following particulars:3.1 The project site- location
- accessibility
- communication
- power supply
- land status
- existing improvements3.2 Hydrological data
- design flood
- runoff
- ground water potential3.3 Meteorological data
- mean monthly temperature
- mean monthly rainfall
- mean monthly evaporation
- mean monthly humidity
- mean monthly sunshine
- mean monthly wind speed and prevailing direction3.4 Water source and quality
- description of water source
- statement for water rights or water restrictions
- summary of water analysis3.5 Topography
- summary of topographic survey
- list of the boundary points' coordinates
- list of the temporary bench marks3.6 Soil characteristics
- summary of the soil report
- water table conditions
4. Planning considerations
Design criteria and specifications, description of the facilities, and schedule of execution should be stated in this section of the report.
4.1 Layout of the fish ponds size of ponds
- water depth in the ponds4.2 Water requirement summary of the water demand calculations
4.3 Water supply and drainage systems
- for fish ponds
- for hatchery building
- for additional concrete tanks
- for raceways
- methods for water filtration or water treatments4.4 Description of the facilities
(a) fish ponds
- dikes dike protection
- internal roads
- structures(b) hatchery
(c) pumping station
(d) other buildings
4.5 Description of the construction works schedule of execution
5. Cost estimate and cost of production
(These will be presented in Chapter 4)
6. List of detailed drawings
It should contain all drawings required for the project to be executed. The following drawings are most commonly prepared and enclosed with the project report:6.1 Location map
6.2 Layout plan
6.3 Setting out plan
6.4 Cross and longitudinal sections
6.5 Structural detailed drawings
6.6 Plans of hatchery and other buildings
6.7 Plan of pumping station
6.8 Installation plans
In order to ensure that the detailed plans should be both economical and suitable to the construction, their design must be properly performed. The following designs depending upon the nature and scale of the project usually have to be prepared for the detailed drawings.
3.2.2.1 Hydrological computations
To design a fish farm, located on hilly terrain and fed by water stored in a reservoir or supplied from runoff of the water catchment area, usually will require hydrological computations as follows:
(a) determination of design flood for the spillway of the reservoir to fish ponds or hatchery;(b) runoff of the water catchment area of the project site should be calculated to determine the capacity of the reservoir or the possible area of the fish ponds.
All these calculations based on the local meteorological and soil conditions may be presented using the calculating formulas as shown in Annex 1.
3.2.2.2 Production calculations and pond facilities
Production calculations provided by an Aquaculturist are the most essential parts of the project documents. All statements of production calculations should be considered to prepare any detailed plans of the project. These contain usually the following particulars:
(a) fish farm- production target
- proposed cultural method cultured fish species
- stocking rate- initial weight- requirements of broodstock, fry and fingerling
- proposed harvesting weight
- survival rate
- feed requirements- feed conversion ratio- pond fertilization
- pond management
- operational plan
- marketing plan
- pond specifications- type of ponds- harvesting specifications
- size and number of ponds
- proposed water depth for each type of pond- harvesting method- aeration requirements to the ponds if needed
- requirements of the harvesting facilities(b) hatchery
- production target
- proposed hatchery technology
- operational plan
- specification of facilities
- aeration requirements.
(i) Size and shape of ponds can be defined on the following criteria:(a) Production purpose: based on the species to be cultured in the ponds, the size should be as follows:
|
Type of pond |
Bottom area (ha) |
|
Spawning (S) |
0.01 - 0.5 |
|
Nursery (N) |
0.05 - 2.0 |
|
Rearing and production (R) |
0.25 - 10.0 |
|
Holding (H) |
0.10 - 1.0 |
These ponds, except the rearing and production ones, should be square or rectangular in shape (Woynárovich, 1980).(b) Intensification of production: the higher the production per unit area, the more important becomes the production factor in relation to pond size. Considering the possibility of a larger amount of fish loss during a longer period of harvesting it is advisable to complete harvesting as quickly as possible. It should take no more than one day per pond. The maximum amount of fish which can be handled by an experienced staff with equipment in one day depending on the water and air temperatures, is 10 to 40 tons. This can determine to a large extent the optimal size of the pond, as follows:
|
Level of production |
Production |
Bottom area |
|
|
ton/ha/cycle |
(ha) |
|
Intensive |
8-10 |
1-5 |
|
Semi-intensive |
5-6 |
2-8 |
|
Extensive |
3-4 |
3-10 |
(c) RiskLosses due to epidemic diseases or algae bloom etc., in pond water are more in larger ponds with higher stocking density. It is not desirable to risk more than 10 tons in each pond if any such losses are anticipated.
(d) Marketing schedule
The demand of fish for market may be determined by the optimal size of each production pond.
(e) Harvesting method
To facilitate netting, it is desirable to limit the width of the ponds to about 75 m. However, using a separate harvesting pond or special harvesting box or structure, the width and the shape of the ponds are not limited.
(f) Construction cost
The larger the pond, the lower will be the construction cost per unit area. This is because, the smaller the ponds, the greater is the proportional area occupied by dikes and channels. The construction cost for larger ponds will be lower if their long sides can be oriented parallel to the contours. The steeper the ground gradient the more important it becomes to orient the ponds parallel to the contour. Ponds oriented parallel to the contours also require a shallower cut and a shorter earthmoving haul, which is very important when the ponds have to be constructed with manual labour. The larger the pond, the more difficult it becomes to locate ponds parallel to the contours.
(ii) Water depth in the pond is determined by the following factors:
(a) species to be cultured in the ponds (Chen, 1976; Edwards, 1978; Huet, 1972; Lee, 1973)
|
Species
|
Average water depth in m |
||||
|
S |
N |
R |
H |
||
|
Common carp (Cyprinus carpio) |
0.4 |
0.8 - 1.5 |
1.0 - 2.0 |
1.5 |
|
|
Chinese carps: |
|||||
|
|
Grass carp (Ctenopharyngodon idellus) |
|
|
|
|
|
Silver carp (Hypothalmichthys molitrix) |
|
|
|
|
|
|
Big head (Aristichthys nobilis) |
- |
1.0-1.5 |
1.5-3.0 |
2.0 |
|
|
Mud carp (Cirrhina molitorella) |
|
|
|
|
|
|
Snail carp (Mylopharungodon piceus) |
|
|
|
|
|
|
Indian major carps: |
|||||
|
|
Rohu (Labeo rohita) |
|
|
|
|
|
Catla (Catla catla) |
- |
1.0-1.5 |
1.5-2.0 |
1.5 |
|
|
Mrigal (Cirrhinus mrigala) |
|
|
|
|
|
|
Tilapia species |
0-5-0.6 |
0.6-1.2 |
0.8-1.5 |
1.5 |
|
|
Grey mullet (Mugil cephalus) |
- |
1.0-1.5 |
1.5-2.0 |
1.5 |
|
|
Catfish species |
0.6-1.0 |
0.6 |
1.0-3.0 |
2.0 |
|
|
Black bass species |
0.6-0.9 |
1.0-1.2 |
1.0-2.0 |
1.5 |
|
|
Pejerrey (Basilichthys bonariensis) |
- |
0.8 |
1.2 |
1.2 |
|
|
Colossoma species |
|
1.0 |
1.2 |
1.5 |
|
|
Rhamdia species |
- |
1.0 |
1.5 |
1.5 |
|
|
Eel species |
- |
0.4-0.6 |
1.0-1.5 |
1.5 |
|
|
Freshwater prawn (Macrobrachium rosenbergii) |
- |
|
0.9 |
|
|
|
Rainbow trout (Salmo gairdneri) |
- |
|
1.5-2.0 |
2.0 |
|
(b) Meteorological featuresBoth air and water temperature as well as wind velocity must be considered in determining the water depth in the pond.
In the tropical region, the daily temperature fluctuations are smaller in deeper ponds than in shallow ponds because of the greater ratio between the water surface and volume. This is important because the optimal water temperature required for a higher fish production may be assured with a sufficient water depth. Whereas, in colder areas, such as Europe, where the problem is how to attain higher water temperatures in the ponds more rapidly, the shallower ponds are recommended to achieve a relatively high fish production (Hepher, 1981).
The direction and average velocity of the prevailing winds affect the natural circulation in the ponds which is very important for deeper ponds.
When the water source is solely runoff, sometimes it is necessary to increase pond volumes by increasing depth so as to accumulate enough water during the rainy season to suffice for the entire growing season.
(iii) Pond bottom
In order to drain water completely the bottom of the smaller ponds and the bottom of the internal channels in the larger ponds must be sloped towards their outlet points respectively. A minimum bottom slope of 0.1 to 0.2 % is sufficient
(iv) Dike
Measurements and slopes of the dikes should be determined according to the depth of water in the pond, the size of the pond, soil conditions, construction method and the requirements of transport as well as transit on the dike. The following figures represent good practice:
|
Water depth in the pond |
Top width of dike |
Free board |
|
(m) |
(m) |
(m) |
|
0.50 |
0.50 |
0.40 |
|
0.50 - 0.80 |
0.50 - 1.00 |
0.40 - 0.50 |
|
0.80 - 1.20 |
1.50 |
0.50 |
|
1.20 - 2.00 |
2.00 - 2.50 |
0.50 |
|
2.00 - 3.00 |
2.50 - 4.00 |
0.50 - 0.60 |
Top width for a road used by vehicles should be a minimum of 3.0 m. If there is a feeder channel on the top of the dike, its top width should be wide enough for both the feeder channel and a road or a passage way. The latter is needed for pond operations and maintenance of inlets and feeder channel (Tapiador, 1977).The side slopes of the dikes depend upon the soil conditions, water depth and size of the pond, as well as the expected wave actions. The following slopes are recommended for dikes in various soils:
|
Type of soil |
Inside slope |
Outside slope |
|
Sandy loam |
1:2 - 1:3 |
1:1.5 - 1:2 |
|
Sandy clay |
1:1.5 |
1:1.5 |
|
Firm clay |
1:1 |
1:1 |
|
Inside brick lining |
1:1 - 1:1.5 |
1:1.5 - 1:2 |
|
Inside concrete lining |
0.75- 1:1 |
1:1.5 - 1:2 |
The exposed parts of the dike (outside slope, crown, inside slope above the water level) should be protected by grass against erosion. In ponds with more than about 0,5 ha of water surface, wave protection made of branches, rip-rap, brick lining, bamboo matting, etc. is required at the water level (Stickney, 1979).In order to have a stable dike, a berm with a width of 2.0 to 4.0 m must be left between the dike toe and the drainage channel (Khanna, 1981).
v) Inlet and outlet structures
A fish pond should have separate inlet and outlet structures for water supply and drainage as far as possible. The inlet may be anything from a simple pipe to a concrete sluice. It is very important that the inlet be screened to prevent predatory fish and other animals from entering the pond. The floor level of the inlet is usually higher by a minimum of 0.10 m than the water level in the pond partly to ensure water aeration and partly to avoid escape of stocked fish. Protection must be provided against erosion under and around the inlet. The inlet is better located in the centre of the short side of the pond, in order to provide better water circulation (Hora, 1962).
The outlet should be, generally, on the opposite side to the inlet in smaller ponds. A turndown pipe, open sluice or monk are used as outlet structures. The best type of outlet for controlling water level in the pond and draining the pond is the monk. The monk consists of a vertical tower with three pairs of grooves for housing screens and stoplogs and a horizontal conduit passing across the dike at the lowest level of the pond. It is advisable to provide a harvesting box at the downstream end of the conduit for harvesting the pond without netting. This harvesting box may also be used for breeding or for holding fish for marketing. The size of inlet and outlet should be calculated on the basis of the time needed for filling or draining the pond respectively (Wheaton, 1977).
For designing inlets of ponds the required filling times of different types of ponds can be considered as follows:
|
Type of ponds |
Filling time in days |
|
Spawning |
0.1- 0.3 |
|
Nursery |
0.2 - 0.5 |
|
Rearing and production |
1- 10 |
|
Holding |
0.5 - 2 |
For calculation of the discharge of the feeder channel including intake structure or pumping station the peak water demand has to be considered. The total filling time of all the ponds can be calculated as 6 to 30 days for 5 to 25 ha ponds. The drainage time for different types of ponds should be as follows:
|
Type of ponds |
Drainage time in days |
|
Spawning |
0.2 - 0.4 |
|
Nursery |
0.2 - 0.5 |
|
Rearing and production |
2-8 |
|
Holding |
0.5 - 1.0 |
The total drainage time of all the ponds can be calculated as 5 to 25 days for 5 to 25 ha ponds.The structures used for fish ponds are made of various materials. For designing these structures the durability and maintenance cost of the materials used should be taken into account as follows:
|
Material |
Durability |
Maintenance cost |
|
(years) |
(%) |
|
|
Reinforced concrete (1:2:4) |
20-30 |
100 |
|
Stone rubble in 1:5 cement mortar |
10 - 15 |
150 |
|
Brick masonry in 1:5 cement mortar |
5-10 |
250 |
|
Wooden |
5-8 |
300-400 |
3.2.3.1 Water requirement calculations
The annual water requirements of fish ponds will depend on the soil conditions found at the project site, environmental factors, cultured species and the chosen technology of fish culture. To avoid any difficulty during the operation period of fish ponds all the factors have to be considered in this calculation. The necessary amount of water for a pond in an average year can be calculated using the equation below:
|
Qr = Vf + Vrf + Le + Ls + Lc |
Vra (m3) |
or
|
|
(l/sec) |
where
Qr = annual water requirement (m3 or l/sec)
Vf = A×h = the pond volume to be filled (m3)
A = average water surface area of pond (m2)
h = average water depth of pond (m)
Vrf = No×Vf = the pond volume to be refilled (m3)
No = number of refillings a year
Le = A×E = water loss from evaporation (m3)
E = mean annual evaporation (m)
Ls = A×T×S= seepage loss in the pond (m3)
S = seepage coefficient (m/day)
Lc = Ac×1.2×E = transmission loss in earthen channel (m3)
Ac = water surface area of feeder channel (m2)
Vra = Aeff×Ra = water inflow from rainfall to pond (m3)
Aeff= total area of pond including 70 dikes affected by rain (m3)
Ra = mean annual rainfall (m)
T = operational time in days.
For a hatchery, the peak water demand should be determined considering the production target and hatchery technology proposed (Piper, 1982).
For a raceway system, the maximum flow of water should be calculated. This can be determined from the number of daily water changes in the raceway and the cross sectional area of the raceway (Leitritz, 1980).
3.2.3.2 Hydraulic computations
To avoid overdesigned sizes of hydraulic structures for fish ponds or hatchery, and to assure that their sizes are adequate for smooth operation, hydraulic computations to determine their sizes should be performed, as follows:
(a) for water supply system- design of the main and secondary feeder channels including intake, division boxes, pumping station or syphon, etc.- design of inlets
(b) for drainage system design of outlets
- design of drainage channel including its structures, i.e. culvert, fall, etc.(c) for hatchery
- design of the capacity of pump including its overhead tank design of the water supply pipeline
- design of the drain pipeline
- design of the filter system
To calculate the sizes of the above-mentioned or other hydraulic structures the hydraulic formulas given in Chapter 8 include all the formulas required to determine the sizes of the hydraulic structures. Obviously, the peak water demand based on the production calculations should be considered.
3.2.3.3 Structural calculations
In order to achieve sound hydraulic structures and buildings the structural calculations should be performed.
3.2.3.4 Stability analysis of dikes
The dikes of fish ponds must be safe and stable during all phases of construction and operation of fish ponds. To accomplish this, the following criteria should be met:
(a) the dike must be safe against sliding by water force(b) the slopes of the dike must be stable during construction and under all conditions of pond operation including rapid drawdown of the pond (Creager, 1950)
(c) the dike must be designed so as not to impose excessive stresses upon the foundation
(d) seepage flow through the dike, foundation and structures must be controlled so that no internal erosion takes place and so there is no sloughing in the area where the seepage emerges. The amount of water lost through seepage must be controlled so that it does not interfere with planned project functions.
An earthfill dike designed to meet the above criteria will prove permanently safe provided proper construction methods and control are achieved (Capper, 1978)
To prepare drawings based on detailed investigations and designs, the following should be noted:
- to ensure the most economic solutions and to avoid any delay in construction as a result of shortage of materials, the structures and any buildings should be generally designed with available local materials (Tang, 1979);- to ensure durability of structures and buildings, etc., the best quality materials and workmanship must be used;
- to maintain a high quality of construction, standard local construction techniques should be taken into account when the facilities are designed, and in particular when the measurements of earth works are determined.
3.2.4.1 Requirements of detailed drawings
(i) Location, boundary, contour and land mapsThe requirements of the above maps have been discussed in point 3.1.1.1.
(ii) Layout plan
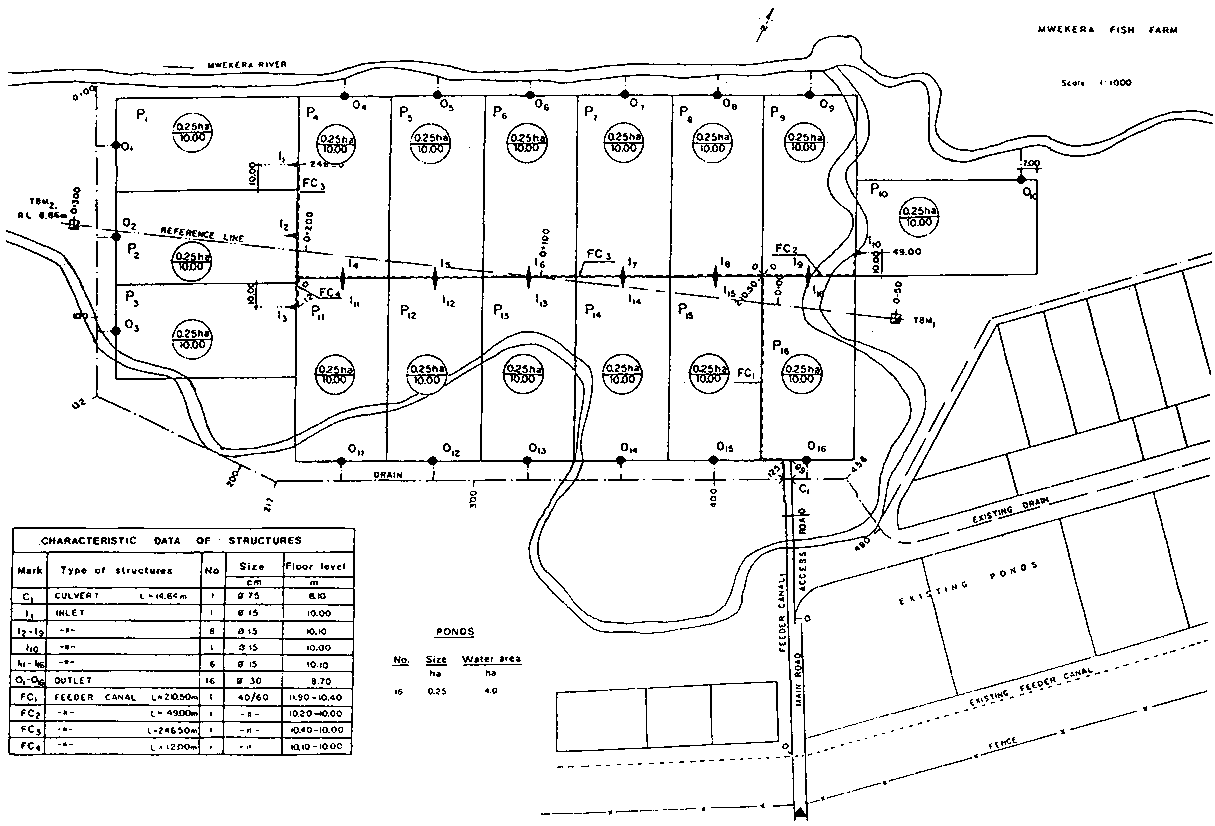
This plan, depending on the size of the project area, must be scaled in 1:1000 to 1:5000. The layout plan must show the contour lines if those are not provided on a separate contour map and all the establishments found at the site such as the existing roads, electric and telephonic lines, rivers and drains or other channels, buildings, underground pipelines, boundary lines, including the location of the PBRs and the TBMs with their elevations, the North line and the scale used for planning. In addition, the layout plan must show the designed establishments such as fish ponds with their measurements and area as well as the FSL in the ponds, the location of the feeder and drainage channels, all the structures with their mark and number, the hatchery and other buildings needed, the pumping station or other water sources, i.e. wells, etc., the approach road, etc. The characteristic data of the structures such as their mark, size and floor level must be given in a table on the layout plan as shown in Figure 3.
A separate layout plan must usually be prepared for the buildings showing their locations including the internal roads, the measurements and the floor levels of the buildings, etc., their connections to the designed ponds, the North line as well as other facilities, i.e. electric and water supply pipelines, etc. This plan is generally scaled in 1:500 to 1:1000.
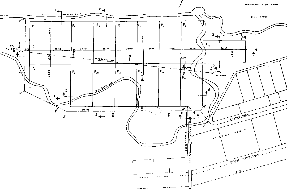
(iii) Setting out plan
In order to ensure the accurate marking-out of all the earthworks of the fish farm, a setting out plan must be prepared. The reference line including the TBMs, all the measurements of the fish ponds and drains, as well as feeder canals, including the location and numbering of the cross sections required to peg out the centre lines of the dikes and the channels must be illustrated on this plan as shown in Figure 4. The elevations of the TBMs and other data needed for setting out the facilities should also be given in this plan. The TBMs should be established in such positions that they cannot be destroyed by the machines during the construction period. The scale of this plan is the same, or less, than that used for the layout plan.
(iv) Cross-and longitudinal sections of earthworks
(a) Cross-sectionsCross-sections of dikes, feeder and drainage channels, inner channels and harvesting pits in the ponds should be given in the detailed plans scaled in 1:100. Two types of cross-sections should be noted as follows:
1) Typical cross-sections can be prepared for a smaller project located on flat land. In this case the cross-sections must show all the measurements including their slopes, etc., except their actual height.2) Cross-sections prepared for a medium or larger project should be generally shown for every 50 m of their longitudinal sections including all the dimensions required for their marking out, as well as their actual height. In this case, the section number of cross-sections should be indicated on the drawing. Using these cross-sections, the earthwork calculations for the bill of quantities can be easily done.
In addition to the above, the necessary elevations for both the top of the dikes, the FSL in the ponds and the pond or drain bottoms must be indicated in all the cross-sections. A mark, number or section number must be given to each cross-section. The existing ground level including the instructions referring to the topsoil removal from the basement of the dikes, should be noted on the plan. It is very important that the axis of the dikes and drains, as well as their distances, be illustrated on the drawing.
From time to time when the soil used for construction of dikes has a higher seepage coefficient than required for an impervious dike, a clay core should be designed into the dikes. In this case, the measurements of the proposed clay core including the specifications needed for the core materials must be shown in the cross-sections.In the larger ponds, wave protection has to be provided. Therefore, a typical cross-section of the proposed wave protection in the ponds should be prepared in a scale of 1:50. All the materials, both in quantity and quality, with their specifications should be given in this cross-section.
(b) Longitudinal sections
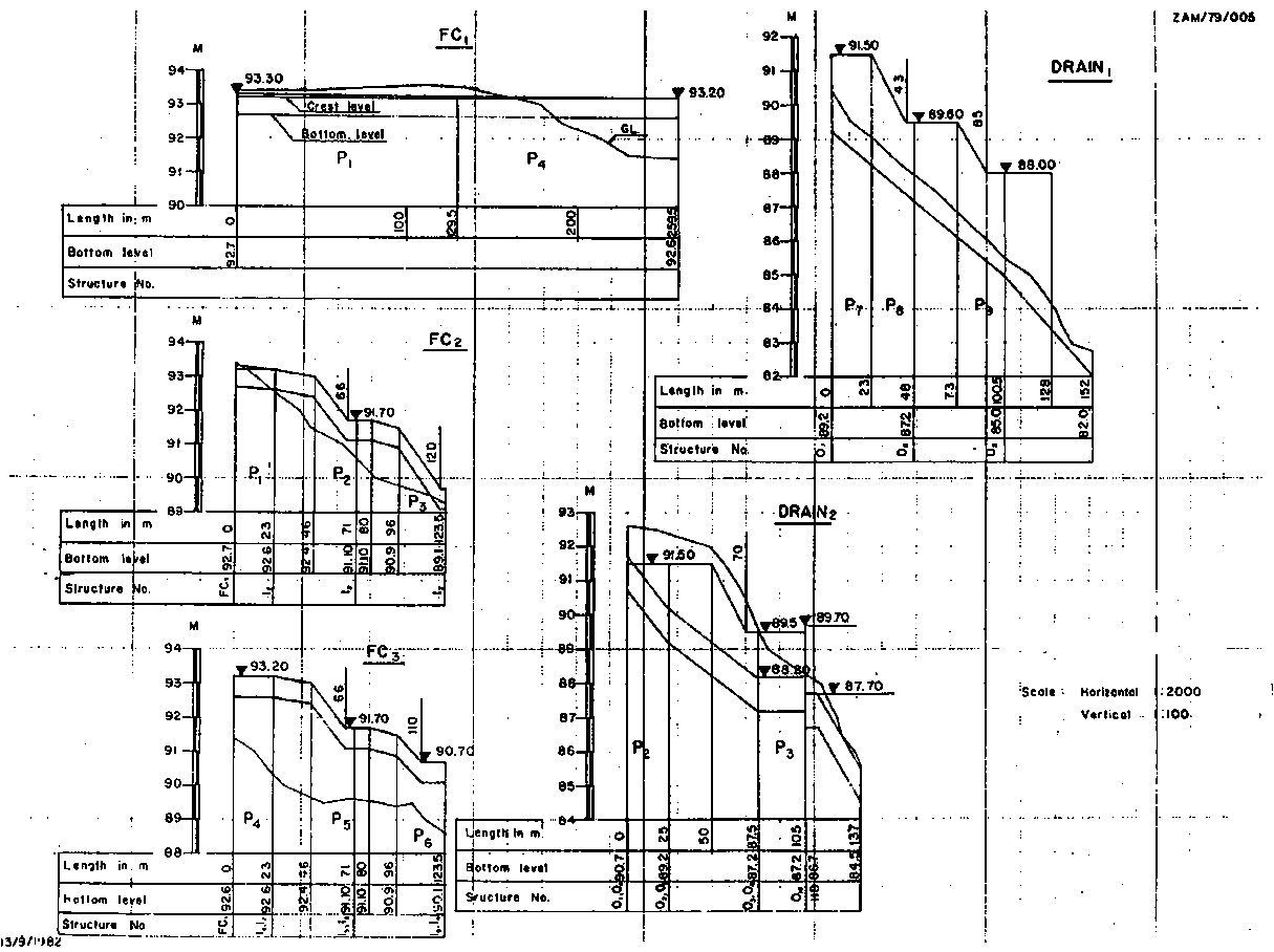
In general the longitudinal sections are to be plotted in the scale of 1:100 in vertical and 1:500 to 1:5000 in horizontal. They should contain as shown in Figure 5, the length, bottom level in the ponds or in the drains, the location and mark of the structures and dikes, the ground level, the designed crest level of the dikes, as well as the FSL in the ponds. Longitudinal sections will have to be prepared in the following cases:
1) In a barrage pond system for the valley section occupied by:- fish ponds
- each dam of the fish ponds
- the diversion channel2) In a larger contour pond system for the water supply channel, i.e. irrigation channel to the fish farm:
- the main and secondary feeder channels to the fish ponds
- the main and secondary drains
- the inner drains in the ponds
- the dikesThe longitudinal sections including the cross-sections concerned can be used for the quantity calculations of the different earthworks.
(v) Structural detailed drawings
Based on the result of the hydraulical computations and the structural calculations, the detailed drawings of all the hydraulic structures including also the feeder channels as well as the pumping station if needed, must be prepared in the following detail:
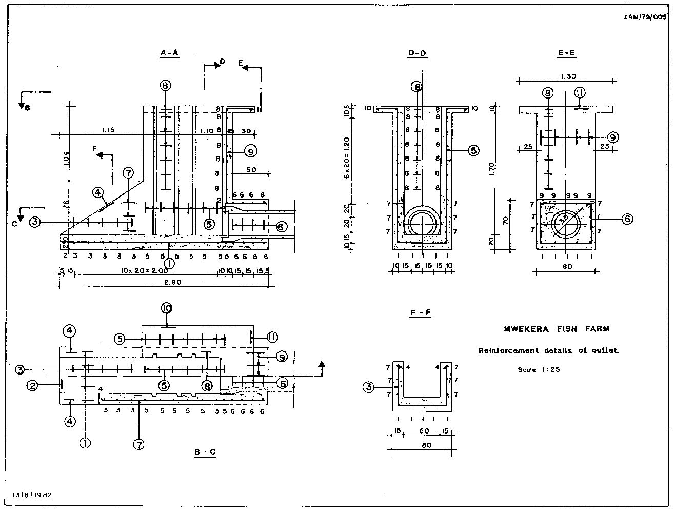
1) Layout plan of the structure scaled at 1:50 to 1:200 must show the plan, the required sections and views as well as other details of the structure with all measurements and elevations required for formwork, its connection to the dike and the drain, etc., as well as the quality of the different materials designed for the structure as shown in Figure 6.2) Reinforcement details of the structure as shown in Figure 7 scaled in 1:25 to 1:50 should show all the bars including their spacing and mark in detail sections needed for its construction.
3) Reinforcement plan should give the quality, mark, shape in cm, diameter in mm, number, unit length and total length as well as total weight of bars required for construction of the structure as shown in Figure 8.
The additional detailed plans of the screen, the stoplogs or the installation plans of the pumps for the pumping station, must be prepared in a similar format and detail.
Figure 5. Longitudinal sections - Chipata Fish Farm
Figure 6. Mwekera Fish Farm. Details of outlet
Figure 7. Mwekera Fish Farm. Reinforcement details of outlet
Figure 8. Mwekera Fish Farm
Figure 8. (Cont'd)
(vi) Hatchery buildingBased on the production technology and other calculations, the detailed plans of the hatchery, depending on its output capacity must be prepared in the following detail:
1) Layout plan of the hatchery scaled at 1:50 should show facilities for egg incubation and fry of fingerling holding tanks of spawners, the necessary space for handling and treatment of spawners, storage facilities for feed, equipment as well as laboratory room in which the required chemical and other materials may be stored (Bardach, 1972; New, 1982).2) Plumbing plan should include all the pipelines of both water and air supply to the incubation and rearing facilities showing the materials and size of each pipe including fittings as well as the designed drainage facilities.
3) Installation plans of the incubation and rearing facilities should be separately provided in detail with a scale of 1:10 to 1:50.
4) Reinforcement details of the different tanks and the building as well as other detailed plans needed for construction of the hatchery must be provided in a scale of 1:10 to 1:50.
Before approving a project, the cost of work required must be thoroughly investigated. It is necessary to prepare the cost estimate, for the intended work from the plans and specifications. Thus, an estimate for construction work can be defined as the process of calculating the quantities and costs of the various items needed in connection with the work (Chakraborti, 1922).
Quantity Estimate or Quantity Survey
This is a complete estimate of the quantities of materials or items that may be required to accomplish the project concerned. The quantity estimate is one of the most important ones in order to arrive at an accurate cost estimate for the detailed plan.
Detailed Estimate
Based on the results of the quantity estimate, this includes the cost estimate of everything required for satisfactory completion of work, and should be the best and most reliable estimate that can be made.
Complete Estimate
This is an estimated cost of all items, i.e. cost of main contract or material, labour and supervision, cost of land, engineering fees, miscellaneous, viz. removal costs of owner, contingency percentage, etc., which are related to the work in addition to the detailed estimate.
4.1.1 General abstract of cost
4.1.2 Abstract of cost
4.1.3 Analysis of rates
4.1.4 Quantity estimates
Based on the methods used for the preparation of detailed estimates in different countries, in general the principal parts of the detailed estimates consist of the following:
This includes the name of the project, the date of preparation and the cost of different main sub-headings, including engineering cost of civil works, cost of equipment and land, etc. as well as contingencies. The detailed cost of each sub-heading is not shown in the general abstract of cost.
The estimated cost of each and every individual item of work is calculated by multiplying the quantity by the specified rate in tabular form known as "Abstract form' as shown below, then adding all together to get the actual estimated cost of work. A percentage (1.5 to 2.5 percent) of the above estimate is usually added for a work charge along with an amount (usually 0.5 percent) for tools and plant, to calculate the grand total of the estimated cost.
|
S1. |
No. |
Description of item |
Unit |
Quantity |
Rate |
Amount | |
|
|
|
|
|
|
|
| |
|
|
|
|
|
|
|
| |
|
|
|
|
|
|
|
| |
|
|
|
|
|
|
|
| |
|
|
Total: | ||||||
|
|
1 ½ % for work charge | ||||||
|
|
½ % for tools and plant | ||||||
|
|
|
GRAND TOTAL: | |||||
In order to ensure that the detailed estimates can be easily surveyed, sub-headings are usually required. In this case, each sub-heading of the estimate is grouped for similar items of work. For an aquaculture project, the sub-headings should be as follows:
(a) Site clearing and preparation(b) Earthwork - this includes excavation, filling, dressing, dewatering, etc.
(c) Concrete work - this includes plain and reinforced concrete works, prefabricated concrete works, formwork for concrete structures, etc.
(d) Brickwork - this includes brickwork in foundation and plinth, brickwork in superstructures, etc.
(e) Stonework - this includes stone work for bed or wave protection and in structures, etc.
(f) Woodwork
(g) Steelwork
(h) Roofing
(i) Water supply and sanitary works
(j) Miscellaneous
(k) Finishing
The abstract of cost should contain the different sub-headings shown separately and added together to show the cost to complete the project.
In order to provide a correct and reasonable rate per unit for a particular item, a detailed surveyed called an "Analysis of rate" should be conducted on costs of materials, labour and equipment as required for the unit following its specification. The rate per unit of an item consists of the following:
(a) Quantity of materials and their costThe quantities of various materials required per unit rate for an item are determined by the specifications. The cost of materials should be the cost on site. To calculate this, an analysis of rates of materials should be calculated separately. This includes the market cost of the materials, including loading and unloading costs, 10 percent profit, and transportation costs.(b) Labour cost
This includes the number of labourers, skilled and unskilled, and their respective wages multiplied by the hours required to complete per unit.(c) Cost of equipment, tools or plant
Wherever possible, the cost of equipment should be allocated to a specific item of rate, i.e. the cost of operating a concrete mixer should be spread over those items for which it is used. For certain tools and plant it is difficult to allocate their use to an individual item of rate, and it is therefore suggested that this expenditure be included in overheads, i.e. establishment charges.(d) Overhead or establishment charges
These include such items as office rent and depreciation of equipment, salaries of office staff, postage, lighting, travel, telephone charges, plans and specifications, etc. They are usually 2 /2% of the net cost of a unit of rate, and may increase to 5 percent.(e) Profit
In general, a profit of 10 percent is calculated for ordinary contracts after allocating all charges for equipment, establishment, etc. For small jobs 15 percent profit and for large jobs 8 percent profit should be considered as common figures.For such items of work for which it is difficult to prepare an analysis of rate, a lump sum (L.S.) rate should be provided in the estimate.
4.1.3.1 Schedule of rates or data for costing
To facilitate the preparation of estimates and to enable them to be prepared in a uniform manner, a schedule of rates or data for costing each kind of work commonly executed is provided by different departments in each country. These usually include general conditions, general specifications, items of different works, data for transportation, materials and labour, method of rate analysis, plant rate analysis and basic unit rate analysis.
As mentioned previously, quantity estimates of items of various works should be prepared to provide an accurate cost estimate for the implementation of a project. Quantity estimates should be prepared separately for both the structures and the earthworks.
(i) Quantity estimates for structures and buildingsMeasurement of all structures and buildings should be taken as per the standard specification, or as per the schedule of rate, or as per current practice.(ii) Quantity estimates of earthworks
The quantity estimates of earthworks, using the plans of cross and longitudinal sections, as well as contour plans if needed, should be prepared. Measurements for earthwork shall be calculated from the relevant drawings.
Calculating formulas
(1) Sectional area having no transverse slope for diking or cutting with same side slopesA = B×d +s×d2, m2
where
B = crest width of dike, m
d = height of diking or depth of cutting, m
s = ratio of side slope as horizontal: vertical(2) Sectional area having no transverse slope for diking or cutting with different side slopes
|
|
m2 |
whereb = base width of dike, m(3) Irregular sectional area
Simpson's rule: divide the sectional area into an even number (n) of parallel strips by means of (n + 1) ordinates, spaced equal distances, d
(first ordinate + last ordinate + 2 S, odd ordinates + 4 S even ordinates)
(4) Volumes of earthwork
(a) Mid section formulaIn this formula, the mean depth or height should be calculated first by averaging the depths of two consecutive sections. From the mean depth the area of mid section should be calculated and volume of earthwork computed by multiplying the area of mid section by the distance between the two original sections. To estimate the quantity of earthwork for a dike or a channel whose level sections are taken at a distance, D, which may be varied depending on the ground level in the longitudinal section of the dike or the channel, a tabular form can be used as shown below:
|
Station |
Height or depth at station (m) |
Mean height or depth (m) |
Sectional area(m2) |
Distance between |
Quantity | |
|
|
|
|
|
stations (m) |
Dike (m3) |
Cutting (m3) |
|
1 |
2 |
3 |
4 |
5 |
6 |
7 |
(b) Trapezoidal or end areas formulaThis method is based on the assumption that the mid area of a pyramid is half the average area of the ends and the end sections are in parallel planes. If A1 and A2 are areas of the ends the volume of the prismoid is given by
Quantity of earthwork may be calculated by trapezoidal formula in a tabular form as shown below
|
Station |
Height or depth at station |
Sectional area |
Mean sectional area |
Distance between stations |
Quantity | |
|
|
(m) |
(m2) |
(m2) |
(m) |
Dike (m3) |
Cutting (m3) |
|
1 |
2 |
3 |
4 |
5 |
6 |
7 |
(c) Prismoidal formulaIf the volume of earth between two successive cross-sections is considered a prismoid, then a more precise formula, the prismoidal formula, may be used. It is generally considered that end sections are in parallel planes.
(first area + last area + 4 S even areas + 2 S odd areas), m3
There are a number of alternative ways in which the prismoidal formula may be used. For instance, it can be used to calculate the volume of excavation in a smaller nursery pond applying the prismoidal formula for a single strip
, m3
where
D = depth of excavation, m
A1 = top area of excavation, m2
A2 = bottom area of excavation, m2
Am = mid area of excavation, m2(d) Volumes from contour lines
This method may be conveniently used where accurate contours are available. The contour interval will determine the distance D in the trapezoidal or prismoidal formula, and for accuracy this should be as small as possible, preferably 0.1 to 0.5 m. The areas enclosed by individual contour lines are best taken off the map by means of a planimeter. In computing the volumes, the areas enclosed by two successive contour lines are used in the trapezoidal formula, whence:
whereV = volume of earth between contour lines A1 and A2
D = vertical intervalThis method can also be used to calculate the volume of water contained in a reservoir, corresponding to a given height. This is done by calculating the total volume contained below successive contours and then plotting volume against height to give a curve from which the volume at intermediate levels may be read.
(e) Volumes from spot levels
This is a method by means of which the earthwork for pond bottom, borrow pits, etc. and similar works with vertical sides may be calculated. Using this method, the area marked out on the contour map should be divided up into squares or rectangles. Elevations are taken at each of the corner points and by subtracting these from the corresponding formation levels, a series of heights is obtained from which the mean height of a series of vertical truncated prisms of earth can be found. The volume of each prism is given by the plan area multiplied by the mean height of the prism. The prisms may, of course, be considered as either rectangles or triangles.
5.1 Advertisement for Bids (Notice to Contractors, or Invitation to Bid)
5.2 Draft Contract
5.3 Statements of Work, Services and Technical Specifications
5.4 Bill of Quantities
5.5 Schedule of Execution
5.6 Bidding Schedule
5.7 Approved Drawings
A tender is a written bid submitted by a Contractor in pursuance of the notification given, to execute certain work at calculated rates with the terms and conditions laid down in the tender documents.
For wide publicity of a major work, the sealed bids concerned are invited by advertising in a minimum of two daily local newspapers. All tender notices should be in the standard form established by the competent department. The advertisement should contain the following information: issuing office, brief description of work, location of project, estimated cost of work, office where plans and specifications can be obtained and charges for them, price of tender form and other tender documents, class of Contractors, earnest money to be deposited, time of completion, date for receipt of bids and time of opening of bids, accepting authority and rights reserved to the Owner. An example of a tender call notice is shown below.
|
ORISSA FISH SEED VIVEKANANDA MARG, BHUBANESWAR-751002 TENDER CALL NOTICE No. CAD-385K: - Managing Director, Orissa Fish Seed Development Corporation Limited. Vivekananda Marg, Bhubaneswar-2, Orissa invites sealed tenders for the following work from the registered contractors of State Public Works (R & B) and Irrigation Departments; Name of work:- Construction of 10 hectare fish seed hatchery project at Chiplima in the dist. of Sambalpur. Tender amount:- Rs. 12,25,191. Cost of tender paper:- Rs. 300 (Son refundable). E.M. 1% of cost of tender paper:- Rs. 12,250. Class of Contractor:- 'A' Class & above. Time of completion:-Twelve months. The tender paper will be sold during the office working days up to 9-12-82 and will be received on 10-12-82 at 2 p.m. and will be opened on the same day at 2.20 p.m. in the presence of the tenderer or their authorised representatives. The earnest money will be duly pledged to the Managing Director, Orissa Fish Seed Development Corporation Limited, Bhubaneswar in shape of N.D.C./N.P.S.C./N.S.C./Orissa Government Loan Bond/ Postal Savings Pass Book/Demand Draft on any Indian nationalised banks at Bhubaneswar, without which tender will be liable for rejection. Certified copy of the Sales Tax and Income Tax clearance certificates are also to be attached and the original to be shown at the time of opening. The authority reserves the right to cancel any or all the tenders without assigning any reason thereof. MANAGING DIRECTOR |
For smaller projects, an invitation for bids is issued by the owner to a selected group of Contractors. It conveys much of the information that would be included in an advertisement. In this case, instructions to bidders should be provided in the letter of invitation to the Employer.
5.2.1 Types of contracts
5.2.2 General provisions or general conditions
5.2.3 Special provisions or special conditions
For implementation of the construction works of a project, an agreement, commonly called a contract, between Owner and Contractor should be concluded which requires that certain legal formalities be observed by the parties. The nature and content of contracts vary from country to country and the terms of the contract should be precise and definite and there should be no room for ambiguity or misconstruction therein. To avoid this contingency, the government department and agencies as well as the Association of Consulting Engineers or the Institutions of Civil Engineers have established standard printed contract forms (Abrahamson, 1969).
Unit-price contract
For unit-price contracts. Contractors are required to quote rates for various items of work on the basis of the corresponding unit price.
Advantages of unit-price contract:
(i) This form of contract ensures a more detailed analysis of cost by the Contractor. The authority concerned with accepting the tender can easily control the rates with reference to its own calculations and decide which of the tenders is favourable.(ii) Since the Contractors are to write rates of individual items in figures as well as in words, it is not easy to form a ring during submission of tender and allot work to one of the Contractors without competition.
(iii) The Contractors work out the unit prices of all items of the Bill of Quantities in order to put them in the bid. Thus, an unworkable rated tender may be avoided, which leads to smooth progress and timely completion of the work.
Lump-sum contract
In this form of contract the Contractor is required to quote a fixed sum for execution of the work completed in all respects. For such a contract, it is very important that the drawings and specifications be comprehensive and show in complete detail all features and requirements of the work.
Advantages of lump-sum contract;
(i) The employer knows exactly what the work will cost.(ii) Detailed measurements of the work executed are not required to be recorded except in respect of additions and alterations.
Contract with lump-sum and unit prices
In this form of contract the Contractor is required to quote partly a fixed sum for execution of an entire structure completely detailed on the drawings, and partly unit prices which may be required for features of variable quantities such as excavation of drains for ponds.
Negotiated contract
When work is awarded on contract by mutual negotiation between the parties without call of tenders, it is said to be a negotiated contract. It may be in any of the forms mentioned above. Advantages of this contract are that it brings some economy in expenditure. The parties selected being always reliable and financially sound, ensure interrupted work with less chance of dispute.
Draft contracts consist of general provisions or general conditions and special provisions or special conditions. The general provisions set forth the rights and responsibilities of the parties to the construction contract and the surety, the requirements governing their business and legal relationships. Particular requirements of the project are separately inserted in the special provisions.
Governments have their own standard general conditions of contract provided on the printed tender form. The conditions specify mainly the following articles:
1. Definitions and interpretation
2. Engineer's representative
3. Assignment and subletting
4. Extent of contract
5. Contract documents
6. General obligations
7. Labour
8. Work materials and plant
9. Commencement time and delays
10. Maintenance and defects
11. Alterations, additions and omissions
12. Property in materials and plant
13. Measurement
14. Provisional and prime cost sums
15. Certificates and payment
16. Remedies and powers
17. Special risks
18. Frustration
19. Settlement of disputes
20. Notices
21. Default of Employer
The general provisions used by FAO in the contract for an aquaculture project as shown in Annex 2 specify the following articles:
1. Nature and interpretation of contract
2. Delays and default
3. Acceptance
4. Copyrights and patents
5. Disputes and arbitration
6. Liability with respect to claims
7. Changes and amendments
8. Termination
9. Notices
There are several articles or clauses in the special provisions of a contract to govern the character of the work to be carried out. Annex 3 shows the general form used by FAO for aquaculture projects which comprise mainly the following articles:
1. Work and services to be executed by the Contractor
2. Equipment, materials, supplies, services and personnel to be provided by the Contractor
3. Schedule of performance
4. Authorizations and permits
5. Levies, duties, taxes, etc.
6. Statement of accounts and/or invoices of Contractor
7. Overpayments
8. Remuneration and method of payment
9. Revision of prices
10. Bonus for early completion and penalties
11. Certificates of completion of works
12. Period of maintenance
13. Completion of period of maintenance
14. Supervision of works
15. Construction site logbook
16. Organization of the construction site
17. Particulars to be supplied
18. Presence of the Contractor on the construction site
19. Insurances at the cost of the Contractor
20. Clearance of site on completion
21. Patent rights and royalties
22. Inspection of site
23. Designation of the Organization's Resident Engineer
Statements of work and services contain the scope of the work including description of the site for work, soil characteristics determined by the reconnaissance soil survey carried out at the site, meteorological features needed for the construction works and the operation of the project, description of the project in detail including the construction works and services required.
The technical specifications contain detailed descriptions of all workmanship, services and materials as well as testing methods which are required to complete a project in accordance with the drawings and specifications.
The specifications required for a project are as follows:
1) Specification of work is required to describe the quality and different materials needed for a construction work and is one of the essential contract documents. In this manner the Contractor can prepare a programme to procure the materials required for a project as well as enabling the Owner's representative (the Engineer) to check the quality of materials, confirming the specifications and thereby avoiding any dispute with the Contractor.2) This also specifies the scope of work and services provided by the Contractor to the Engineer as well as the workmanship, including the method of performing the work. Thus specification of a work serves as a guide both to the Contractor and the Engineer in order to execute the work to their satisfaction.
3) As the rate of work is based on a specification, the Contractor can calculate the rates of various items of works in a tender with his procurement rates of materials and labour. Thus tender documents without specifications of works are baseless;
4) The necessity of specification is to test the quality of materials for the work involved in a project.
5) Specification is an essential contract document and is required for Arbitration or court cases.
The specifications are divided into two types as follows:
Standard specifications
The governmental departments and other public agencies sponsoring public works publish "standard specifications", ensuring a uniformity of administrative procedure and of quality of constructed facilities, as evidenced by specific requirements of materials and workmanship (Merritt, 1968).
Master specifications
In order that the specifications for a particular contract may be completely adaptable to the work of a contract, the standard specifications almost always require modifications and additions. Therefore, master specifications are prepared by design organizations. A master specification covers a particular item of construction, such as excavation of drains, dikes and concrete structures of ponds, etc. It contains requirements for all possible conditions and construction that can be anticipated for that particular item.
Specifications usually are written in the traditional style of composition. They should be prepared with as much detail as necessary to convey that which is required and hence agreed to. Ambiguity and verbosity should be avoided. A good specification is clear, concise and easily understood. The courts have traditionally interpreted ambiguous requirements against the party who prepared them. Since specifications supplement the drawings, the special provisions and standard specifications together should not leave any doubt as to the quality of the required work.
An example of Technical Specifications prepared for the construction of Chipata Fish Farm is given in Annex 4.
A bill of quantities or schedule of quantities consists of a complete list of all various items of works for a project, giving the item number and description of items with unit and quantity of work against each, thus enabling an estimated calculation of price of work. The bill of quantities is prepared from drawings and specifications and is arranged in a tabular form without completing columns of rate and amount. An example of a bill of quantities for construction of outlets is shown in Annex 5.
The work of a project is usually divided into separate elements for payment purposes with respect to the kind of work involved, each element as a separate bill designated as a payment item. The total price of a bid is obtained by summation of the amounts for all items scheduled in the tender, arrived at by multiplying the estimated number of units for each item by the corresponding unit-price bid. A sample summary used for bill of quantities and contract cost is shown in Annex 6.
The Contractor shall complete the work and services of the project to be executed under the contract in accordance with the schedule of execution.
Schedules may be performed in either tabular or graphical form, although the graphical form is generally used because of ease in visualization.
The most widely used graphical presentation of schedule of execution is the rectangular bar chart (Figure 9). It shows starting and completion dates for each item of work. It indicates the items on which work must proceed concurrently, items that overlap others and by how much, and the items that must be completed before work on others can begin. It is a convenient way to advise the Contractor of necessary material delivery dates.
For comparing performance of work with that scheduled, a bar is usually placed above the schedule bar showing actual start and completion dates. The chart in Figure 9 indicates that clearing and preparing of site started on the date programmed and was completed ahead of time whereas construction of outlets began late. At the close of August, construction of outlets was 75% complete. This method has the advantage of being simple. It can be used for a small-scale project, however a more detailed schedule of execution is required for a large-scale project. In this case bar charts have to be separately prepared for performance of work items and others showing materials and different machinery needed for all items of works.
Figure 9. Rectangular-bar progress schedule

The bidding schedule is a very important document on which the contractor summarises his bid including the total price of bid, the load bearing capacity of the soil at the site on which the bid is calculated and confirms as well as signs the terms and conditions of the contract. There are various forms of a bidding schedule. A sample form of this used by FAO for aquaculture projects is given in Annex 7.
One set of approved drawings prepared for the project should be provided with the tender, on which the bidders will be able to control the tender's bill of quantities and calculate their bids. The following drawings have been generally enclosed with the tender documents:
1. Location map of the project, scale 1:50 000
2. General layout of the project, scale 1:2 000
3. Setting out plan, scale 1:2 000
4. Cross-section plan, scale 1:100
5. Longitudinal section of drains, dikes, etc., scale 1:2 000/1:100
6. Structural drawings, including reinforced concrete, scale 1:50
7. Details, scale 1:20
8. Plans of the hatchery and other buildings, scale 1:100
9. Plans of the pumping station, scale 1:500/1:50
10. Electrical installations, scale 1:50
11. Sanitary and other, if necessary, installations, scale 1:50
Further drawings may be issued from time to time at the discretion of the Engineer, as need arises.
Abrahamson, M.W., 1969, Engineering law and the I.C.E. Contracts. London, MacLaren & Sons, Ltd.
Alien, L.J. and E.C. Kinney (eds), 1981, Proceedings of the Bio-Engineering Symposium for fish culture, Bethesda, Maryland, Fish Culture Section of the American Fisheries Society, FCS Publication, 1:307 p.
Bardach, J.E., J.H. Ryther and W.O. McLarney, 1972, Aquaculture: the farming and husbandry of freshwater and marine organisms. New York, Wiley-Interscience, 868 p.
Buringh, P., 1979, Introduction to the study of soils in tropical and subtropical regions. Wayennigen, Centre for Agricultural Publishing and Documentation
Capper, P.-L., W.F. Cassie and J.D. Geddes, 1980, Problems in engineering soils. London, Spon Ltd., 276 p. 3rd ed.
Chakraborti, M., 1982, Estimating costing and specifications in civil engineering. New Delhi (privately published)
Chen, T.P., 1976, Aquaculture practices in Taiwan. Farnham, Surrey, Fishing News Book Ltd., 176 p.
Creager, W.P., J.D. 1950, Justin and J. Hinds, Engineering for dams. New York, John Wiley and Sons
Edwards, D.J., 1978, Salmon and trout farming in Norway. Farnham, Surrey, Fishing News Book Ltd., 208 p.
Hepher, B. and Y. Pruginin, 1981, Commercial fish farming with special reference to fish culture in Israel. New York, Wiley Interscience, 261 p.
Hora, S.L. and T.V.R. Pillay, 1962, Handbook on fish culture in the Indo-Pacific region. FAO fish. Tech. Pap., (14):204p.
Huet, M. and J.A. Timmermans, 1972, Textbook of fish culture: breeding and cultivation of fish. Farnham, Surrey, Fishing News Books Ltd., 436 p. 4th ed.
Kafuku, T., and H. Ikeneone, 1983, Modern methods of aquaculture in Japan. Tokyo, Kodansha Ltd., and Amsterdam, Elsevier, Developments in aquaculture and fisheries science, 11:216 p.
Khanna, P.N., 1981, Indian practical civil engineers' handbook. New Delhi, Engineers Publishers
Lee, J.S., 1973, Commercial catfish farming. Danville, Illinois, Interstate Printers and Publishers, Inc., 263 p.
Leitritz, E. and R.C. Lewis, 1980, Trout and salmon culture (hatchery methods). Calif. Fish. Bull., (164):197 p.
Linsley, R.K., M.A. Kohler and J.L.H. Paulhus, 1979, Applied hydrology. New Delhi, Tata, McGraw-Hill Publishing Co., 689 p.
Merritt, F.S., 1968 ,Standard handbook for civil engineers. New York, McGraw-Hill Book Co., pag. var. 2nd ed.
New, M.B. and S. Singholka, 1982, Freshwater prawn farming. A manual for the culture of Macrobrachium rosenbergii. FAO Fish. Tech. Pap., (225):116 p. Issued also in French and Spanish
Pillay, T.V.R., 1977, Planning of aquaculture development - an introductory guide, Farnham, Surrey, Fishing News Books Ltd., for FAO, 72 p.
Piper, R.G. et al., 1982, Fish hatchery management. Washington, D.C., U.S. Department of the Interior, Fish and Wildlife Service, 517 p.
Stickney, R.R., 1979, Principles of warmwater aquaculture. New York, John Wiley & Sons Inc., 375 p.
Tang, Y.A., 1979, Physical problems in fish farm construction. In Advances in aquaculture edited by T.V.R. Pillay and W.A. Dill. Farnham, Surrey, Fishing News Books Ltd., for FAO, pp. 99-104
Tapiador, D.D. et al., 1977, Freshwater fisheries and aquaculture in China. A report of the FAO Fisheries (aquaculture) Mission to China, 21 April-12 May 1976. FAO Fish. Tech. Pap.,(168):84 p. Issued also in French and Spanish
Terzaghi, K. and R.B. Peck, 1967, Soil mechanics in engineering practice. New York, John Wiley and Sons Inc.
US Department of Interior, 1965, Bureau of Reclamation, Earth manual. A guide to the use of soil as foundations and as construction materials for hydraulic structures. New Delhi, Oxford & IBH. Publishing Co., 783 p.
US Department of Interior, 1965, IBH Publishing Co., 816 p. 2nd ed.
Wheaton, F.E., 1977, Aquacultural engineering. New York, Wiley-Interscience, 708 p.
Woynárovich, E. and L. Horváth, 1980 , The artificial propagation of warm-water finfishes: a manual for extension. FAO Fish. Tech. Pap., (201):183 p. Issued also in French and Spanish
1. METHOD FOR DETERMINING PEAK FLOOD FOR MINOR STRUCTURES
2 To design small dams with small water catchment areas (< 100 km) for aquaculture projects, the peak flood estimate required for the spillway calculations can be determined by the rational formula (Linsley, 1979)
, m3/sec
where
Qp = peak rate of flow, m3/secC = coefficient of runoff
i = rainfall intensity in cm per hour for a given frequency and a duration equal to the time of concentration of the basin
A = water catchment area, ha Values for the coefficient of runoff are given in Table 1.
Table 1 Values of Coefficient of Runoff, C
|
Soil type |
Water catchment area cover | ||
|
|
Cultivated |
Pasture |
Woodlands |
|
Sandy or gravelly soils |
0.20 |
0.15 |
0.10 |
|
Loams |
0.40 |
0.35 |
0.30 |
|
Heavy clay soils or soils with a clay pan near the surface; shallow soils above impervious rock |
0.50 |
0.45 |
0.40 |
The time of concentration, Tc, is the time it takes for water to flow from the most distant point in the water catchment area to the outlet point. An equation for estimating this characteristic follows.
where
Tc = time of concentration in hoursL = length of the water catchment area along the main stream from the outlet to the most distant ridge in km
H = the difference in elevation between the outlet and the most distant ridge in km.
In areas where rainfall records are lacking, the time of concentration can be calculated to arrive at the duration of the design storm.
2. METHOD OF ESTIMATING ANNUAL UNIT WATER YIELD FOR UNGAUGED WATER CATCHMENT AREAS
In order to determine the annual water yield estimated from a catchment area where there is not enough data to make an accurate calculation, the following formulas proposed by Brenken can be used:
|
Region |
Formula |
|
Arid |
qA = 0.0555 R - 55 |
|
Subtropical |
qA = 0.373 R - 47 |
|
Tropical |
qA = 0.336 R - 179 |
|
Monsoon |
qA - 0.963 R - 630 |
where
qA = estimated annual unit water yield in mm
R = mean annual rainfall in mm
Contract No.
Article 1 - Nature and Interpretation of Contract
(a) The Contractor shall, for the purposes of this Contract, have the status of an independent contractor and shall be fully responsible, in particular, for acts or omissions of his employees. The Contractor and his employees shall conform to all applicable laws and regulations; he shall promptly correct any violations thereof and shall keep the Organization informed of any conflicts or problems arising in relation to the authorities of the country concerned.(b) The Contractor shall have the sole and full responsibility for the performance of his obligations under this Contract; except as may be provided for in this Contract or in a written authorization by the Organization, the Contractor shall not enter into any subcontracts or otherwise assign, transfer or charge to any third party any of his rights or obligations under this Contract.
(c) Nothing in this Contract or relating thereto shall be construed as constituting a waiver or privileges or immunities of the Organization, nor as conferring any privileges or immunities on the Contractor or his employees.
(d) No official, employee, or other representative of the Organization shall have any share in this Contract, or receive any benefit therefrom.
(e) In the event of any conflict or inconsistency between the provisions of Section I and Section II of this Contract, the former shall prevail.
Article 2 - Delays and Defaults
(a) If there should be any delay in the performance of this Contract or any part thereof, the Contractor shall notify the Organization in writing giving the cause, such notification to reach the Organization no later than ten days after the date on which the delay is known by the Contractor.(b) If the Contractor is unable to obtain any materials or services necessary for the performance of the Contract from his normal sources of supply, he shall remain liable for any delays when equivalent material or services can be obtained from other sources in good time.
(c) In any event, if the Contractor fails to make delivery of the material or to complete items or services required within the time specified in the Contract, or within any extension that may be granted, the Organization may, without prejudice to any further rights it may have under this Contract and in particular under Article 8 of this Section:
(i) Suspend or cancel the right of the Contractor to proceed further with any items or services - or part thereof - in which there has been a delay;(ii) Obtain elsewhere upon such terms and conditions as may be deemed appropriate, replacement items or services similar to those which the Contractor failed to provide; and
(iii) Make a corresponding adjustment to the consideration payable to the Contractor;
provided, however, that the Contractor shall continue performance of the Contract to the extent not suspended or cancelled under the provisions of this paragraph.
(d) The Contractor shall be liable for any excess costs or damage caused to the Organization by a failure or delay on the part of the Contractor in the performance of his obligations under the Contract, except where such failure or delay is due to:
(i) causes which are attributable to the Organization;(ii) any unforeseen cause beyond the control of and without the fault or negligence of the Contractor, including but not limited to acts of God, acts of Governments, fires, floods, epidemics, quarantine restrictions, strikes, lock-outs, and freight embargoes.
(e) If, in the event of a default by the Contractor or a delay attributable to him, the Organization is of the opinion that the determination of actual excess costs or damages, or any part thereof, incurred by the Organization is not practicable, the Organization may require the Contractor to pay, in lieu of or in addition to actual damages, as the case may be, the amount specified in, or to be calculated in accordance with, the relevant provision of Section 1 of this Contract, as fixed, agreed and liquidated damages for the duration of the delay or default.
(f) The Organization shall determine the effects of any delay or default particularly in regard to an adjustment of the consideration due to the Contractor and to excess cost or damages caused to the Organization and its findings shall be binding, provided always that the Contractor shall have the right to avail himself of the provisions of Article 5 of the section.
Article 3 - Acceptance
(a) The Organization may examine any item, equipment, materials, supplies and/or services to be provided under this Contract, at any time prior to expiry of this contract.(b) The Organization may reject any item, equipment, materials, supplies or services or may require alterations thereto or replacements thereof as a condition for acceptance, and its findings shall be conclusive except in regard to defects or fraud which may appear later.
(c) Should the Contractor be unwilling to accept any decisions made under (b) of this Article, he shall have the right to avail himself of the provisions of Article 5 of this section.
(d) If this Contract specifically requires the Contractor to procure equipment, materials or supplies on behalf of the Organization, such procurement shall be of new equipment, materials or supplies unless procurement of used equipment, materials or supplies is approved in advance in writing by the Organization.
Article 4 - Copyrights and Patents
(a) The copyrights of each and any related part of the work to be performed under this contract shall be vested in the Organization including, without any limitation, the rights to use, publish, sell, or distribute, privately or publicly, any item or part thereof.(b) The Contractor shall defend and hold the Organization, its employees and agents free from any liability whatsoever, for or on account of the use or infringement of any copyright, patterns, trade mark, personal or private right, or the right of any Corporation or Association in connection with this Contract.
(c) The Contractor hereby warrants that he has the right to grant the copyright and other rights referred to in this Contract to the Organization and that the materials shall be free from unlawful matters.
(d) Should any claim arise out of an infringement of any third party right whatsoever the Contractor shall be responsible for settlement and he shall indemnify the Organization against all loss, injury or damage, including any legal costs or expenses, properly incurred by or occasioned to the Organization as a result of any break of the warranty mentioned in paragraph (b) above.
(e) Any copyright or other rights, patent or other protection which is to be excepted from the operation of this Article shall be specifically stated in Section I.
(f) The covenants and warranties specified in this Article shall not apply to material which the Organization has furnished to the Contractor.
Article 5 - Disputes and Arbitration
(a) Except as otherwise provided in this contract, any dispute between the Contractor and the Organization arising out of this Contract shall be settled by mutual agreement between the contracting parties.(b) If the contracting parties are unable to reach an agreement on any question in dispute or on a mode of settlement other than arbitration, either party shall have right to request arbitration in accordance with the rules set forth for this purpose, by the International Chamber of Commerce.
(c) The parties agree to be bound by any arbitration award rendered in accordance with the above paragraph, as the final adjudication of any such dispute.
Article 6 - Liability with respect to Claims
(a) The Contractor hereby indemnifies and holds the Organization harmless from and against any and all responsibilities, claims, demands, suits, judgements, damages and losses, including the costs, fees and expenses in connection therewith or incident thereto for:(i) any injury to his employees and third parties(ii) any loss of, damage to, or destruction of any property of third parties; arising out of, or in any way connected with the performance of the work and services of the Contractor under this Contract.
(b) The Organization may, where in its opinion, the successful implementation of the contract or the reputation of the Organization, might be prejudiced, withhold or deduct from the payments due to the Contractor under Section I of this Contract such amounts as may be required to honor third party claims brought against the Contractor if these claims are connected with the supplies or services to be provided under this Contract and if, after consultation with the Contractor, the Organization is satisfied that such claims have been or may become the subject of a judgement, injunction or similar court order.
(c) The Contractor shall make provision for adequate insurance to cover such risks as damage to property and injuries to persons, as well as third party liability claims.
(d) For the purposes of this Article, the term "third party" shall be deemed to include inter alia officials, employees and other representatives of the United Nations, the Organization, and other Specialized Agencies participating in the implementation of this contract as well as any person or entity employed by the Contractor or otherwise performing services for, or supplying goods to, the Contractor.
Article 7 - Changes and Amendments
(a) The Organization may, at any time, by written notification:(i) make changes in the specifications and/or delivery schedules, provided always that such changes do not increase the work of the Contractor, involve additional expense, or reduce the time within which the work must be performed;(ii) increase or decrease the number of items or the amount of services and adjust the consideration accordingly, provided always that such adjustment can be established on the basis of the existing provisions of this Contract.
Any claim by the Contractor relating to adjustments under this paragraph shall be asserted by the Contractor within 60 days of receipt by him of the notification of change, it being understood that the exact determination of the adjustment may, by agreement between the parties, be postponed until the actual cost difference can be ascertained, provided, however, that no claims for adjustment shall be receivable after the date of final payment under this Contract.
(b) Any modifications to this Contract other than the changes provided for under para. (a) above shall be effected by amendment to the Contract to be mutually agreed between the parties hereto.
Article 8 - Termination
(a) The Organization shall have the right to terminate this Contract if it considers that the continued implementation of the Contract is impossible or impractical:(i) for unforeseen causes beyond the control of the Organization;
(ii) in the event of a default or delay on the part of the Contractor.(b) If this Contract should be terminated, the following shall apply:
(i) the Organization shall complete all payments which may be due up to the effective date of termination;(ii) the Contractor shall deliver all work in process and in any event shall take all reasonable measures to avoid any loss or deterioration of goods or equipment or any other damage;
(iii) the Organization shall pay to the Contractor any sum which is determined by the Organization as equitable for any work in process.
(c) Adjustments to consideration and any claims arising from or connected with the termination of the Contract shall be dealt with in accordance with the pertinent provisions of this Contract, and in particular Article 2 of this Section.
(d) Notices of Termination shall specify the reasons for termination and take effect at the earliest 10 (ten) days after receipt thereof by the addressee, it being understood that the provisions of the Contract applicable to the winding up of the Contract, the liquidation of claims and the settlement of disputes shall remain in force for such additional period as may be necessary.
Article 9 - Notices
(a) Any notice affecting the rights or obligations of either party to this contract shall be given in writing and delivered in person or by telegram or by registered mail to the addresses given below:(i) To the Organization:
Director, Administrative Services Division,
Food and Agriculture Organization of the United Nations
Via delle Terme di Caracalla
00153 - Rome, Italy
(ii) To the Contractor:
At the Contractor's address shown in the Preamble to this Contract.
(b) Notice shall be considered as effected as on the date of delivery to the addressee.
|
Signed on behalf of |
|
|
THE FOOD AND AGRICULTURE ORGANIZATION |
|
|
OF THE UNITED NATIONS |
|
|
|
Name and Title: |
|
|
Date: |
|
Signed on behalf of |
|
|
|
Name and Title: |
|
|
Date: |
Contract No.
Article 1 - Work and Services to be executed by the Contractor
The Contractor shall execute the work and services set out in the "Statement of Work, Services and Specifications" attached hereto as Annex..., it being understood that such work and services shall include those which, while not specifically provided for in the said Annex... are implied by generally accepted usages and standards of the trade and industry.
Article 2 - Equipment, Materials, Supplies, Services and Personnel to be provided by the Contractor
For the purpose of executing the work and services as set out in Article 1 above, the Contractor shall be responsible for providing, at his cost, all personnel, equipment, materials, supplies and all other services as required.
Article 3 - Schedule of Performance
(a) The Contractor shall commence performance of the present contract immediately upon its signature by both parties and receipt of the relevant authorizations, permits, etc. to build as may be required in accordance with the laws, decrees and/or regulations of the authorities concerned.(b) The Contractor shall complete the work and services to be executed under this contract in accordance with the "Schedule of Execution" attached hereto as Annex ...
Article 4 - Authorizations and Permits
The Contractor is responsible for obtaining all such authorizations and permits as may be required for the execution of this contract, it being understood that the Organization will use its good offices to ensure that the Government will provide the said authorizations and permits and will put the construction sites at the disposal of the Contractor, free of all encumbrances, in good time.
Article 5 - Levies, Duties, Taxes, etc.
The present contract is not subject to payment of any levies, taxes, registration duties or any other duties or charges whatsoever.
Article 6 - Statement of Accounts and/or Invoices of Contractor
The Contractor shall address all statements of accounts and/or invoices for sums due for payment in accordance with the terms of the present contract to the Office of the Resident Representative of the United Nations Development Programme, hereinafter referred to as the "UNDP", after their certification by the Organization's Resident Engineer.
Article 7 - Overpayments
The Contractor shall pay or reimburse to the Organization in the currency of original payment, or in a currency to be mutually agreed upon:(i) Overpayments made by the Organization;(ii) Costs incurred by the Organization for the procurement of alternative work, services or supplies due to the Contractor's default.
Article 8 - Remuneration and Method of Payment
(a) In full consideration of the work and services to be executed by the Contractor and subject to the terms and conditions set out below, the Organization shall pay to the Contractor upon receipt at the Office of the Resident Representative of the UNDP of invoices in triplicate, duly certified by the Organization's Resident Engineer a total amount not to exceed ............................ calculated in accordance with the "Bill of Quantities and Contract Costs", as shown in Annex ...(b) The total amount specified in paragraph (a) above shall be paid in accordance with the following schedule:
(i) Upon receipt at the Office of the Resident Representative of the UNDP of six copies of the present contract signed in due form by the Contractor, and the insurance policies effected in accordance with Article 19 below, the Contractor shall be entitled to a payment on account of 25% of the total amount of the contract. This payment is further subject to the Contractor arranging, at his own cost, for a Bank Guarantee issued by a Bank acceptable to the Resident Representative of the UNDP, which guarantee shall warrant the unconditional refund to the Organization by the Bank, upon receipt of a notification from the Organization, of the amount of the first payment made to the Contractor in accordance with this paragraph. This guarantee shall follow the outline of the "Draft Bank Guarantee" attached hereto as Annex... and shall remain valid until the Organization's Engineer has issued certificates of completion for all the construction works covered by the present contract.(ii) Upon receipt at the Office of the Resident Representative of the UNDP of monthly invoices in triplicate, duly certified by the Organization's Resident Engineer or other designated representative at the site, and stating the quantity of work and services completed, the Contractor is entitled to the payment of the amount certified after deduction on a pro rata basis of the 25% referred to in sub-paragraph (i) above, it being understood that the total amount thus paid shall not exceed 85% of the total amount of the contract.
(iii) Upon receipt at the Office of the Resident Representative of the UNDP of a certificate of satisfactory completion of all work and services referred to in the present contract, duly certified by the Organization's Resident Engineer or other designated representative at the site and an invoice in triplicate, the Contractor is entitled to a final payment of 15% of the total amount of the contract, reduced if necessary, by the amount of penalties enforceable in accordance with the provisions of Article 10, paragraph (b) below. Such final payment shall be further subject to receipt of a bank guarantee, arranged at the expense of the Contractor, for an amount not to exceed 5% of the total amount of the contract, issued by a Bank acceptable to the Resident Representative of the UNDP, and which shall follow the outline of the "Draft Bank Guarantee" attached hereto as Annex ... and shall remain valid until the completion of the maintenance period in accordance with the provisions of Article 12 below.
Article 9 - Revision of Prices
It is understood between the Organization and the Contractor that the prices as specified in Annex... of the present contract are firm and shall not be revised under any circumstances.
Article 10 - Bonus for early Completion and Penalties
(a) No bonus shall be due to the Contractor for early completion of the whole or part of the contract.(b) The Contractor and the Organization agree that the Organization may withold from any payments due to the Contractor an amount equal to 1/1000 of the total contract amount indicated in Article 8, paragraph (a), above for each week of delay in the satisfactory completion of part or all of the construction works beyond the dates specified in Annex ... , it being understood that the witholding by the Organization of the said amount does not in any way constitute a waiver by the Organization of its rights under Section II, Article 2 of the present contract.
Article 11 - Certificates of Completion of Works
(a) When the whole or part of the works have been completed in accordance with the terms of the present contract, the Organization's Resident Engineer shall issue Certificates of Completion stating the dates on which the works or parts thereof, were completed in accordance with the terms of the present contract. Such Certificates of Completion may be issued, if necessary, subject to any tests as may be prescribed by the Resident Engineer being satisfactorily concluded.(b) The date or dates specified in the Certificates of Completion issued in accordance with the provisions of the preceding paragraph shall be the operative date(s) for the computation of delays and penalties where necessary.
Article 12 - Period of Maintenance
For the purposes of the present contract "Period of Maintenance" shall mean a period of one year calculated from the date of completion of part or all of the works certified by the Organization's Resident Engineer in accordance with the provisions of Article 11 paragraph (a) above.
Article 13 - Completion of Period of Maintenance
Upon completion of the period of maintenance, the Organization's Resident Engineer shall issue a Maintenance Certificate stating that the works, except for fair wear and tear, have been completed and maintained to his satisfaction. If the Organization's Resident Engineer is of the opinion that he is unable to issue the Maintenance Certificate, the Contractor shall complete, as soon as possible at his own cost all such works of repair as may be required of the Contractor in writing by the Organization's Resident Engineer. If the repairs are carried out by the Contractor during the period of maintenance, commencement of a new period of maintenance of one year shall be effective as from the date of completion of such repairs as certified by the Organization's Resident Engineer.
Article 14 - Supervision of Works
(a) Supervision of the execution of the works under the present contract shall be the responsibility of the Organization's Resident Engineer or his duly authorized Representative. The Resident Engineer or his Representative shall generally carry out such duties in issuing decisions, certificates and orders as are required by the Contractor for the satisfactory execution of the contract. It is understood, however, that the Contractor shall promptly request the Resident Engineer to provide such instructions or guidance as may be necessary or lacking, and it is further understood that failure to seek such instructions or guidance shall not constitute a valid reason for delays in the execution of the works or for an execution which is not in accordance with the relevant specifications of the contract and/or the standards of the industry.(b) In particular, the Resident Engineer is empowered to:
(i) Carry out tests of samples of materials and supplies and verify workmanship, as he may consider necessary at the cost of the Contractor in order to ensure their compliance with the relevant specifications and standards of Annex ...(ii) Approve in writing reasonable extensions of the times for completion of the works as set out in Annex ...
(iii) Explain, adjust and modify in case of ambiguities or discrepancies the specifications of Annex...and the relevant drawings of the civil works, provided always that this shall not result in any additional costs to the Organization beyond the total contract amount;
(iv) Approve and certify invoices submitted by the Contractor for works completed;
(v) Issue in writing certificates of completion and maintenance of the works or parts thereof.
(c) Any modification of the specifications or approved final designs or drawings or plans related thereto, or any modifications of the terms of this contract which may result in additional costs, shall not be binding on the Organization without the prior written approval of the Director Administrative Services Division of the Organization.
Article 15 - Construction Site Logbook
(a) On each site, the Contractor shall maintain a logbook for the entry or recording upon each visit to the site and, at least, on a weekly basis, of the following:(i) Supplies of constructional plant, equipment, building materials and supplies;(ii) Quantities of work executed and quantities of materials employed therefor;
(iii) Observations and recommendations of the Organization's Resident Engineer;
(iv) Important facts or events which are likely to influence the progress of works.
(b) The Organization's Resident Engineer shall provide the Contractor with the necessary guidance for maintaining the logbook which should have two detachable copies for each original page.
(c) The site logbook shall be made available to the Organization's Resident Engineer upon his request and should, therefore, be kept permanently on the site. Upon completion of the works the logbook shall be handed over to the Organization's Resident Engineer.
Article 16 - Organization of the Construction Site
(a) Save for the provision of the construction site(s), all measures necessary for the organization of such site(s) shall be the responsibility of the Contractor. In particular, the Contractor shall be responsible for the following at his own cost:(i) The establishment of footpaths and builders' roads. Such footpaths and roads may be freely used by the Organization's Engineer and his authorised agents or assistants and such other enterprises or firms as may be called upon to assist in construction works on the same site;(ii) The layout of the buildings which entails the use of alignments and levelling;
(iii) The availability of water for construction works, drinking water, and electricity for the construction works;
(iv) The provision of fencing, lighting, signposts, cleaning, night-watchman services and maintenance of the construction site;
(v) The renting of additional space for the storage of building equipment, materials and related implements for the works if the construction site is inadequate for such purposes.
(b) The Contractor shall take all such measures as are necessary to prevent the occurrence of accidents caused or occasioned by the execution of the works. The Contractor shall be responsible for any accident or damage caused to persons, property, public highways and constructional work arising from the transport of constructional plant or equipment, materials and supplies.
(c)
(i) For the duration of the construction works, the Contractor shall ensure that no unnecessary interference with traffic is caused by operations necessary for the execution of the works;(ii) The construction site shall be adequately provided with signposts and warning signals, both by day and by night. The plan of signs and signals envisaged for the site shall require the prior approval of the Organization's Resident Engineer before their installation;
(iii) Such costs as may be incurred by the Contractor in implementing the provisions of this Article shall be the responsibility of the Contractor.
(d)
(i) The Contractor shall permanently keep on each site, all such instruments, tools and equipment as may be required by the Organization's Resident Engineer for the testing of materials and samples;(ii) Failure by the Contractor to observe the requirements of the provisions of this paragraph shall entitle the Organization's Engineer to purchase such instruments or equipment as may be necessary and the cost thereof shall be deducted from sums due to the Contractor.
Article 17 - Particulars to be supplied
Within fifteen days of signature of the contract by both parties hereto, the Contractor shall supply the Organization's Resident Engineer with the following:(a) a detailed list of the Contractor's employees participating in the execution of the works;(b) a list of the materials, equipment and supplies assigned for the works under the present contract.
Article 18 - Presence of the Contractor on the Construction Site(s)
(a) Within fifteen days of signature of the contract by both parties, the Contractor shall submit to the Organization's Resident Engineer, for approval, the designation of his representative who shall be empowered to supervise the execution of the works and represent the Contractor in relations with the Organization's Resident Engineer. The designation of a representative by the Contractor shall not relieve the Contractor of his obligations under the present Contract;(b) The Contractor or his representative shall attend all meetings convened by the Organization's Resident Engineer on the construction site. The Contractor's representative shall be empowered to provide the necessary instructions forthwith to the employees of the Contractor.
Article 19 - Insurances at the cost of the Contractor
(a) Without prejudice to the relevant provisions of Section II of the present contract, the Contractor shall be insured in such a manner against all material or physical damage, loss or injury from whatever cause arising from the execution of the contract as would be required to hold the Organization and the Government harmless from any responsibility therefor.(b) The Contractor shall be responsible in particular for any loss, damage, or injury resulting from any act or omission of his employees. The Contractor shall also be responsible for any direct or indirect loss or damage caused by his servants or agents to any property of third parties, including the Government, Government officials and the Organization and its officials. The Contractor shall be required to submit the policies of such insurances to the Resident Representative of the UNDP;
(c) The Contractor shall be insured against theft and the fire hazards and shall submit the relevant policies to the Resident Representative of the UNDP;
(d) The Contractor shall immediately notify the Resident Representative of the UNDP and the Organization's Resident Engineer of any accident arising from the execution of the contract and shall provide full particulars thereof.
Article 20 - Clearance of Site on Completion
Within a month of the completion of the works, the Contractor shall clear away and remove from the site all surplus materials, rubbish and temporary works of every kind and leave the whole of the site and works clean and in a workmanlike condition to the satisfaction of the Organization's Resident Engineer. Failure by the Contractor to clean the site will cause the Government to do so at the expense of the Contractor.
Article 21 - Patent Rights and Royalties
The Contractor shall hold harmless the Organization and the Government from and against all claims and proceedings for and on account of infringement of any patent, trademark or other protected rights used by him for the execution of the works.
Article 22 - Inspection of Site
(a) The Contractor's bid shall be deemed to have been formulated after inspection of the site and obtaining all necessary information as to risks, contingencies and other circumstances which may influence or affect the execution of the contract.(b) In particular, and without prejudice to the generality of the foregoing, the Contractor shall be deemed to have taken full account of the following;
(i) existing buildings, construction works, cables, pipes, etc.;(ii) surface and sub-surface conditions and the existence of rocks, etc.;
(iii) the presence and nature of surface and sub-surface water and modification of such hydrological conditions which might result from construction works;
(iv) drops or gradients and slopes;
(v) meteorological and climatic conditions;
(vi) means of access to the site;
(vii) availability of necessary water and electricity.
Article 23 - Designation of the Organization's Resident Engineer
For the purposes of the present contract, the Organization's Resident Engineer is:
Mr. .............................
(title)...........................
(address).....................
1. GENERAL
1.1 Scope of Work
The work contemplated under this contract includes general civil engineering works for the construction of the fish farm with a water surface of 4.5 ha, at Chipata, all as detailed in the bill of quantities specifications and drawings.
The particular specifications for the work are as detailed herein after. These specifications shall be read in conjunction with relevant Zambian Standard specifications. Where Zambian specifications are not available, the specifications provided by the Resident Engineer (the Engineer) or his Representative will be final and the work shall be executed accordingly. Where the specifications in the Zambian Standard specifications are in variance with specifications detailed herein, the specifications herein shall govern.
1.2 Laboratories for Resident Engineer
The Contractor shall provide, maintain and remove, if required, on completion of the works, any testing laboratories required in accordance with the contract for the use of the Resident Engineer and his staff. Testing equipment shall be located in testing laboratories as required by the Engineer.
All laboratories shall be regularly and properly cleaned and maintained by the Contractor for as long as they are used by the Engineer.
1.3 Survey Equipment
The Contractor shall supply and maintain in good working order for the duration of the Contract the survey equipment scheduled for use by the Engineer.
1.4 Attendance on the Engineer
The Contractor shall provide casual labour required by the Engineer when checking the setting out and measuring up of the work.
1.5 Existing ground levels
The Contractor shall satisfy himself that the existing ground levels as indicated on the Drawings or schedules of cross section levels are correct. To control the existing ground levels the elevations of the Temporary Bench Marks (DRG. No. 2) shall be used.
Should the Contractor wish to dispute any levels, the ground in the area under dispute shall not be disturbed before the Engineer has given his decision as to the levels to be used.
1.6 Programme of Works
The programme to be provided by the Contractor shall set out all the operations required to complete the works plotted against a time scale in weeks and shall indicate the requirements for plant, labour and materials plotted against the same time scale, including the periods necessary to mobilize labour and deliver equipment and materials to site. The total periods of completion shall not exceed those indicated in Annex ..... of this contract.
2. MATERIALS
2.1 Aggregates for Concrete
Aggregates shall be obtained from a source known to produce aggregates satisfactory for concrete and shall be chemically inert, strong, hard, durable, of limited porosity, and free from adhering coatings, clay lumps, coal and coal residues, and organic or other impurities that may cause corrosion of the reinforcement or may impair the strength or durability of the concrete. Aggregates for concrete shall be natural gravels or crushed stone complying with BS 882/1201.
Flakiness index when determined by the sieve method described in BS 812 shall not exceed 35 for any size of coarse aggregates.
For structural concrete of specified compressive strength of Newtons per square millimetre or more at 28 days, the ten percent fines value of the coarse aggregate determined in accordance with BS 812 shall not be less than 10 tonnes and for other structural concrete not less than 5 tonnes.
2.2 Bolts, Nuts and Washers
Mild steel bolts, nuts and washers for the hooks of stoplogs (DRG. No. 12) shall comply with the requirements of BS 153: Part 1 and either BS 916 or BS 2708.
2.3 Cement
Normal Portland cement and High Early Strength Portland cement shall comply with the requirements of Zambian Standard ZS 001.
Each consignment of cement shall be kept separate, identified and used in order of delivery.
It is to be stored with proper protection from the weather.
The cement bags shall be stored in such a manner as to permit easy access for proper inspection. Stacks shall not be more than 10 bags in height and also should be 70 cm away from the walls.
The cement, if stored more than 120 days, shall be tested for soundness before use on all important works. If it is found defective in any way it shall be condemned for use.
2.4 Paint and Other Protective Coatings for Steelwork
All paints etc. except where otherwise described are to be first quality priming, undercoating and finishing paints. They are to be obtained only from suppliers approved by the Engineer. Paint supplied in sealed containers of not more than five litres capacity shall be submitted for testing to the Engineer or his Representative.
2.5 Pipes for Water Supply and Drainage Works
Asbestos cement pipes shall comply with the requirements of BS 3656.
Concrete pipes for general drainage use shall comply with the requirements of BS 556 except that they may be supplied with flexible joints as supplied by manufacturer. The Spigot R.C.C. pipes shall be Class S pipes.
2.6 Sand
The sand shall consist of natural sand, crushed stone or crushed gravel or a combination of any of these. It shall be hard durable clean and free of adherent coating and organic matter and shall not contain any appreciable amount of clay, balls or pellets. It shall not contain any harmful impurities such as iron pyrites, alkalies, salts, coal, shale or similar laminated or other material in such form or such quantities as to affect adversely the hardening, the strength and durability.
The maximum quantity of clay, fine salt, fine dust or organic impurities in sand shall not exceed the following limits:
Clay, fine salt and fine dust:(i) Not more than 4 percent by weight in natural sand.
(ii) Not more than 10 percent by weight in case of crushed stone sand.
2.7 Steel Reinforcement
Mild steel and hot rolled high yield bars shall comply with the requirements of BS 785. Cold worked steel bars shall comply with the requirements of BS 1144.
In the case of deformed bars, as defined in BS 785: Part 1 and BS 1144, the results of bond tests shall be furnished to the Engineer as required by him.
2.8 Structural Steel
Structural steels shall comply with the requirements of BS 153: Part 1 and BS 4360. In addition, structural steel hot-rolled sections shall comply with the requirements of BS 4: Part 1.
2.9 Timber
Timbers' for stoplogs (DRG. No. 12) shall be of the best quality, well seasoned and free from cracks, loose knots, cross grain, sapwood, shakes and other defects and except where otherwise approved, wrought on all faces.
2.10 Water
Water used for both mixing and curing concrete as well as making mortar shall be clean and fresh and free from organic or inorganic matter in solution or suspension in such amounts that may impair the strength or durability of the concrete. Water for making concrete shall be tested in accordance with BS 3148.
3. CLEARING AND PREPARING OF SITE
3.1 Site Clearing
The Contractor shall demolish, break up and remove superficial obstructions on the site of the fish farm in the way or otherwise affected by the Works. He shall clear each part of the site at times and to extent required and approved by the Engineer.
Before starting earth work, the area demarcated for excavation of drains construction of dikes shall be cleared of bushes, vegetation and trees. Stumps and tree roots shall, unless otherwise directed by the Engineer, be grubbed up, and deposited off the site in dumps to be provided by the Contractor.
3.2 Stripping Top Soil
Unless otherwise directed, 10 cm topsoil shall be removed from all construction areas and for re-use in the surface dressing of the dikes for grassing shall be stockpiled at the area located between the dikes of the ponds P3, P6, P9 and Masupe River.
4. EARTHWORKS
4.1 General
4.1.1 Description of work
The dikes, bottoms, drains and feeder canals shall be constructed according to the dimensions and slopes as per typical cross sections and longitudinal sections enclosed or as per cross sections approved by the Engineer.
4.1.2 Definitions, classifications and general use of earthworks materials
'Formation level' shall mean the surface level of the ground obtained after completion of the earthworks.
'Suitable material' shall comprise all material which is acceptable for use in the construction of dikes and which is capable of being compacted in the manner specified in Clause 4.3 to form a stable fill having side slopes as indicated on the Drawings.
'Unsuitable Material' shall mean other than 'Suitable Material' and shall include:
(i) Material from swamps, marshes, dambos or bogs;(ii) Peat, logs, stumps and perishable material;
(iii) Material susceptible to spontaneous combustion;
(iv) Clay of liquid limit exceeding 80 and/or plasticity index exceeding 55;
(v) Materials having moisture content greater than the maximum permitted for such materials in the Contract, unless otherwise permitted by the Engineer;
(vi) Anthill materials.
'Rock' shall mean boulders exceeding 0.2 m3 and masses of hard material which necessitates the use of blasting or approved pneumatic tools for their removal.
The Engineer shall decide under which one of the above classes any material shall be classified and his decision shall be final.
No excavated suitable material other than surplus to requirements shall be removed from the site except where directed or permitted. Should the Contractor be permitted to remove suitable material from the site to suit his operational procedure then he shall make good at his own expense any consequent deficit of filling arising therefrom.
Unless the Engineer permits otherwise suitable material and topsoil, both surplus to the total requirements of the Works and all unsuitable material shall be run to spoil in separate tips provided by the Contractor.
4.1.3 Reduced level
Pegs at bed, bottom level in the ponds and tops of dikes at the correct reduced levels determinated from the existing TBM's will be fixed by the Contractor at his own expense.
The two TBM's shall be properly protected by the Contractor during the period of the construction works.
4.1.4 Dagbelling
The Contractor shall be required to dagbell lines needed for fixing the correct profile of the dike section at his own expense.
4.1.5 Profiles
Before starting earth work in any dike, profiles shall be made and maintained by the Contractor at suitable intervals. Profiles shall be made by actually excavating or filling and making the correct finished section as per cross section and shall be maintained till the final completion of the Work if so required by the Engineer. Ballies and strings shall be fixed and tied to indicate correct levels, finished slopes and dimensions. The level as shown by namoonas will include the provision of settlement allowance (5 percent for mechanical compaction and 10 percent for manual compaction).
4.2 Forming Of Dikes and Pond Bottoms
Dikes and pond bottoms filled shall be formed of material excavated from the pond site as defined as 'Suitable Material' in Clause 4.1.2. Additionally, when permitted by the Engineer, material wetter than the appropriate limit as specified under inclusion (v) of Clause 4.1.2 may be incorporated.
All earthworks materials placed in dikes or below pond bottom shall be deposited and compacted as soon as practicable after excavation in layers of thickness appropriate to the compaction plant used as permitted in Clause 4.3 or as directed by the Engineer. Dikes shall be built up evenly over their full width and during the construction of dikes the Contractor shall control and direct constructional traffic uniformly over their full width.
The dike materials shall be placed only when the weather conditions permit. If rain is apprehended, the surface shall be graded and rolled with a smooth road roller to facilitate run off. After rains the surface shall be scarified and moistened before resuming work.
Special care shall be taken in joining new dike with old one or with existing ground. If the work in a portion remains suspended for some time due to any reason and its exposed surface becomes hard, then the same shall be properly roughened before another layer of earth is placed over it. Benching shall also be done as per directions of the Engineer, wherever ordered. Cost of this work shall also be included in the rates for earthwork, as specified in Annex ...., Bill No. 2.
Any damage to the dikes or the pond sections by any cause including rain, wind, cattle movement, etc., shall be suitably repaired by the Contractor as per directions of the Engineer at his own cost and nothing extra shall be payable to him on this account.
If the work remains suspended for some time and during the intervening period there is growth of vegetation on the dikes or gets damaged due to any other cause, the top of the dikes shall be cleared, dressed and made good up to the proper section by the Contractor at his own cost and no claim shall be entertained on this account.
The berms of ponds and drains should slope towards the inner edge to prevent rain water from flowing over the outer edge and down the slope of dikes and drains. A slope of 1 in 50 shall be provided for this purpose.
After dressing the slopes, berms and tops of the dikes, the outside slopes, berms, tops and the inside slopes above the water surface shall be slightly roughened and covered with a 10 cm layer of topsoil for grassing. The layer shall then be raked even and lightly rolled with a hand roller.
4.3 Compaction Of Earthfills
The material to be compacted be thoroughly broken down over the full width and to a depth of at least 15 cm by means of scarifiers disc harrows, hand tools or other suitable equipment. Any oversize material which in the opinion of the Engineer cannot be suitably broken down to the required size shall be removed from the Works.
Any water required before the material is compacted shall be added to the material in successive applications by means of water tankers fitted with sprinkler bars, or by means of pressure distributors all capable of applying the water evenly and uniformly over the area concerned.
The material shall be compacted at the optimum moisture content for Higher Compactive Effort density with an allowable tolerance of plus one (1) percent or minus two (2) percent of moisture by weight of dry material.
Compaction shall be carried put by sheep foot rollers or other suitable equipment in a series of continuous operations over the full width of the layer concerned and the length of any section of a layer compacted shall not be less than three hundred metres, unless otherwise permitted by the Engineer. The thickness of any one layer after compaction shall not exceed 15 cm.
The quality of material in any layer shall be equal to or better than the material in the layer immediately below.
During the compaction the layer shall be maintained to required shape and cross section.
The compacted density (Field Dry Density) at any point in the fill shall not be less than ninety percent (90%) of the Higher Compactive Effort density.
4.3.1 Compaction trials
Compaction trials as described herein shall be held to determine the type of compaction plant and number of passes to be used but results obtained shall be considered as a guide only.
At the commencement of construction, compaction trials shall be carried out by the Contractor in selected fill areas using the actual items of compaction plant which he proposes to use in the Works.
The Contractor shall test one item of each different class and/or weight of compaction plant to be used on the fill selected.
The method of conducting the compaction trials shall be as described hereunder:
(i) A layer of material to be used in the fill construction shall be laid in the fill area to a depth which gives a compacted thickness of 15 cm and its moisture content adjusted to within + 1 percent and - 2 percent of the Higher Compactive Effort optimum moisture content.(ii) The layer shall then be given an agreed number of passes of the compaction plant after which ten number in situ density tests shall be carried out at locations chosen by the Engineer. This process shall be repeated with additional passes until the required degree of compaction is reached.
(iii) The procedure shall be carried out for all different materials used in fills as and when they are encountered during construction.
The Contractor shall be responsible for carrying out all necessary tests in connection with the trials, to the Engineer's approval, and shall present the test results to the Engineer.
4.4 Excavation of Foundation Pits, Drains arid Trenches
The bottom of all excavations and drains shall be carefully levelled. Any pockets of unsuitable material or loose rock shall be removed and the resulting cavities filled with Class A granular material as directed.
In cases where it is required the sides of pits shall be adequately supported at all times.
All excavated materials from such excavations not required for building dikes or refilling shall be disposed of as directed by the Engineer.
Trenches for pipes shall be excavated to a sufficient depth and width to enable the pipe and the specified or other approved joint and surround to be accomodated.
4.5 Refilling of Foundation Pits and Trenches
Unless otherwise directed by the Engineer, all filling for this purpose shall consist of suitable material compacted in accordance with Clause 4.3.
Backfilling shall wherever practicable be undertaken immediately after the specified operations preceding it have been completed.
The surface shall be restored by replacing the materials in their proper order and form, and by compacting them to such a level as will ensure that after settlement is complete the surface level or refilled trenches shall be within 30 mm of that of the adjacent undisturbed ground.
4.6 Tolerances
The tolerance allowable for dikes and excavations shall be as follows:
|
Side slopes |
± 10% |
|
level |
30 mm |
4.7 Measurement of work
After the clearance of land, removal of topsoil and benching operations, cross section shall be taken at every 10 m interval and at obligatory points longitudinally and transversally with reference to the TBM's established at the site of work. The cross section shall be entered direct in measurement book and signed by both the Contractor and the Engineer in token of acceptance. The Contractor shall only start the work after the completion of the above formalities.
Final measurements shall be recorded by observing the finished levels of excavation and dike on each line of cross section. These measurements shall be recorded in the measurement book and also plotted on the graph sheet showing the initial ground levels.
Where no earth has been taken from outside borrow pits, the quantity of earthwork shall be worked out on the basis of internal section excavated.
Where earthwork has been done by earth obtained from internal excavation as well as outside borrow pits, the quantities of digging and filling shall be worked out from the cross sections and the greater of the two shall be paid. In cases where the payment is based on the quantity of the fill, the quantity to be paid shall be arrived at after deducting 10 percent settlement allowance from the total quantity of the fill in case of manual compaction and 5 percent in case of mechanical compaction. No payment shall be made to the Contractor for earth borrowed by him in excess of that required to complete the banks, taking into account the earth available from internal excavation. Payment shall be based on the rates of Annex ....., Bill No. 2 and Bill No. 3, as appropriate.
4.8 Payment
The earthwork for final payment shall be measured only when the work is completed to the final levels and cross section as shown in the drawings, in the entire reach of the agreement. For running payments, earth uniformly excavated and evenly laid shall be measured. Final measurements and running measurements for payment shall always be taken by cross sections.
Full rates shall be payable only when the work has been completed as per specifications to the full satisfaction of the Engineer. Payment shall be based on the rates of Annex ..., Bill No. 2 and Bill No. 3, as appropriate.
5. CONCRETE WORK
5.1 Proportioning and Mixing
Unless otherwise specified by the Engineer, the concrete mix shall consist of the material in the proportions given in drawings. In proportioning concrete, the quantity of both cement and aggregate should be determined by weight. However, the quantities of aggregate may be determined by volume, if allowed by the Engineer.
Concrete shall be mixed in mechanical concrete mixers until a dense concrete of uniform colour and consistency is obtained.
Only sufficient water shall be added to the cement and aggregate during mixing to produce a concrete having sufficient workability to enable it to be well consolidated, to be worked into the corners of the formwork and around the reinforcement, to give the specified surface finish, and to have the specified strength. When a suitable amount of water has been determined, the resulting consistency shall be maintained throughout the corresponding parts of the work, and approved tests such as the slump test shall be conducted from time to time to ensure that this consistency is maintained.
The type of concrete as generally intended for various situations is indicated below:
|
Item |
Type of concrete |
Compressive Strength at 28 days |
Use | |
|
|
|
|
|
|
|
1 |
1:3:6 |
(M100) |
100 kg/cm2 |
Sub concrete in foundations |
|
2 |
1:2:4 |
(M150) |
150 kg/cm2 |
Structure in R.C.C. or precast slabs and bed protections in C.C. |
The mix proportions given above are normally adopted mixes, where it is not considered practicable to use controlled concrete.
Mixing and distributing equipments shall be clean before commencing and distribution of the concrete and such equipment shall be kept free from set concrete.
The mixing shall be done by mechanical mixer but in case mixing is to be done by hand due to any practical reason, the prior approval is to be obtained from the Engineer. In case of hand mixing, material measured and mixed shall be on clean and water tight platform of steel sheet or wood of sufficient size to provide ample mixing area. The measuring shall be done as directed by the Engineer. Before adding water, aggregate (fine and coarse) shall be turned over at least three times dry. Water shall only be added in measured quantities by means of watering cans. Only sufficient water shall be added to ensure a thick plastic material of even colour and a thin sloppy mix must be avoided. The consistency of concrete shall not tend to separate mortar from coarse aggregate.
No more concrete than can be used within half hours (in case of C.C.) or in the same day shall be mixed; should any be left over at the end of day's work, it shall be rejected and removed from the site immediately.
5.2 Placing
Before proceeding to place the concrete, the formwork shall be realigned if necessary and water and the rubbish therein shall be removed by approved means. Immediately prior to placing the concrete, the formwork shall be well wetted and inspection openings shall be closed.
The interval between mixing and placing of concrete shall not exceed 20 minutes so that initial setting process is not interferred with.
Except where otherwise approved, concrete shall be placed in the forms by shovels or other approved implements and shall not be dropped from a height or handled in a manner which will cause separation. Accumulation of set concrete on the reinforcement shall be avoided. Concrete shall be placed directly in its permanent position and shall not be worked along the forms to that position.
Each layer of concrete while being placed shall be consolidated by approved methods of ramming, tamping, or mechanical vibration to form a dense material with all surfaces free from honeycombing and tolerably free from water and air holes or other blemishes. Any water accumulating on the surface of newly-placed concrete shall be removed by approved means, and no further concrete shall be placed thereon until such water be removed.
Unless otherwise approved, concrete shall be placed in a single operation to the full thickness of slabs and walls, and shall be placed in horizontal layers not exceeding 1 m deep in walls. Concrete shall be placed continuously until completion of the part of the work between construction joints as specified herein after or of a part of approved extent, At the completion of a specified or approved part a construction joint of the form and in the position hereinafter specified shall be made. If stopping of concrete placing he unavoidable elsewhere, a construction joint shall be made where the work is stopped.
Construction joints shall be provided as follows:
A joint shall be formed horizontally at the top of the foundation slab of the outlet structure.A joint shall be formed at the distance of each four metres for the foundation slabs of the feeder canals.
Before placing new concrete against concrete that has already hardened, the face of the old concrete shall be cleaned and roughened and scum and loose aggregate removed therefrom, and immediately before placing the new concrete the face shall be thoroughly wetted and a coating of neat cement grout applied thereto. The new concrete shall be well rammed against the prepared face before the grout sets.
Concrete placed below the ground shall be protected from falling earth during and after placing.
The concrete in one precast piece shall be placed in one operation. No piece shall be removed from the mould or erected until sufficiently matured to ensure that no damage shall be done to the piece. Pieces shall be bedded or otherwise fixed in their permanent positions as shown in the drawings.
5.3 Compaction
Concrete shall be compacted into a dense mass immediately after placing by means of mechanical vibrators. The vibration shall continue during the entire period of placing concrete; compaction shall be completed before initial setting starts, i.e. within 30 minutes of addition of water to the dry mixture.
Concrete of low quantity may, however, be permitted by the Engineer to be consolidated by hand.
5.4 Finishing
The surface of concrete shall be finished all as directed by the Engineer. In case of precast slabs the top surface shall be finished even and smooth with wooden trowel before the concrete begins to set.
5.5 Curing
Newly placed concrete shall be protected by approved means from rain, sun and drying winds. Exposed faces of concrete shall be kept moist by approved means for seven days after placing or for three days if rapid-hardening Portland cement is used.
No masonry shall be started over the foundation until at least seven days after laying.
5.6 Testing
The compressive strength of the concrete at twenty-eight days shall be not less than the strength as is described on the drawings.
The compressive strength shall be ascertained by crushing 150 mm cubes of concrete, the cubes being made on the works and cured and tested as instructed. The Contractor shall pay all costs incurred in supplying the material for, and in making, maturing, delivering and testing the cubes and shall be reinbursed for the cost of cubes that attain the required strength, as approved by the Engineer.
5.7 Formwork
Formwork for concrete shall be rigidly constructed of approved material and shall be true to the shape and dimensions described on the drawings. Timber shall be well seasoned, free from loose knots and except where otherwise approved, wrought on all faces. Faces in contact with concrete shall be free from adhering, grout, projecting nails, splits, or other defects. Joints shall be sufficiently tight to prevent the leakage of cement grout and to avoid the formation of fine or other blemishes. Faulty joints shall be caulked.
Openings for inspection of the inside of the formwork and for the escape of water used for washing out shall be formed so that they can be conveniently closed before placing the concrete.
Connections shall be constructed to permit easy removal of the formwork and shall be either nailed, screwed, bolted, clamped, wired, or otherwise secured so as to be strong enough to retain the correct shape during consolidation of the concrete.
Formwork shall be true to line and braced and strutted to prevent deformation under the weight and pressure of the unset concrete, constructional loads, wind and other forces. The deflection shall not exceed 3 mm.
An approved mould oil or other material shall be applied to faces of formwork in contact with unset concrete to prevent adherence of the concrete. Mud oil, retarding liquid and similar coatings shall be kept free from contact with the reinforcement.
Formwork shall be removed by gradual easing without jarring. Before removal of the formwork the concrete shall be examined and removal shall proceed only in the presence of a competent supervisor and if the concrete has attained sufficient strength to support its own weight and any load likely to be imposed upon it. The period that shall elapse after the concrete has been laid before easing and removal of formwork is undertaken, shall be as follows:
|
Part of structure |
Period after which formwork |
|
Sides of foundations and walls |
3 days |
|
Under-sides of slabs |
10 days |
In case of cantilever slabs and beams, the formwork shall remain till structures for counteracting or anchoring down have been erected and have attained sufficient strength.
5.8 Reinforcing
Reinforcement bars shall be bent by machine or other approved means producing a gradual and even motion. Bars shall be bent cold.
Bends shall comply with the dimensions given in the DRG No. 19.
Reinforcement shall be accurately fixed and by approved means maintained in the position described on the drawings. Bars intended to be in contact at passing points shall be securely wired together at all such points with No. 16 gauge annealed soft iron tyring wire. Links and the like shall tightly embrace the bars with which they are intended to be in contact and shall be securely wired, or if approved, welded thereto.
Immediately before concreting, the reinforcement shall be examined for accuracy of placing and cleanliness and corrected if necessary.
The cover of concrete to the reinforcement shall be as described on the drawings and shall be provided and maintained within a tolerance 3 mm under and over by means of distance pieces of cement mortar or other approved material.
5.9 Facework
Honeycombed surfaces shall be made good immediately on removal of the formwork, and superficial water and air holes shall be filled out. Unless instructed to the contrary, the face of exposed concrete placed against formwork shall be rubbed down immediately on removal of the formwork to remove fins or other irregularities.
The face of concrete for which formwork is not provided, other than slabs, shall be smoothed with a wooden float to give a finish equal to that of the rubbed-down face where formwork is provided.
The top face of a slab which it is not intended to cover with other materials shall be levelled and floated while unset to a smooth finish at the levels or falls shown on the drawings. The floating shall be done so as not to bring an excess of mortar to the surface of the concrete.
6. PIPEWORK
Before a pipe is lowered into the trench, it shall be thoroughly examined to ensure that it is undamaged. Any damaged parts of the pipe shall, before a pipe is used, be made good as directed by the Engineer.
Joints shall be made strictly in accordance with the manufacturer's instructions.
Before making any joints, all jointing surfaces shall be thoroughly cleaned and dried and maintained in such condition until the joints have been completely assembled.
The space between the end of the spigot and the shoulder of the socket of flexibly jointed pipes when jointed shall be as recommended by the manufacturer or ordered by the Engineer.
After the pipes have been laid and tested, the bedding shall be completed by carefully placing selected excavated material from which stones over 25 mm in size and lumps of clay over 75 mm in size have been removed, into the spaces between the pipe and the sides of the trench to the level of the crown of the pipe. The material shall be thoroughly packed and rammed by careful hand tamping in layers 150 mm thick before compaction. Placing and tamping shall proceed equally on both sides of the pipe. A further layer of the same material at least 300 mm thick after compaction and the full width of the trench shall be placed over the crown of the pipe in two equal layers, each layer being lightly tamped by hand.
7. BLOCKWORK
The cement is to be the best Portland cement as before described in Clause 2.3. The sand is to comply with the requirements of Clause 2.6.
The cement blocks are to be hard, square and uncracked and approved by the Engineer. All blocks when delivered to site are to be properly stacked and not tipped and any defective or broken blocks are to be thrown out and carted away.
The cement mortar is to be well worked and prepared in small quantities sufficient only for immediate use and used fresh. No mortar which has commenced to set may be mixed with any other mortar.
The blocks in 1:3 cement sand mortar shall be properly placed in position such that the horizontal and vertical joints are completely filled with mortar. The thickness of joints shall not be more than 10 mm.
8. STRUCTURAL STEELWORK
The welding of the screens (DRG. No. 11) is to be carried out in accordance with the recommendations set out in the British Code of Practice CP 113/102 Arc Welded Construction.
9. PAINTING
Remove all scale from unprimed steelwork by flame cleaning, wire brushing chipping or scraping, degrease with white spirit and immediately prime.
All coats of paint are to be thoroughly dry before the application of any subsequent coat and no paint is to be applied to external work during inclement weather nor on any moist surface. The appropriate time as indicated by the paint manufacturer is to elapse between the application of each coat.
Steelwork is to be primed on the same day that it is cleaned and all coats of priming are to be maintained in good condition until the undercoating is applied by touching up all damage during the progress of work.
Each coat of paint is to be a tint distinguishable from the previous coat. In no case is the last coat to be applied until the Engineer's permission has been obtained.
|
Item |
Description of items |
Unit |
Quantity |
Rate |
Amount | |
|
1. |
Earthwork in excavation in foundation as per specification |
m3 |
225 |
|
| |
|
2. |
C.C. M-100 (1:3:6) in foundation |
m3 |
4.10 |
|
| |
|
3. |
Supplying and laying SPIGOT |
pc |
40 |
|
| |
|
4. |
R.C.C. M-150 (1:2:4) in monk structures and harvesting box |
m3 |
21.5 |
|
| |
|
5. |
Formwork |
m2 |
240 |
|
| |
|
6. |
Steel reinforcement bars in outlets, harvesting box and precast foot planks |
kg |
890 |
|
| |
|
7. |
4 in thick cement block lining in 1:3 CT mortar in harvesting box |
m2 |
11.6 |
|
| |
|
8. |
C.C. M-150 (1:2:4) in bed protection |
m2 |
10 |
|
| |
|
9. |
Precast R.C. M-150 (1:2:4) foot planks |
|
|
|
| |
|
|
|
a) 2.50×0.25×0.10 |
pc |
2 |
|
|
|
|
|
b) 1.00×0.25×0.10 |
pc |
18 |
|
|
|
10. |
Prefab concrete M-150 |
pc |
50 |
|
| |
|
11. |
Stop logs measuring 59×25 cm |
pc |
170 |
|
| |
|
12. |
Screens measuring 590×500 mm |
pc |
10 |
|
| |
|
13. |
Refilling foundation pits as per specification |
m3 |
155 |
|
| |
|
|
|
TOTAL |
|
| ||
Summary
|
Bill No. |
Description |
Amount Zam. K. |
|
1. |
Clearing and preparing of site |
22 540.00 |
|
2. |
Construction of dikes and forming pond bottoms |
72 150.00 |
|
3. |
Excavation of drains |
10 937.50 |
|
4. |
Construction of culvert under access road |
4 889.25 |
|
5. |
Construction of feeder canals |
21 392.66 |
|
6. |
Construction of outlets |
30 659.98 |
|
7. |
Construction of inlets |
8 471.50 |
|
8. |
Dressing of dikes |
14 500.00 |
|
|
A. Total cost of Work |
185 504.89 |
|
|
B. Provisional Sum at 15% |
27 931.15 |
|
|
C. GRAND TOTAL including Provisional Sum |
213 472.04 |
Contract No. .........
|
Instructions: |
Please complete the blank spaces below. Prices should be quoted in the currency of the bidder. |
|
PART I: |
The total price of this bid, as broken down in detail in the attached Annex III is: |
|
PART II: |
I certify that the load bearing capacity of the soil at the site is not less than______ kg per cm2 and that my bid has been calculated on such basis. |
|
PART III: |
I certify that nothing in the provisions and specifications of the contract and the drawings and plans, etc. as enclosed with the letter of invitation is contrary to the provisions of applicable local laws, rules and building regulations, except as explicitly stated elsewhere in this bid. |
|
PART IV: |
I confirm having obtained all necessary data and information as to risks, contingencies and other circumstances which may influence or affect my bid or the performance of the contract. |
|
PART V: |
My bid is valid for a period of 6 (six) months as from the deadline for the receipt of bids, as indicated in paragraph 9 of the letter of invitation. |
|
PART VI: |
I am in agreement with the terms and conditions of the contract as enclosed with the letter of invitation except as explicitly stated elsewhere in this bid. |
|
Name of Bidder: _______________________ |
Telephone: ______________________ |
|
Mailing Address: _______________________ |
Cable: __________________________ |
|
_____________________________________ |
Telex: __________________________ |
|
Person(s) to contact: ___________________________________________________________ | |
|
Signature: ____________________________ |
Date: ___________________________ |
|
Name and Title: _______________________ | |