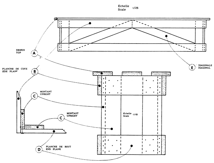
Le premier besoin pour entreprendre la production des pirogues est un toit sous lequel travailler plus ou moins à l'abri de la pluie, mais principalement à l'abri du soleil.
Les hangars répondent aux besoins sus-mentionnés.
LISTE DES MATERIAUX DES HANGARS ARTISANAUX
| Nombre | Dimensions (cm) | Longeur (cm) | Total (cm) | Cubage (dm3) | |
| Montants avants | 3 | 4 × 8 | 274 | 822 | 26 |
| Montants centre | 3 | 4 × 8 | 262 | 786 | 25 |
| Montants arrières | 3 | 4 × 8 | 250 | 750 | 24 |
| Fermes | 3 | 4 × 8 | 580 | 1 740 | 56 |
| Traverses | 4 | 4 × 8 | 720 | 2 880 | 92 |
| Equerres | 4 | 3 × 15 | 135 | 540 | 24 |
| Arc-boutant = pieds | 2 | 4 × 8 | 210 | 420 | 14 |
| Clous 7 cm entre 104 et 125 | 260 | ||||
| Clous à tôle 5 cm entre 80 et 100 | + perte 5% | 13 | |||
| 273 | |||||
| Tôles 80 × 200 cm = 33 | Cubage total | 0,273 m 3 | |||
| Coût de revient | |||||
| CFA francs | |||||
| Bois 0,273 m3 × 18 000 CFA.f | 4 932 | ||||
| Tôles = 33 tôles × 450 CFA.f | 14 850 | ||||
| Clous 5 cm à tôle = 1 kg × 200 CFA.f | 200 | ||||
| Clous 1 kg | 115 | ||||
| 20 000 | |||||
PRIX DE REVIENT D'UN CHANTIER
(matériaux)
| CFA francs | |
| Hangar | 20 000 |
| Chassis | 5 000 |
| Etabli | 7 000 |
| Etabli de dressage | 2 500 |
| Total | 34 500 |
Les coûte des matériaux pour l'installation d'un chantier artisanal est donc de l'ordre de 35 000 CFA.f.
L'établi est une partie importante de l'équipement requis pour la construction.
Il n'est pas plus difficile de fabriquer un établi solide et pratique comme celui dont les dessins et la liste des matériaux suivent que d'en bricoler un qui bougera et qu'on devra réparer fréquemment.
ETABLI
LISTE DES MATERIAUX
| Nombre | Epaisseur cm | Largeur cm | Longueur cm | Cubage (dm3) | ||
| Dessus | A | 3 | 4 | 20 | 400 | 96 |
| Côtés | B | 4 | 4 | 20 | 380 | 122 |
| Montants | C | 8 | 4 | 20 | 81 | 52 |
| Bouts | D | 4 | 4 | 20 | 62 | 20 |
| Diagonales | E | 4 | 4 | 20 | 182 | 58 |
| 348 | ||||||
| Cubage total | 0,348 m3 | |||||
Coûte des matériaux
0,35 m3 à 18 000 CFA.f/m3 = 6 300 CFA.f + clous de 10 cm (2½ kg)
Total = 7 000 CFA.f environ
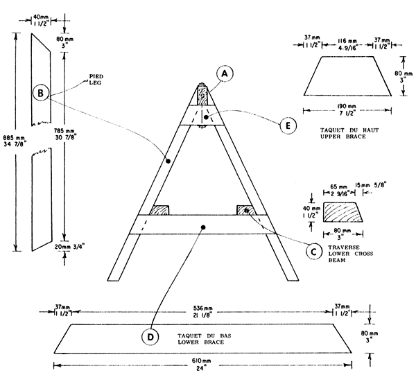
Une autre pièce importante d'équipement est le chevalet.
Il nous en faudra deux qu'on fabrique selon les dessins et photos qui suivent. Une liste est incluse pour faciliter l'achat des matériaux.
CHEVALET
LISTE DES MATERIAUX
| Nombre | Epaisseur | Largeur | Longueur | Total | |
| A - Traverse du dessus | 1 | 4 | 8 | 100 | 100 |
| B - Pieds | 4 | 4 | 8 | 885 | 356 |
| C - Traverses | 2 | 4 | 8 | 90 | 180 |
| D - Taquets du bas | 2 | 4 | 8 | 61 | 122 |
| E - Taquets du haut | 4 | 4 | 8 | 19 | 78 |
| Une pièce 4 m pour C, D et E | |||||
| Une pièce 4 m pour A et B | |||||
| F - Tige filetée | 8 | Æ 5 mm | 20 | 160 | |
| G - Rondelles | 16 | Æ int 6 mm | 16 | ||
| H - Ecrous | 16 | pour tige 5 mm | 16 |
Note: Tige peut avoir un diamètre de 5 à 10 mm selon ce qu'on trouve à acheter. Choisir les écrous et rondelles correspondants.
D'autres pièces d'équipement sont:
(les dessins de ces pièces d'équipement figurent à la page suivante).
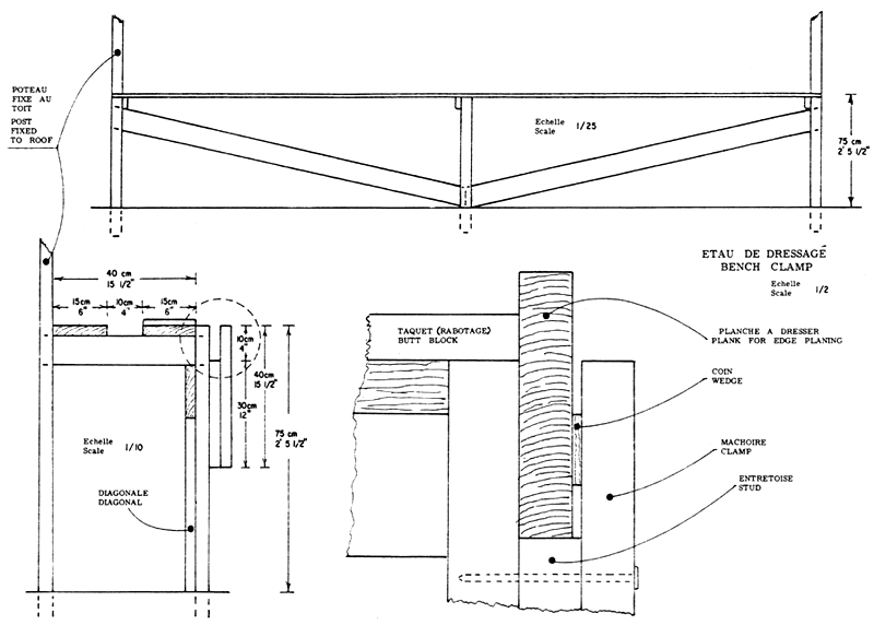
L'établi de rabotage sert à raboter et à dresser les planches brutes de sciage. Il aura une largeur de 40 à 50 cm et une hauteur de 70 à 80 cm selon le physique du charpentier.
Pour dresser les planches de moins de 15 cm on mettra des cales dans la mâchoire des étaux.
Il est nécessaire d'avoir un étau de dressage fixé sur chaque montant court (soit trois) afin de bien tenir les planches longues.
ETABLI DE DRESSAGE
LISTE DES MATERIAUX
| Nombre | Dimensions | Longueur | Total | Cubage (dm3) | ||
| Montants courts | 3 | 4 × 8 | 100 | 300 | 10 | |
| Montants | 1 | 4 × 8 | 240 | 240 | 685 | |
| 1 | 230 | 230 | 22 | |||
| 1 | 215 | 215 | ||||
| Ferme | 1 | 4 × 8 | 580 | 580 | 19 | |
| Traverses | 3 | 4 × 8 | 45 | 135 | 4 | |
| Diagonales | 2 | 3 × 15 | 260 | 520 | 23 | |
| Etaux | 3 | 4 × 8 | 30 | 90 | 210 | 7 |
| 3 | 40 | 120 | ||||
| Planches | 2 | 3 × 15 | 500 | 1 000 | 45 | |
| 130=0,13 m3 | ||||||
| Coût des matériaux | CFA francs | |
| 0,13 m3 × 18 000 CFA.f | 2 340 | |
| 1 kg clous | 160 | |
| 2 500 | ||
LISTE D'OUTILLAGE
Indispensable
Scie 60 cm
Tiers - point
Marteau
Equerre 25 cm
Tenaille 19 cm
Mètre
Crayon
Rabot
Pierre à huile
Ciseaux à bois largeur 3 cm
Vilebrequin
Mèche à bois 5 mm
Mèche à bois 20 mm
Fraise
Mèche de tournevis
3 serre-joints ouverture 60 cm
Presse-carrossier 20 cm
Varlope ou riflard
Trusquin
Lime à bois (1 côté rond, 1 côté plat)
Fer à calfater (un creux)
Scie à chantourner
Facultatif
Chasse-pointe
Bastringue
Pince à écartement
On devra fabriquer plusieurs coins ayant une longueur de 20 cm et une hauteur de 3 cm.
Afin de faciliter le transport d'une pirogue soit du chantier au camion ou jusqu'au bord du lac, on aura intérêt à construire une remorque.
Les plans et photos qui suivent indiquent la façon de s'y prendre.
Le bateau est fixé au chariot par des cordes partant des anneaux et attachées aux membrures. En croisant les cordes on obtiendra une rigidité axiale plus grande.
The first requirement for boatbuilding is a roof for protection from the rain and sun.
A shed meets these needs.
LIST OF MATERIAL FOR ARTISANAL SHED
| No. | Dimension | Length | Volume (dm3) | |
| Front posts | 3 | 1 ½" × 3" | 9' | 26 |
| Centre posts | 3 | 1 ½" × 3" | 8' 7 ⅛" | 25 |
| Rear posts | 3 | 1 ½" × 3" | 8' 2 ⅜" | 24 |
| Roof beams | 3 | 1 ½" × 3" | 19' | 56 |
| Transverse beams | 4 | 1 ½" × 3" | 23' 7 ⅜" | 92 |
| Braces | 4 | 1" × 6" | 4' 5 ⅛" | 24 |
| Struts | 2 | 1 ½" × 3" | 6' 10 ½" | 14 |
| 260 | ||||
| + 5% loss | 13 | |||
| 125 nails of 3" | 273 = 0.273 m3 | |||
| 100 roofing nails of 2" | or | 116 fbm | ||
| 33 iron sheets 2' 7 ½" × 6' 6 ¾" | ||||
| Actual cost | CFA.f. | US$ | ||
| Timber | 4 932 | 9.73 | ||
| Iron sheets | 14 850 | 59.40 | ||
| Nails | 315 | 1.26 | ||
| 20 000 | 80.00 | |||
COST OF ARTISANAL BOATYARD
(material)
| C.F.A.f. | US$ | |
| Shed | 20 000 | 80.00 |
| Mould | 5 000 | 20.00 |
| Workbench | 7 000 | 28.00 |
| Planing bench | 2 500 | 10.00 |
| Total | 34 500 | 138.00 |
The workbench is an important part of the equipment.
It is just as easy to build a solid and practical bench as shown in the design as making a shaky one that needs frequent repairs.
WORKBENCH
(list of timber)
| No. | Thickness | Width | Length | ||
| Top | A | 3 | 1 ½" | 7 ⅞" | 13' 1 ½" |
| Sides | B | 4 | 1 ½" | 7 ⅞" | 12' 5 ½" |
| Uprights | C | 8 | 1 ½" | 7 ⅞" | 2' 10 ⅝" |
| End planks | D | 4 | 1 ½" | 7 ⅞" | 2' ⅜" |
| Diagonals | E | 4 | 1 ½" | 7 ⅞" | 6' |
The quantity of timber required is 0.35 m3 or about 148 board feet.
Cost of timber and nails is 7 000 CFA.f. or US$28.00.
A useful though not essential piece of equipment is the sawhorse.
Make two of these following the design and photographs.
SAWHORSE
| No. | Thickness | Width | Length | ||
| A | Upper crossbeam | 1 | 1 ½" | 3" | 3' 3 ⅜" |
| B | Legs | 4 | 1 ½" | 3" | 2' 11" |
| C | Lower crossbeam | 2 | 1 ½" | 3" | 2' 11 ⅜" |
| D | Lower brace | 2 | 1 ½" | 3" | 1' 5 ⅜" |
| E | Upper brace | 4 | 1 ½" | 3" | 7 ½" |
| F | Threaded rod | 8 | ¼" | 7 ½" | |
| G | Washers | 16 | for above | ||
| H | Nuts | 16 |
Combination of timber
For A, B 1 beam 13' 1 ½"
For C, D, E 1 beam 13' 1 ½"
Other pieces of equipment, for which designs are shown on the next page, are:
The planing bench is used to plane rough-sawn planks. It should be 1' 4" to 1' 7" wide and 2' 3" to 2' 7" high, depending on the height of the boatbuilder.
When edge-planing planks of less than ½", shims should be inserted in the bench clamps.
Three bench clamps should be fitted - one on each upright - in order to hold the longer planks tight.
PLANING BENCH
| No. | Dimension | Length | |
| Short uprights | 3 | 1 ½" × 3" | 3' 3 ⅜" |
| Long uprights | 1 | 1 ½" ×3" | 7' 10 ½" |
| Long uprights | 1 | 1 ½" × 3" | 7' 6 ½" |
| Long uprights | 1 | 1 ½" ×3" | 7' ⅝" |
| Rafter | 1 | 1 ½" × 3" | 19' |
| Crossbeams | 3 | 1 ½" × 3" | 1'6" |
| Diagonals | 2 | 1 ¼" ×6" | 17' ¾" |
| Clamps | 1 | 1 ½" × 3" | 6' 10 ½" |
| Top planks | 2 | 1 ¼" × 6" | 16' 4 ¾" |
The cost of this material is about 2 500 CFA.f. or US$10.00.
TOOLS LIST
Indispensable
Crosscut saw 24"
Triangular file 6"
Hammer 16 oz
Square 12"
Carpenter's pincers 7 ½"
Measuring tape
Pencil
Jack plane
Oil stone
Wood chisel 1 ¼"
Ratchet brace
Steel boring bit 3/16"
Wood boring bit ¾"
Countersink bit
Screwdriver bit
3 sliding clamps, 24" opening
C-clamp 8"
Jointer plane
Marking gauge
12" half-round bastard wood rasp
Caulking iron
Keyhole saw
Optional
Flathead punch
Spokeshave
Saw-set pliers
A number of hardwood wedges 8" long and 1 ¼" thick, tapering to a thin edge.
A small trailer to transport canoes from yard to truck, to the lake, etc. Designs and photographs show how to build such a trailer.
The canoe is fixed to the trailer with cables starting from the rings of the trailer and tied to the frames of the canoe. Greater axial rigidity is achieved by crossing cables over the boat.
HANGAR ARTISANAL
ARTISANAL SHED

r. lefebvre fao

DISPOSITION DANS LE CHANTIER
LAYOUT OF ARTISANAL BOATYARD


Fig.19 Chantier artisanal
Fig.19 Artisanal boatyard
ETABLI
WORKBENCH

r. lefebvre fao
![]() | ![]() |
| Fig.20 Tasseau pour arrêter la planche à raboter | |
| Fig.20 Butt block to stop plank when planing | |
| Fig.22 Rabotage | |
| Fig.22 Planing | |
![]() | ![]() |
| Fig.21 Planche butée contre le tasseau | Fig.23 Etau de dressage |
| Fig.21 Plank stopped against butt block | Fig.23 Clamp for edge planing |
![]() | ![]() | |
| Fig.24 Dressage. Noter que cette opération consiste à raboter la rive de la planche | Fig.26 Planche à dresser coincée dans l'étau de dressage | |
| Fig.24 Edge planing | Fig.26 Plank wedged into clamp for edge planing | |
![]() | ![]() | |
| Fig.25 Serre à scier et à clouer les fonds | ||
| Fig.25 Clamp for sawing and nailing bottom planks | ||
| Fig.27 Noter le coin entre la planche et la mâchoire de l'étau de dressage | ||
| Fig.27 Note the wedge holding the plank in the clamp | ||
CHEVALET
SAWHORSE


r. lefebvre fao
![]() | ![]() | |
| Fig.28 | Fig. 30 La tige filetée traverse les taquets et la traverse du haut | |
| Fig.30 The threaded rod crosses the upper brace and upper crossbeam | ||
![]() | ![]() | |
| Fig. 29 | ||
| Fig.31 L'assemblage par rondelles et écrous | ||
| Fig.31 Assembly by nuts and washers | ||

Fig.32 La caisse à clous
Fig.32 The nail box
REGLE PLATE
WOODEN STRAIGHTEDGE

PRESSE
CLAMP

NAIL BOX
CAISSE A CLOUS

r. lefebvre fao
ETABLI (RABOTAGE & DRESSAGE)
PLANING BENCH

r. lefebvre fao

Fig.33 La caisse à matériaux sert à entreposer les outils, la quincaillerie et les produits d'étanchéité. Cette caisse est souvent déposée à l'extérieur du hanger afin de libérer ce dernier. Ces caisses sont d'anciens “containers” et, à cause de leurs fermertures et de leurs poids élevés, offrent une bonne sécurité, ainsi qu'une protection contre les éléments
Fig.33 The tool box is used to store tools, hardware and putty. This box is best left outside the shed. Former containers are most suitable as they offer protection against the elements

Fig.34 Règle plate
Fig.34 Wooden straightedge
CHARIOT DE TRANSPORT
CANOE TRAILER

face
front view

r. lefebvre fao

Fig.35 Ici on a utilisé de petits UPN plutôt que la tôle de
5 mm
Fig.35 Here small channel irons were used instead of the
¼" iron plate

Fig.36 Ce chariot est équipé d'un guidon qui facilite la manoeuvre Fig.36 This trailer is equipped with a drawbar for easy manoeuvering
![]() | ![]() |
| Fig.37 Le guidon devrait être relié aux ensembles par une traverse pour éviter des fatigues au joint du guidon-UPN | |
| Fig.37 The drawbar should be connected to the trailer with struts to avoid fatigue at the drawbar joint | |
![]() | |
| Fig.38 Chariot fixé au bateau | Fig.39 La facon de transporter |
| Fig.39 How to carry the canoe | |
| Fig.38 Canoe tied to the trailer |