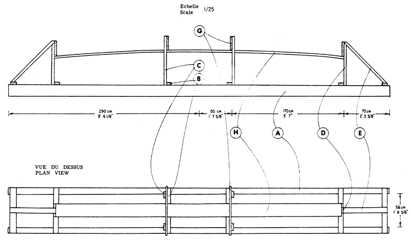
Le dessin “chassis” donne une vue générale du chassis. Les dimensions des différentes pièces sont specifiées sur les autres dessins et la liste des matériaux.
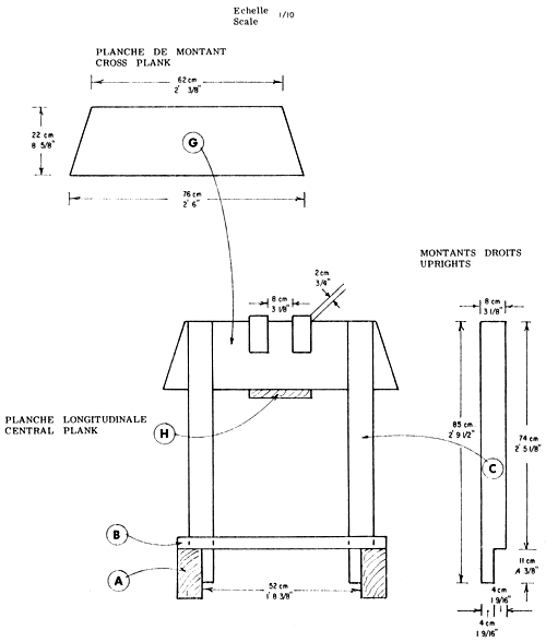
Les longerons (partie A du dessin “montants du centre”) ont 8 cm d'épaisseur, 16 cm de largeur et 5,80 m de longueur. On devra choisir ces pièces dans du bois droit. Si la longueur de 5,80 m n'est pas disponible on devra joindre deux piéces selon le dessin “joint de longerons”. Sur ce point noter le décalage des boulons. Les deux longerons seront écartés de 52 cm, et joints par les 6 traverses de 4 cm × 8 cm (partie B) “montants du centre” selon les distances du dessin “chassis” avec des clous de 10 cm.
Si le cordeau ne tombe pas sur le centre des planches de montant on vérifiera:
On effectuera alors les ajustements requis. On fixera ensuite les montants obliques sur les traverses et les longerons.
Si le chassis doit être installé ailleurs, on verra à ce qu'il soit alors posé sur un sol plat. Avant de s'en servir on vérifiera son alignement par un cordeau tiré du centre des porte-étraves. Si le cordeau ne correspond pas aux centres des planches de membrure, on devra caler les longerons aux endroits ou le sol est bas. On vérifiera la ligne droite des longerons avec un cordeau dessus et du long de ces derniers.
LISTE DES MATERIAUX - CHASSIS KOSSOU I
| Nom des pièces | Réf. du plan | Nombre | Epais. (cm) | Larg. (cm) | Long. (cm) | Total (m) | Cubage |
| Longerons | A | 2 | 8 | 16 | 575 | 11,50 | 0,147 200 |
| Traverses | B | 6 | 4 | 8 | 68 | 4,80 | 013 056 |
| Montants droit du centre | C | 4 | 4 | 8 | 90 | 3,60 | 011 520 |
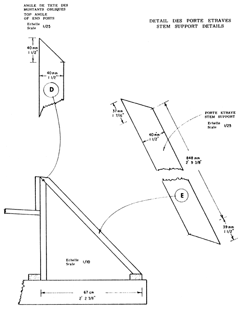
| Montants obliques | D | 4 | 4 | 8 | 90 | 3,60 | 011 520 |
| Porte-étraves | E | 2 | 4 | 8 | 95 | 1,90 | 006 080 |
| Taquets montants obliques | F | 2 | 3 | 22 | 20 | 0,40 | 002 640 |
| Planches de montant | G | 2 | 3 | 22 | 80 | 1,60 | 010 560 |
| Planche longitudinale | H | 1 | 3 | 20 | 445 | 4,45 | 026 700 |
| 0,229 276 | |||||||
| + 10% | 0,022 927 | ||||||
| Total | 0,252 203 |
LISTE ACHAT DE BOIS
| 4 × 8 × 4,10 m | = B |
| 4 × 8 × 4 m | = D |
| 4 × 8 × 3,60 m | = C |
| 4 × 8 × 2 m | = E |
| 8 × 16 × 5,75 m = 2 fois | = A |
| 3 × 20 × 4,50 m | = H |
| 3 × 22 × 2,00 m | = G + F |
COUT APPROXIMATIF DES MATERIAUX = 5 000 CFA francs
Main-d'oeuvre = 16 heures/homme
| CLOUS | NOMBRE |
| 10 cm | 80 |
| 8 cm | 60 |
| 7 cm | 10 |
| 6 cm | 40 |
The drawing “Kossou I Mould” gives a general view, while detailed specifications appear on the other drawings and lists of materials.
The runners (Part A of drawing “Central Uprights Assembly”) are 3 ⅛" × 6 ¼" and have a length of 19'. They should be chosen from straight stock. If this length is not available in one piece, a joint should be made according to the drawing “Runner joint”. Note the staggering of bolts. Spacing between the runners is 1' 8 ¾". The runners are joined by six crossbeams of 1 ½" × 3", using 4" nails.
If the line does not fall on the centre mark of the crossplanks, check:
Make required adjustments, then fix the end posts to crossbeams and runners.
If the mould has to be moved, the new site should have level ground. Before using the mould check the alignment with a line drawn from the centre of the stem supports. A line should also be pulled along the top and sides of the runners. Shims and posts should be used to straighten the runners if necessary.
KOSSOU I MOULD
(List of material)
| No. | Thickness | Width | Length | ||
| Runners | A | 2 | 3 ⅛" | 6 ¼" | 18' 10 ⅜" |
| Crossbeams | B | 6 | 1 ½" | 3 ⅛" | 2' 2 ¾" |
| Central uprights | C | 4 | 1 ½" | 3 ⅛" | 2' 11 ⅜" |
| End posts | D | 4 | 1 ½" | 3 ⅛" | 2' 11 ⅜" |
| Stem supports | E | 2 | 1 ½" | 3 ⅛" | 3' 1 ½" |
| Plates | F | 2 | 1 ¼" | 8 ⅝" | 7 ⅞" |
| Crossplanks | G | 2 | 1 ¼" | 8 ⅝" | 2' 7 ½" |
| Central plank | H | 1 | 1 ¼" | 7 ⅞" | 14' 7 ⅛" |
Total quantity of wood is 0.25 m3 or 106 board feet.
TIMBER PURCHASING LIST
| B | 1 ½" × 3 ⅛" × 13' 6" |
| D | 1 ½" × 3 ⅛" × 13' 1 ½" |
| C | 1 ½" × 3 ⅛" × 11' 9 ⅝" |
| E | 1 ½" × 3 ⅛" × 6' 6 ¾" |
| A (2X) | 3 ⅛" × 6 ¼" × 18' 10 ⅜" |
| H | 1 ¼" × 7 ⅞" × 14' 9 ⅛" |
| G-F | 1 ¼" × 8 ⅝" × 6' 6 ¾" |
NAILS
80 of 4"
60 of 3"
10 of 2 ¾"
40 of 2 ¼"
Cost of materials is about 5 000 CFA.f. or US$20.00.
CHASSIS KOSSOU I
KOSSOU I MOULD

r. lefebvre fao
ENSEMBLE MONTANTS DU CENTRE
CENTRAL UPRIGHTS ASSEMBLY

r. lefebvre fao
JOINT DE LONGERONS
RUNNER JOINT

r. lefebvre fao

Fig.40 On vérifiera la ligne droite horizontale en
tirant un cordeau à l'arête des longerons
Fig.40 Check the straight horizontal line by pulling a cord
against the outside edge of the runners
![]() | ![]() |
| Fig.41 On préparera 4 montants 4 × 8 × 85 cm (partie C) (dessin “montants du centre”), 2 planches de montant (partie C), qu'on assemblera pour obtenir la partie centrale du chassis | Fig.42 On prendra soin de vérifier le niveau sur les traverses et de caler les longerons où nécessaire |
| Fig.41 Prepare four uprights of 1½"x 3"x 2'9½" and two crossplanks and assemble them at the centre of the mould | Fig.42 Check the level on the crossbeams and shim the runners where necessary |
![]() | ![]() |
| Fig.43 On vérifiera la ligne droite verticale des longerons en tirant un cordeau sur le côté des longerons | |
| Fig.43 Check the vertical straight line with a cord against the sides of the runners | |
![]() | |
| Fig.44 Les montants seront cloués contre les traverses en faisant bien attention à les placer du côté des traverses donnant vers les extrémités du chassis. Voir dessin “chassis” | Fig.45 Afin que les montants soient d'équerre avec les longerons, vérifier avec une grande équerre de maçon Fig.45 Check the right angle of the uprights with a large carpenter's square |
| Fig.44 The uprights are nailed to the crossbeams. Attention should be paid to placing the uprights on the side of the crossbeams toward the end of the mould |
![]() | Fig.46 Avec la même équerre vérifier l'angle droit des montants en posant l'équerre sur les traverses | |
| Fig.46 Check right angle of the uprights with the same square on the crossbeams | ||
![]() | ||
![]() | Fig.48 On fixera ensuite les pieds des montants aux longerons, par deux clous de 10 cm à chaque pied Fig.48 The uprights are then nailed to the runners with two 4" nails each | |
| Fig.47 On fixera des arc-boutants entre les montants et les longerons afin que les montants restent à l'équerre Fig.47 Struts are fixed to the uprights and runners to ensure that the uprights remain square | ||

CHASSIS KOSSOU I
KOSSOU I MOULD
r. lefebvre fao

CHASSIS KOSSOU I
KOSSOU I MOULD
r. lefebvre fao
![]() | |
| Fig.49 On préparera les montants obliques et les taquets F du dessin “montants obliques”. On les assemblera sur l'établi
après s'être assuré d'un écart de 52 cm entre les parties ex térieures du bas des montants. On fabriquera les porte-étraves
selon le dessin et on coupera la tête de l'ensemble montants obliques selon le dessin “détail des porte-étraves” Fig.49 Prepare the end posts and plates according to drawing “End posts”. Assemble them on the bench making sure that the spread of the posts is 1' ⅜". Mount stem supports and cut the head of end posts according to the angle specified in the drawing | |
![]() | ![]() |
| Fig.50 On fixera temporairement les montants obliques contre l'extrémité des traverses avant | Fig.51 S'assurer que le dessous des montants obliques correspond avec le dessous des longerons |
| Fig.50 Tack end posts onto the end crossbeams | Fig.51 Check that the end posts are flush with the underside of the runners |
![]() | ![]() | |
| Fig.52 Mesurer le centre des traverses avant. Y faire correspondre le centre du porte-étrave | ||
| Fig.52 Mark the centre of the end cross brace | ||
![]() | Fig.54 Pour vérifier la position d'équerre des montants obliques tirer un fil à plomb partant de la tête du montant
oblique. Le fil à plomb doit tomber le long de la traverse Fig.54 To check the vertical square of the end posts, use a plumb bob from the top of the end posts. The plumb bob must fall against the side of the crossbeam | |
| Fig.53 Fixer avec 2 clous de 8 cm Fig.53 Fasten with two 3" nails | ||
![]() | ![]() | |
| Fig.55 L'ensemble présentera cet aspect | ||
| Fig.55 The unit should look like this | ||
![]() | ||
| Fig.57 Fixer la planche longitudinale H contre le dessous des taquets de montants obliques et contre le dessous des planches de montant Fig.57 Fasten the central plank to the underside of the plate at the end posts and to the underside of the central cross-planks | ||
| Fig.56 |
![]() Fig.58 | ![]() |
![]() | Fig.60 Le cordeau doit tomber sur la ligne d'axe des planches de montants. Prendre soin de pincer le cordeau afin de s'assurer qu'il est vraiment droit Fig.60 The line must fall on the centre mark of the crossplanks. Snap the line to make sure that it is straight |
| Fig.59 Avec un clou planté sur le centre des porte-étraves, tirer un cordeau | |
| Fig.59 Tack nails into centre of the top of the end posts and pull a line |
![]() | ![]() |
| Fig.61 La position d'équerre des planches de montant se vérifie en mesurant du coin d'une planche au coin opposé de l'autre planche | |
| Fig.61 The square of the crossplanks is checked by measuring from the corner of one plank to the cross corner of the opposite plank | |
![]() | |
| Fig.63 Si cette mesure n'est pas la même dans les deux sens, on devra pousser ou tirer sur les planches jusqu'à ce que les deux mesures en X soient pareilles. On tient alors les planches en position avec des arc-boutants Fig.63 If measures are not the same, pus or pull planks until they tally. Hold planks in position with struts as shown | |
| Fig.62 Cette mesure doit être la même à 2 mm près lorsque faite aux deux autres coins des planches | |
| Fig.62 When measuring the other two corners of the planks, measures must be the same within 1/16" |
![]() | ![]() |
| Fig.64 A 4 cm de chaque côté du centre des planches de montants on clouera des taquets dépassant de 2 cm | |
| Fig.64 At 1 ½" on each side of centre marks on the crossplanks, fasten cleats protruding ¾" | |
![]() | Fig.66 Marquer le centre des porteétraves Fig.66 Mark the centre at the top of stem supports |
![]() | |
| Fig.65 Sur les porte-étraves à environ 80 cm du dessus, on marquera le centre de la largeur pour nous servir de repère lors de la pose des étraves | |
| Fig.67 Ainsi que le centre des planches de montant | |
| Fig.67 Mark off centres of crossplanks | |
| Fig.65 Mark the centre of the stem supports at 2' 7 ½" from the top to have a reference when installing the stems |