SCS/82/CFE/CP-5
by
R. Djajadiredja and T. Daulay2
1. INTRODUCTION
Brackishwater ponds are scattered throughout Indonesia. In the northern part of Sumatra (Aceh) there are around 21 564 hectares, in West Java 35 629 hectares, in Central Java 18 422 hectares, in East Java 44 629 hectares, in South Sulawesi 55 070 hectares and in other parts of the country 6 488 hectares. The total area of brackishwater ponds being used for fish culture has not changed much during the last ten years. In 1971, it was 182 073 ha and in 1980, 182 400 ha, with changes at 164 594 ha in 1976 and 186 167 ha in 1974 (Table 1). The total output of brackishwater fish culture is about 93 644 tons in 1979, of which 46 187 tons consisted of milkfish (Djajadiredja, 1982).
Table 1
Area of brackishwater ponds being
used for culture during ten years (1971–1980)*
| Year | Area (ha) |
|---|---|
| 1971 | 182 073 |
| 1972 | 178 297 |
| 1973 | 180 000 |
| 1974 | 186 167 |
| 1975 | 182 701 |
| 1976 | 164 594 |
| 1977 | 174 605 |
| 1978 | 171 594 |
| 1979 | 181 792 |
| 1980 | 182 400 |
* Source: Fisheries Statistics of Indonesia. Directorate General of Fisheries. 1981.
One of the problems encountered in the development of brackishwater in Indonesia is the insufficient supply of milkfish fry. Besides this fact, there exists substantial waste of fry due to the poor method and technique of fry handling, storage, transportation and nursery on the one hand and the substandard engineering and construction of a fry ponds on the other.
The mortality rates of cultured milkfish are 20–25 percent for milkfish fry between the time of collection and stocking, 50–70 percent during 6–8 weeks rearing of fry to fingerling stage, and 20–30 percent during a 8–10 months rearing of fingerling to marketable size (500 grams) (Schuster, 1960).
The production of milkfish fry fluctuates widely from 470–550 million per year. This is not sufficient for stocking the 182 000 ha of coastal fishponds.
For this reason fry are rare and expensive, particularly in areas where fry have to be obtained from other localities. In recent years, many pond owners could not stock their ponds with milkfish fry so that many of them rely on the stock of extraneous fishes and tilapia. The shortage of fry is being overcome by (a) exploring additional fry grounds; (b) improving the method and technique for the capture, handling, storage and transportation of fry; and (c) improving the method and technique of the nursery of the fry including improvement of the fry pond design and construction.
If the survival rate of fry nursery can be improved up to the average of 60 percent by the adoption of better fry pond construction and nursery technique as suggested by Djajadiredja (1957), the supply of fry to the nation can be considerably increased. The improvement of the nursery of the milkfish fry is urgently required. A well-designed and well-constructed fry pond will lead to the possibility of the establishment of commercial milkfish nursery pond using intensive culture technology.
2. THE STATUS OF THE BRACKISHWATER PONDS
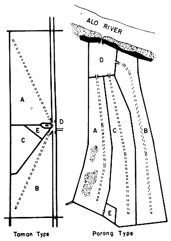
The “tambak” is the simplest form of pond layout found along the nort coast of Java forming a management unit and comprising a single compartment. The more advanced layout or design is found in the Brantas Delta in East Java, where a brackishwater pond unit consists of 3 to 10 compartments, each of which can be operated independently and which is made possible by the construction of a common division pond or head pond (Fig. 1). One unit of such farm covering an area of 5–25 ha belongs to a single farmer and can be managed by 1–2 persons. The first mentioned type is called the West Java type, whereas the latter one the Porong type. Ponds found in South Sulawesi however, are originally constructed without special supply canals. Successive water supply from one pond to another has been of common practice in that area. On high elevated area north of Surabaya and other location along the north coast of East Java, a pond type exists emphasizing a design adjusted to operational needs under shallow conditions of the ponds. This pond type is called the Taman type, derived from the complicated structure of the Porong type (Schuster, 1949).
1 Contribution to the FAO UNDP-SCSP Consultation Seminar on Coastal Fishpond Engineering, Surabaya, Indonesia, 4–12 August 1982.
2 Research staff, Inland Fishery Research Institute, Agency for Agricultural Research and Development, Bogor, Indonesia.

Fig.1 Layout of Taman and Porong types of milkfish farm. D, division pond; A, B and C, rearing ponds; E, fry pond; tp, transition pond; and C, canals
The state of development of the brackishwater pond culture varies from one area to another. It was reported (Anonymous, 1978) that three categories of pond can be identified as summarized in Table 2.
It can be clearly seen that a substantial percentage of ponds (29 percent) is grouped in the underdeveloped category, where the ponds are not supported by specially designed water supply canals and sluice gates, where there is still dry elevated land, and where wild fry coming in with tidal waters are used and no production inputs are expended.
2.1 The status of the milkfish fry nursery system
Generally a fry pond consists of a single small compartment located at a suitable elevation in the central part, or near the corner of a rearing pond. It is usually square, rectangular or sometimes circular in shape, at a size ranging from few m2 up to about 1 000 m2. Typically, a nursery pond is subdivided into 2–3 compartments (Fig. 2), but normally without permanently constructed dikes and gates. These structures are constructed or reconstructed shortly before fry stocking. Often a small compartment of 4–8 m2 is made serving as an acclimatization pond (baby box. bb. Fig. 2). The fry are first stocked in this compartment for 1–4 days and are then given passage to the nursery pond proper by cutting open the partition dike. The fry are raised here for 2–4 weeks after which, they are admitted to the succeeding fry pond or directly to the rearing pond. In the fry pond, the fry are further raised for 6–8 weeks.

Fig. 2 Layout of Jakarta and Kamal types of milkfish farm. dp, division pond; fp, fry pond; tp, transition pond; bb, fry or baby box; and c, canal
In certain places especially in West Java, unique commercial fingerling producers exist, who raise fry exclusively only up to a fingerling size. Here, farmers have developed special technique of fingerling production with relatively high survival rates (60–80 percent). Fingerlings are also stunted in transition or stunting ponds, where the fish are kept stunted by regulating the stock density. Fingerlings of 3–5 cm to 8–12 cm are delivered to farmers who are specialized in raising the fish from fingerling to marketable size. This system enables farmers to reduce growout to 3–4 months making it possible to achieve 3 crops a year. Nursery still remains to be the most critical and risky stage in the culture of the milkfish in which culture management is required.
In some other locations, a more or less similar system is practiced within a single pond unit. In the transition pond fingerlings are stored at high densities and are caught and transferred to vacant rearing ponds.
Table 2
Stage of development of the brackishwater pond culture (1977–1978)
| Province | Underdeveloped1 | Developing2 | Advanced3 | |||
|---|---|---|---|---|---|---|
| ha | percent | ha | percent | ha | percent | |
| Aceh | 3 530 | 21 | 11 095 | 66 | 2 186 | 13 |
| West Java | 20 750 | 56 | 11 858 | 32 | 4 447 | 12 |
| Central Java | 1 738 | 7 | 15643 | 63 | 7 449 | 30 |
| Bali | 128 | 54 | 107 | 46 | 0 | - |
| West Nusa Tenggara | 1 815 | 60 | 1 182 | 40 | 0 | - |
| South Sulawesi | 12 685 | 30 | 16 910 | 39 | 13 280 | 31 |
1 Underdeveloped: stocked with wild fishes; no fertilizers and pesticides are used; water supply system is primitive, supply of water flows from onepond to another; and high percentage of ineffective dry land.
2 Developing: stocking density about 3 000 fry/ha/year; fertilizers and pesticides are used; and water supply canals and simple constructed gatesare available.
3 Advanced: stocking density about 5 000 fry/ha/year; applying fertilizer, pesticides, supplementary/feeding, improved water management; andadopting at least 3 stages of culture.
2.2 Fry nursing technique
Being aware of the importance of the conditions of the fry pond in the success of fry rearing, farmers give usually special care to these ponds. Shortly before fry are received, the nursery ponds are drained, the bottom exposed to sunlight and all available fishes and other unwanted animals (snails, crabs, etc.) are removed. Complete draining is possible because a fry pond is laid out on the highest part of a farm. If this is not possible, pumping or bailing the water out of the pond is usually done. The soft muddy bottom is then stirred, leveled and further allowed to dry, while the dikes are shaped and carefully repaired. This is done in the first (acclimatization pond), second and third compartments; but the large transition ponds, where complete draining is difficult to achieve, are usually cleaned from wild fishes. Over the acclimatization pond, often roofing of palm leafs are made to maintain relatively lower water temperature. The fry pond get water from the surrounding ponds through see-page in the dikes.
Stocking takes place early in the morning or late in the afternoon as soon as the condition of the fry pond is regarded suitable. Suitability is normally indicated by clear and calm water, relatively lower temperatures, suitable salinity, good condition of soil, luxurient growth of blue-green algae and diatoms, etc. The nursery of fry is generally operated on a progression culture principle. In an advanced commercial hatchery in Jakarta, nursery is done in 3 or 4 stages:
First stage: fry are stocked in the baby box, and kept there for 1–2 days.
Second stage: fry are transferred to the second and third fry ponds in which the fry are allowed to grow for 2–4 weeks.
Third stage: fry are transferred to the fry pond proper where they are kept for 4 to 6 or 8 weeks.
Fourth stage: the fingerlings are admitted to the transition pond in which they will remain from 8 weeks to several months.
In the simplest form, the fry undergo two nursery stages. They are released into the fry pond for 1 or 2 weeks, and are then transferred to the rearing pond. This is normally done by small farmers, whose ponds are on the average 3–5 ha in area, and their need of fry amount to only 7 500–12 500 fry stock.
3. FINDINGS
3.1 Experiments and development
There are of course efforts made in the past to improve the physical condition of brackishwater ponds. Projects launched by the central as well as by the provincial governments of this nature include:
Rural credit project and others.
The few research projects that exist are more specifically directed to the solution of problems, which will lead to the improvement of the supply of fry such as:
Improvement of the layout, design and construction of nursery ponds.
3.2 Improvement of the fry pond layout, design and construction
An effort toward achieving better designed fry pond dates back to as early as 1954, when a typical Philippine model of nursery pond has been tried out in various localities in Java including Kamal (Jakarta), Polagan (Madura), Penumbukan (Jepara), etc. (Djajadiredja, 1957). At Kamal experimental ponds, a unit of nursery of 0.5 ha was established and later on another 1.2 ha was constructed. The aim of the introduction of this type of pond is to study the applicability and the techno-economical viability of this system for the Indonesian farmers. A part of these units has still been in use up to now and another one unit is under construction (Fig. 3).

Fig. 3 Model layout of a 1-ha nursery unit kamal
LEGEND:
| FP = Fry pond | Main gate | |
| TP = Transition pond | Secondary gate | |
| CP = Catching pond | Culvert | |
| WC = Water supply canal |
The following specifications might be noteworthy:
a. Site selection
The scope of the project is to produce fingerlings for supplying stocking materials to the 60 ha Kamal experimental pond unit. Excess of seeds will be disposed to neighbouring farmers.
Two rearing ponds each of 0.5 ha at the experimental ponds at Kamal, west of Jakarta, were converted into nursery ponds. The site of these ponds has been selected on the basis of its strategic location in view of its security, easy communication and especially with regard of its suitable location in the irrigation system. Since the site was originally a pond, the bottom elevation is already suitable to secure adequate water supply and proper drainage. Soil for construction of the bunds has to be transported from the nearby existing undulated areas.
b: Type and layout
The type of nursery (Fig. 3) is nearly of the same type as the first introduced Philippine type, consisting of two rows of fry ponds, each of which is connected with the inner supply canal. Every two fry ponds (FP) have one common catching or division pond (CP), connected with the canal by means of a pipe. The transition ponds (TP) designed in the same way as the fry ponds are 6 in number and has a total area of about 0.75 ha (3 times the FP). The regular shape and uniform size of the ponds is due to the fact that ponds might be used for experimental purposes and are constructed on existing rearing ponds. Since the use of baby box and progression system is a common practice, a series of small ponds (FP) which will serve as baby box FP1 and FP2 are constructed in between two nursery ponds. The fry pond unit and the transition pond unit are designed to have a ratio of 1:4. The following summarizes the dimentions of these ponds.
| Area (m2) | |
|---|---|
| Baby box (acclimatization pond) | 4 |
| Fry pond 1 | 20 |
| Fry pond 2 | 40 |
| Fry pond 3 | +250 |
| Catching pond (CP) | 20 |
| Transition pond (TP) | +1 200 |
| Catching pond (CP) | 48 |
c. Dikes
Two kinds of dikes have been designed and constructed: the bordering or main and partition dikes.
The function of the main dike is to protect the whole nursery pond against damage by flood. This dike is high, broad and strongly built, depending on the location of the nursery pond, the tidal range and other essential considerations.
At Kamal the highest tide is only 1.30 m so that the main dike of 2 m high and 2 m wide on top with a slope of 1:1 to 1:1.5 is considered to be proper. This will also be valid for other parts of West and Central Java. In East Java where high tides can reach a height of 3.5 m, the main dike has to be built higher, wider and stronger.
The partition dike is lower and smaller. At Kamal it is 1 m high and 0.8–1 m broad on top with a slope of 1:1. Dikes along the supply canal can be erected much broader.
d. Water supply canal
The canal serves as supply and draining ditch for the ponds and serves also as water reservoir. The width depends on the area of the ponds to be irrigated, but it is normally 0.75–1.5 m at the bottom. The water from the canal enters the fry ponds via the division or catching ponds.
The fry pond proper is connected with the catching pond with the sluice gate, whereas the last mentioned one with the canal through a pipe. The fry pond unit has to be isolated from the uncontrollable water sources. This can be effectively accomplished by construction of a double canal system. Where canals are not available, head ponds may serve as water supply pond.
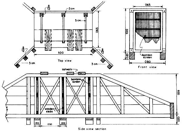
e. Sluice gates and pipes
The gates for nursery ponds are smaller but must be more precisely constructed than those for the normal rearing ponds. Two kinds of sluice gates are in use, wooden and concrete ones (Fig. 4–5). The sluice board which controls the water level in the pond consists of 20 cm broad wooden slabs, inserted in the groove made in the middle of each of two side walls of the gate. In front as well as behind are fine-meshed screens with wooden frames which are placed also in grooves along the sides of the gate.
Both sides of the gate are in front and rear edges bending out and downward following the slope of the dikes and are forming wings. These will present scouring along the walls of the gate and soil erosion of the dikes. A wooden gate is usually painted with coal tar. The cemented gate is made of bricks reinforced by vertical and horizontal columns of iron bars.
On very soft mud, the gate has to be constructed on bamboo piles, deeply driven (2 m or more) in mud. This is to ensure strong foundation of the gate.
Every fry, transition and rearing pond has its own sluice gate, which is called secondary or tertiary gate. The catching pond is however connected with the ditch by a pipe. The secondary/tertiary gate is made of wood or brick, designed and constructed in the same way as the main gate.
At Kamal, concrete culverts are made of ordinary concrete pipes of a diameter of 20 or 30 cm which are available in the common market. This structure is at both ends provided with additional parts specially made for the purpose (Fig. 6).

Fig. 4 Wooden sluice gate

Fig. 5 Cemented sluice gate
Wooden culverts are rectangular in cross-section, 0.48 m high, 0.40 m wide and 3.60 m long. Both ends are provided with one pair of grooves in which wooden slabs and screens are fitted (Fig. 7). The length of the culvers depends actually on the width of the dikes. The culvert is so placed at the base of the dike that both ends protrude at least 40 cm outside the dike. The culverts have to be installed on a strong foundation, especially its joints. In soft mud, this device has to be constructed on bamboo poles.

Fig. 6 Cemented culvert

Fig. 7 Wooden culvert
f. Fry pond, catching pond and baby box
The size of fry ponds varies between several up to 1000 m2. As mentioned earlier, the ponds consist of several smaller ponds, are rectangular in shape and at the deepest part 30 cm deep. It is not provided by a peripheral canal, instead a diagonal ditch is made.
A fry pond is the shallowest one in the whole nursery pond system. The deepest part of a fry pond is situated directly behind the sluice gate. Milkfish fry are reared for 1.5-2.0 months.
For every two fry ponds, there is one common catching pond with an area of 20 m2. This pond also serves for water distribution. Water from the canal is tapped through a culvert into the catching pond and to both fry ponds through the sluice gates. The catching pond is the deepest portion of the whole fry pond unit.
The baby box, 4–8 m2 in size is constructed temporarily or permanently within the fry pond at the shallowest part of the nursery unit. It can be made of concrete or of wooden slabs or just of earthen dikes. The advantage of the use of a baby box is clearly defined by Djajadiredja (1967).
g. Transition pond
This pond is normally much larger and deeper than the fry pond and is usually constructed near the source of the water. The newly designed transition ponds have a surface of 1 200 m2 and a catching pond of 48 m2.
In the transition ponds, the fingerlings are kept for 1-6 months, depending on the need of fingerlings for stocking the rearing ponds or to be delivered to farmers.
3.3 Construction
Major works in pond construction are earth excavation and moving and construction of gates, pipes and buildings. Before real construction operation commence, a construction plan has to be made such as topographical survey, land measuring and marking, design and drawing of pond layout, dikes, canals, gates, etc. All these works are done by the fisheries technicians; however, for large-scale works, it is advisable to look for the services of a pond engineer consultant. The following may serve as guidelines in the execution of the construction works.
The first step to be taken in pond construction is draining the whole area and setting up the dike profiles out of bamboo sticks. When condition permits, construction of pond under dry condition is preferable.
The next step is construction of the main dike, followed by secondary and tertiary dikes. The strip where the dike is to be built should be cleaned and preferably a puddle trench should be dug so that a strong and solid dike is ensured. The soil should be deposited in layers. It is essential to instruct the labourers, where the soil has to be taken from. It is advantageous to take soil from high elevated parts of the bottom or from places where canals are to be constructed.
Meanwhile the main gates, secondary and tertiary gates and culverts are constructed. Construction of these structures can be done in the workshop, but for big units such as concrete gates and pipes construction has to be carried out directly at the site.
The last part of the construction work is soil elevation and leveling and grass planting of the dikes.
3.4 Cost of construction
The cost of construction of a nursery depends primarily on the state of land, topography and range of the tide. A virgin high levelled tidal mangrove land on which a nursery is to be constructed would need higher construction cost than that which consists of land that has already been developed. Other determining factors are also important, viz., its location, availability of material such as lumber, cement, bricks, etc., at the project site, availability of labourers, and other similar considerations.
Major expenses in construction works are:
construction of gates, pipes, caretaker house, shed and other minor works.
The total expense of a l-ha nursery pond amounts to Rp 3 926 9001 as shown in Table 3.
Table 3
Estimated cost of construction of nursery fishpond, 1982
| 1. | Earth work | |
| - Planning 7 percent | Rp 256 900 | |
| - Profile making 900 m at Rp 500/m | 450 000 | |
| - Earth work for diking 1 200 m3 at at Rp 350 m3 | 420 000 | |
| - Leveling of pond bottom (1 ha) at Rp 27 m2 | 270 000 | |
| 2. | Construction work | |
| - 2 wooden main gates at Rp 85 000 | 170 000 | |
| - 18 wooden secondary gates at Rp 50 000 | 900 000 | |
| - 7 wooden pipes at Rp 50 000 | 350 000 | |
| - 6 wooden baby box at Rp 25 000 | 150 000 | |
| 3. | Caretaker's house and feed material storage | 960 000 |
| Rp 3 926 900 |
1 Rp or Rupiah 650 = USSI in August 1982.
4. DISCUSSIONS AND RECOMMENDATIONS
The milkfish nursery type and layout, derived from the philippine type of nursery, has been adopted to the Indonesian condition since 1955. More than a quarter century of experience at the Kamal Experimental Station has given positive judgment of its applicability for Indonesian farmers. Old experiments and ten years of experience have resulted in an average mortality rate of 40 percent ranging from 15 to 60 percent. This means an improvement of 20 percent over the presumed average mortality rate of 60 percent ranging from 50–70 percent. This achievement is attributable to the proper layout and construction of the nursery pond with its excellent water work system which makes complete drainage, long-term (7-14 days) drying, and adequate supply of water possible. Besides, this excellent pond layout and design may lead to the application of more intensive culture methods and techniques, such as fertilization and manuring, culture of benthic algae, control of predators and pests, etc. Catching ponds or head ponds and water supply canals may serve as passageway for fingerlings and also as water reservoir, which is important to supply water during fish collection, storing, counting, etc.
The Indonesian nursery is probably designed to perform small-scale fry nursing. The in-series pond system, where stocking takes place on progression, suits the family type of farms in which labour consists only of the farmer or caretaker himself assisted by members of the family. Taking this into account, this progression type has been combined with the Philippine type (Figs. 2–3). Rabanal (1951) notes the profitability of the nursery industry. This coincides with the findings of Djajadiredja (1957) revealing a rate of return on the capital cost of 67 and 111 percent at Kamal and Jepara, respectively.
Schster (1949) has found specialized commercial nurseries near Jakarta and Karawang, which produce fingerlings exclusively for fishfarmers.
Another advantage of establishing this type of nursery is the fact that seed in the form of fingerlings can be made available at any time of the year, as a result of the stunting system. The grow-out industry on the other hand is favoured by the shorter period of rearing of 3-4 months so that 3 crops can be gained per year.
The potential stocking capacity of a fry pond is 30-40 fry per m2, yielding 18–20 fingerlings per m2 (60 percent survival) at the end of the nursing period. The holding capacity of the transition pond varies from 10-15 fingerlings per m2 so that a l-ha hatchery may produce 180 000-200 000 fingerlings per season.
The national requirement of fry has been a problem for many decades. The balance between stock and requirement has been described by Schuster (1960) who states that the stock of fry in pre-war time for Java amounted to 150-300 million; whereas the requirement was estimated at 275 million. Recent yields of fry (1975–1978) vary from 470 to 550 million (Natawiria, 1978). Based on the net area of 152 039 ha given stocking density of 4 000 fry/ha/year, the annual need should amount to 608 million. This unfavourable fry situation with a shortage by about 100 million, becomes more serious with regard to future extensification and intensification programmes launced by the government. By the improvement of the survival rate from 40 to 60 percent as many as 94 to 110 million of fry can be saved annually.
5. LIST OF SELECTED REFERENCES
Anonymous 1978 Proceedings of the Workshop on Milkfish Fry Marketing in Indonesia, Directorate General of Fisheries, Department of Agriculture (in Indonesia).
Anonymous. 1981 Fishery statistics of Indonesia. Directorate General of Fisheries, Department of Agriculture, Jakarta
Alikunhi, 1975 K.H., B.S. Ranoemihardjo, A. Poernomo Tirtoredjo and E. Hamami. Preliminary observation on rearing of milkfish fry on plankton in cement tanks and plastic pools. Bull, Shrimp Cul. Res. Centre 1, No. 1, 40–45.
Djajadiredja, 1965 R. Intensification of milkfish fry rearing to fingerling size; an effort in increasing stock of seed.
Djajadiredja, 1965 R. Preliminary report of the introduction of the Philippine type of nursery in Indonesia, IPFC/ C57/TECH 17 Bandung.
Djajadiredja, 1964 R. Outline for implementing a milkfish nursery project, IFRI Report.
Djajadiredja, 1982 R. Status and technology of brackishwater aquaculture in Indonesia, AARD Journal Jakarta (A paper presented to FFTC, Bangkok).
Lijauco, 1979 M.,J.V. Juario, D. Baliao, E. Grino and G. Quinitio. Milkfish culture in brackishwater ponds, SEAFDEC, Tigbauan, Iloilo, Philippines.
Natawiria, 1978 E.S. Plan of development of fish culture in brackishwater ponds in PELITA III (unpublished report), IFRI, Bogor.
Rabanal, 1951 H.R., H.R. Montalban and D.K. Villaluz. The preparation and management of bangus fishpond nursery in the Philippines. The Philippines Journ. Fish., Vol. I.I, 3-33.
Schuster, 1949 W.H. De vis culture in de Kustivisvijvers op Java. Department van Laubouw En Visserij, Publicatie No. 2 Onderafdeling Binnen Visserij, Jakarta.
Schuster, 1960 W.H. Synopsis of biological data on milkfish Chanos Chanos (Forskal), 1975. F.D./60/54 SAST. 1.22 (2), 001,01 FAO.
SCS/82/CFE/CP-26
by
S.E. Wardoyo, M. Pirzan and Rustami Djajadiredja2
1. INTRODUCTION
The area of tambaks in South Sulawesi has reached 55 583 hectares (Anonymous, 1980), distributed throughout 19 districts. The layout of tambaks of South Sulawesi is varied and was originally constructed in series where the water supply system is also arranged in series.
This situation has changed gradually. Specially supplied canals are now provided and ponds are arranged in parallel system as that each pond can have its water supply tapped individually from the main canal. The pond system is provided with nursery ponds although it is still simple in layout and construction. These nursery ponds are simply constructed in the centre of the grow-out ponds.

Fig. 1 Layout of tambaks of a 25 ha farm owned by a progressive fish farmer at Tupabbiring, Maros
Yield has recently increased up to 1 000 to 2 000 kg/ha/ year due to the use of fertilizers and pesticides. Previous yield was low at approximately 300 to 400 kg/ha/year.
In order to present the typical layout and engineering features of fishponds in South Sulawesi, observations were made on ponds of two privately-owned farms in the Maros District. Both farms are regarded as advanced in layout and progressive in management. These tambaks were reconstructed in 1974 and further improvements were recently made with better layout. The total area of these two farms is 38 ha.
2. LAYOUT AND CONSTRUCTION OF THE TAMBAKS
The layout of the tambaks investigated is based on ponds arranged in a parallel system. Each pond takes its water directly from the drain canal (Figs. 1 and 2).

Fig. 2 Layout of tambaks of a 13 ha. farm owned by a progressive fish farmer in the village of Tupabbiring, Maros
1 Contribution to the FAO UNDP-SCSP Consultation/Seminar on Coastal Fishpond Engineering, Surabaya, Indonesia, 4–12 August, 1982.
2 Staff, Agency for Agricultural Research and Development, Inland Fisheries Research Institute, Bogor, Indonesia.

Fig. 3a Two nursery pond systems owned by 2 progressive fish farmers
Nursery ponds are separately constructed from the growout ponds as indicated in Figs. 3a and 3b. The duration of fry rearing in the nursery pond is about 20 to 30 days.
Most of the tambaks in South Sulawesi, however, are still constructed with ponds in series without the provision of special nursery ponds. Generally, these are only temporarily built simple rectangle-shaped fry ponds in the middle of growout ponds. Recently, hapas are used to allow the fry to adapt to the pond conditions before release in the grow-out ponds.
3. DIKES, GATES AND OTHER CONSTRUCTION
3.1 Dikes
The main dikes of the observed tambaks have, for the main dike, an upper width of 2.5 m, a lower width of 5.0 m, and a height of 1.5 m. For partition dikes, the upper width is 1.0 m, lower width of 4.0 m and a height of 1.5 m.
3.2 Gates
The observed gates are mostly made of iron wood with only two being reinforced concrete.
The main gate has a width of 5.5 m, a height of 2.5 m and a length of 6.0 m. The sides are made of reinforced concrete. At both ends of the gate bamboo screens are provided, fitted through grooves on the sides of the gate. In the middle of the gate wooden slabs are used to control water level and flow.

Fig. 3b
For tapping water from the main canal, secondary gates are used, each has a width of 1.0 m, height of 1.5 m and length of 2.5 m. The gate walls are made of either reinforced cement or iron wood.
4. NURSERY SYSTEM
One layout of nursery ponds consists of two parallel series of ponds where the fry are stocked in the smallest compartments and transferred to progressively larger compartments (Fig. 3a). Since 1981, all nursery ponds are sited in one location, e.g., in pond X (Figs. 1 and 3b), and the old ones are abandoned. The nursing period in the small pond is only 10 days after which a part of the dike is broken to allow the fry to enter the bigger pond for faster growth. The fry remain here for 20 to 30 days. As the fry reach fingerling size, they are directly stocked in the grow-out ponds.
Another nursery method was observed using temporary nursery pond built in the middle of a grow-out pond. After 10 days, the dikes are opened and the fry automatically enters the grow-out pond at a smaller size. Each nursery pond is first prepared prior to the release of fry into it. Preparatory work consists only of draining for several days before the fry are stocked at a rate of 50 fry/m2. Stocking is done in the afternoon during the low temperature period. Gradually, the fry are adapted to the conditions of the water in the pond. Fertilization or feeding is not necessary in the nursery ponds.
5. GROW-OUT SYSTEM
Preparation of the grow-out pond before stocking consists usually of pond draining followed by pest control work. Ponds that cannot be drained are treated only for pests using Thiodan. Depending on the depth of water. Thiodan is applied at dosages of 0.5 to 1.0 l/ha. After pest control fertilization is carried out, both organic and inorganic fertilizers are used including chicken manure at a dosage of 500 kg/ha and TSP 375 kg/ha. Inorganic fertilizers are sometimes used alone. Ponds are fertilized in several applications. The first is done prior to stocking at the amount of 40 kg/ha of urea and 120 kg/ha of TSP. It is then continued 4 to 5 times up to harvest time, with dosages of 45 to 65 kg/ha of TSP at each application. Fertilizers can also be administered only once before stocking. It would appear that higher yield could be obtained by several applications of fertilizers.
6. POND MANAGEMENT AND MAINTENANCE
Tambaks are normally managed by devoting regular attention to the needs of repair, restoring of seepages, deepening of the peripheral canals, and applications of fertilizers and adoption of a pest control methods.
SCS/82/CFE/CP-25
by
M.J. Bandie, D. Tribawono, Iswahjudi and A. Sidik2
1. INTRODUCTION
Indonesia has a total area of brackishwater ponds (tambak) of approximately 182 000 hectares for the culture of the milkfish (Chanos chanos) and penaeid shrimps (Fig. 1). The brackishwater ponds are stocked with the milkfish fry (nener) and shrimp fry (benur) collected from natural waters (Fig. 2).
Brackishwater fishponds in East Java at present cover an area of about 44 500 ha (Fig. 3). During the rainy season, however, some of these areas approach a freshwater state resulting from dilution. This area is about 24.3 percent of the total brackishwater fishponds in Indonesia; while the total production of milkfish for East Java is at 30 800 tons or an average yield of 690 kg/ha/year. This excludes the yield from other organisms.

FIG. 1 MAP OF INDONESIA, SHOWING LOCATION OF EAST JAVA PROVINCE
1 Contribution to the FAO UNDP-SCSP Consultation/Seminar on Coastal Fishpond Engineering. Surabaya, Indonesia, 4-12 August 1982.
2 All staff, Fisheries Service of East Java, Indonesia.

Fig. 2 Resources of milkfish and shrimp fry in East Java
Although most of brackishwater aquaculture in the country is practiced in East Java, the level of aquaculture management is low. It is hoped that with the gradual introduction of new technology to be supported by suitable credit facility and management system, the average income of the operator can be expected to increase annually. Improvement in the brackishwater pond management should emphasize the following aspects:
extension management
2. BRACKISHWATER POND ENGINEERING IN EAST JAVA
At present, there is no record as to when the brackishwater pond culture first started in East Java. However, it is said to have been in existence at least since the 18th century. All brackishwater farms are located in estuarine and mangrove areas along the north coast of East Java. Typical holdings are small, averaging 2.4 to 6.0 ha. The climate of this region is characterized by having a relatively long dry season (7-8 months) followed by a rainy season. Water temperatures remain above 23°C throughout the year. Soil types are typically clay, clay loam and sandy clay in East Java. Water supplies come from tidal waters from river, streams or creek, or directly from the sea. Salinities at these waters may vary widely from 5 to 40 ppt depending upon the distance from the open sea and the season prevailing at the time.

Fig. 3 Area of brackishwater pond and rice-cum-fish culture in East Java
The layout of brackishwater ponds in East Java comprises of two types, viz., the Taman and Porong types (Fig. 4). These have differences as well as certain common features between them.
The main gate is generally located at the most effective point to distribute water to the pond system. The construction of the main gate is simple, and its structure is made of "iron wood" combined with bamboo split or planks. The size of the main gate varies with the size of the pond, ranging from 3 to 4 m in length and 1 to 2 m in width.
The area is enclosed by well-built peripheral dikes. Smaller secondary dikes divide the area into smaller compartments. All dikes are built with manual labour. The width of the top of the dike is from two to two and one-half meters usually equal to the height to be adequate for the tidal range of one to one and one-half meters.
For effective water management and ease of transfer and harvest of the cultured stock, a system of canals and catching pond is provided. The bottom is generally flat but shallow. The catching pond is known as the "jalonan". In the Porong type, the "jalonan" is located directly in front of the main gate whereas in the Taman type, it is located in the centre of the farm (Fig. 4).
Nursery is not carried out using a special pond but in temporary fry enclosures or “ipukan”. Fry are stocked in ipukan for one week, after that by a break at the dike the fry are transferred directly in the rearing pond. The ipukan is usually located in the centre of a rearing pond. Some fishfarmers also use the main canal as ipukan.
Another essential structure is the caretaker's house. Also, recently constructed or renovated fishponds present distinct features such as well-built peripheral and partition dikes laid out in straight patterns, regularly shaped compartments of manageable size and well-situated supply and/or drain canals and main gates to enable independent water management by compartment, and relatively levelled bottoms cleared of tree stumps.

Fig. 4 Taman and Porong layout types of Indonesian fishponds
3. PROBLEMS
Some problems encountered in the brackishwater ponds in East Java are the following:
Especially the pond near the seashore area, frequent seasonal floods can destroy dikes, gates and other costly permanent structures. Erosion usually destroys structures rendering sites unfit for pond farming.
In some places the bottom soil is porous, sometimes causing low fertility to the pond bottoms. During low tides when the pond gates are closed, the retained tidal water tends to leak through the porous soil.
The high rate of sedimentation at the river mouth and canals in the dry season tends to reduce water flow significantly. In this case, insufficient supply of seawater and freshwater during low tides is short, the high evaporation rate during the dry season frequently causes rapid lowering of the water level in the pond. Correspondingly, the salinity will increase to conditions unsuitable for the culture of shrimp.
For most of the time, water level is considerably low because the pond bottom is generally shallow and without peripheral canals. Some fishfarmers need to use pump for water and fish stock management.
The size of a traditional brackishwater pond ranges from 4 to 10 ha per unit. Usually divided in 3 or 4 compartments arranged in series and served by only one main gate to maintain the water level. This makes each pond not operationally independent of one another for water management. The nursery system is not permanent. Fry are stocked directly in the transition pond after initial rearing in small temporary fry compartment located in the centre of the pond.
Lack of funds is the main reason for the substandard development of brackishwater ponds. Availability of credit will be a key element in intensification of the brackishwater ponds. Special credit schemes should be set up for the fishfarmers.
SCS/82/CFE/CP-13
by
S. Akhmad2
1. INTRODUCTION
Though artifically erected, a coastal fishpond is part of the coastal environment. As such intimate relationships exist between the two, thus, it is obvious that the consideration of the layout, design and construction of coastal fishponds should also include a discussion of the various aspects of the surrounding environment which are of importance to the subject. In this paper engineering problems of both fishponds and their surrounding environments are treated. Micro-biotechnical problems are those pertaining to fishponds while macro-biotechnical problems are concerned with the environment.
A host of engineering problems haunt the coastal fishpond industry. Only four of the more pressing problems and their possible solutions are discussed in this paper and submitted for discussion.
1 Contribution to the FAO/UNDP-SCSP Consulation/Seminar on Coastal Fishpond Engineering, Surabaya, Indonesia, 4–12 August 1982.
2 Lecturer, Department of Aquaculture, Faculty of Fisheries, Bogor, Agriculture University (I.P.B.), Bogor. Indonesia.
2. MICRO-BIOTECHNICAL PROBLEMS
2.1 Design and construction of pond sluices
Many coastal fishponds are constructed on coastal swamps or on deltas built by alluvial soil brought down from eroded highlands. A major problem for fishponds constructed on such lands is that of leaking pond sluices due to a lopsided or an even sinking of the sluices into the relatively soft substrate. It is obvious that leaking sluices are a major constraint in irrigating ponds, especially during times of high evaporation and shortages of freshwater and seawater.
People inhabiliting the coastal strip of West Kalimantan use the “laci” bar foundation to prevent their dwellings from sinking into the relatively soft soil of deltas and coastal swamps. It is thought that this technique was initially used by Dutch engineers to construct the palace of the Sultan of West Kalimantan. The palace is still standing today, and the technique is now widely used by the people in the coastal strip of that region.
Soft substrate was also a problem in the construction of sluices for the coastal demonstration ponds of the Fisheries Service of West Kalimantan. However, by adopting the “laci” bar technique, engineers of the Fisheries Service and the Ministry of Public Works were able to design and construct pond sluices which did not sink into the soft substrate. It is by the courtesy of Ir. Kusmiba Kadjad of the Planning and Development Section of the Fisheries Service, that the principles of that technique can be described in this paper.
For greater stability and to prevent rapid rotting, wooden structures on delta and swampy lands are built on 12 × 12 cm piles of iron wood. The main purpose of attaching "laci" bars to these piles is to give the latter a greater supporting surface thereby reducing the pressure of the structural materials on the soft substrate.

Fig. 1 A joint of the “laci” foundation, a,b,c & d, horizontal “laci” bars; e, vertical supporting pile; and f, bolted steel pin
Figs. 1 and 2 show that the “laci” construction consists of two pairs of 6 × 8 cm bars of second grade wood which are horizontally dovetailed to a vertically driven pile between 0.75 and 1.00 m from the lower end of the pile. The lower pair of "laci" bars refers on the bottom of a 0.50 to 0.75 m deep pit. The bars of a "laci" pair run parallel, and the upper pair of bars rests on the lower pair at an angle of 90°. The "laci" bars are between 0.50 and 0.60 m long and are kept in place by bolted steel pins driven through the pile and the bars.

Fig. 2 Details of a “laci” foundation
In constructing the sluice, a 0.50 to 0.75 m deep, 0.50 to 0.60 m wide and 0.50 to 0.60 m long pit is initially dug for each pile. The pile is then driven through the bottom of the pit until the lower pair of "laci" bars rests on the bottom. Finally, the pit is filled up with soil and the sluice is attached to the tops of the piles which just emerge from the filled pits.
The "laci" foundation can be used to support wooden, as well as concrete sluices. Thus, the sluice of the outer-module channel of the aforementioned demonstration pond is made of concrete; however, it has been suggested that it may be more efficient if sluices were built with ferro-cement since this would decrease their weights.
2.2 Design of shrimp pond modules
The milkfish lives in the water column, but shrimps spend a greater part of their life on the bottom of the water. Thus, the well-known type of coastal fishpond modules suggested by the Fisheries Service and used as demonstration ponds may do very well for the rearing of the milkfish but are perhaps less adequate for the rearing of shrimps. This conclusion emerges from the following calculations based on a one-hectare milkfish growing pond equipped with a centrally located pond platform and a five-meter wide peripheral internal pond ditch.
The assumptions taken for the calculations are: that water depths above the pond platform and the bottom of the internal pond ditch are 0.30 and 0.80 m, respectively, that the area of the water surface of the pond is 50 × 200 m; that the angle of the inner slope of the pond dike is 45°; that the horizontal berm adjacent to the inner side of the pond dike has a width of 0.50 m; and that the angle of the slope of the walls of the internal pond ditch is 88°. It follows from these assumptions that the surface of the pond platform would be 1 902 m2 or approximately 84 percent of the available submerged horizontal surface of the pond; whereas the area of the bottom of the internal pond ditch would be 370 m2, or only about 16 percent of the aforementioned surface.
From these calculations, and the assumption that shrimps spend a relatively greater part of their life on the bottom of internal pond ditches which have greater water depths, it follows that to be more effective shrimp ponds should supply greater surfaces for shrimp to live on. Theoretically, one way to do that would be to excavate the entire pond platform so that a pond would be constructed with a uniform water depth of 0.80 m. However, whether or not this would be possible in reality is the question to be answered, considering the problem of depositing the excavated pond platform which would have a volume of approximately 2 419 m3.
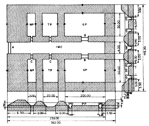
In this consideration, it may be useful to consider the results of a study of Anwar, Akhmad and Kooswardhono (1982) who calculated that, with a leveling depth of 0.10 m, the amount of soil excavated to construct the nursery, transition and growing ponds of a 2.72 ha milkfish pond module would have a theoretical volume of 5 043 m3 (Fig. 3). The excavated soil was assumed to be used for the construction of the dikes of the module.
Based on the assumption that the primary lateral and caudal dikes of the module would be shared by the neighbouring modules, the authors then took the assumption that the width of the top, the height and the width of the base of those dikes would be, respectively, 1.50 m, 2.00 m and 3.50 m. The angle of their inner slopes was assumed to be 45°. The measurements of the primary frontal dikes are similar, except for the width of their base which is 6.50 m because the angle of their outer slope was assumed to be 30°.
The measurements of the secondary inter-module channel dikes and the tertiary pond dikes were assumed to be 1.00 m, 1.00 m and 3.00 m, respectively, the width of the top, the height and the width of the base of the dikes. The angle of the slope of the dikes was assumed to be 45°.

Fig. 3 Artist's concept of a 2.72 ha. onshore marine pond module
LEGEND:
| NP - Nursery pond | IMC - Internal module canal |
| TP - Transition pond | A - Main sluice gate |
| GP - Growing pond | B - Secondary sluice |
| IPD - Internal pond ditch | C - Tertiary sluice |
| PP - Pond platform |
Based on these assumptions, it was then calculated that the amount of soil necessary for the construction of the dikes of the module theoretically would be 5 074 m3. That amount, less a shortage of about 31 m3, would be provided by the aforementioned volume of excavated soil. It was also assumed that the shortage could be easily supplied by sediment which continuously settles on the bottom of the internal pond ditch. Thus, the calculations show that no excess soil problems exist if milkfish ponds are dug, since the excavated soil could be used to construct the pond dikes.
Sediment is incessantly deposited in the coastal ponds of watershed basins with high land erosion problems. Thus, Javanese coastal pond operators annually have to remove a silt layer of approximately 0.30 m from their internal pond ditches to maintain water depths (Amythas, 1980). The farmers do not resent the work because it is this silt which makes the existence of coastal ponds possible and which is responsible for the fertility of pond platforms. However, the problem is that approximately 700 m3 of silt has to be removed annually from a one-hectare milkfish pond, which is then deposited on top of the pond dikes. As a consequence, the dikes become progressively steeper and their tops progressively narrower with the years.
The submerged productive area of a 2.72 ha milkfish pond module is 2.22 ha and consists of the water surfaces of two nursery ponds, two transition ponds and two growing ponds. The supporting, non-productive area, consisting of dikes and the inter-module channel is 18.38 percent or nearly one-fifth of the total surface of the pond module. Thus, depositing removed silt on areas other than the tops of the dikes would increase the non-productive surface area of the pond module.
From the foregoing, it is obvious that farmers operating coastal ponds in watershed basins with severe highland erosion, have the problem of depositing sediment without decreasing the productive areas of their ponds. Thus, it should also be obvious that attempts to improve ponds by excavating pond platforms would severely augment the problem of finding a place to deposit removed soil. A solution for this is suggested in paragraph 2.2 of this paper.
3. MACRO-BIOTECHNICAL PROBLEMS
The coastal pond module recommended by the Fisheries Service for rearing the milkfish or milkfish in combination with shrimp (Fisheries Service of East Java, 1977) appears to enable pond operators to increase their pond yields, considering that the recommended module greatly improves the irrigation of the ponds. However, attempts to improved the production capacities of individual ponds may not reach the desired results if not conducted — simultaneously with an improvement of the surroundings. This is especially true if there are irrigation problems in the coastal strip, particularly those related to the control of freshwater floods, and those related to the supply of seawater to the ponds.
Until the recent past, the Ministry of Public Works lacked experience and were not involved in the problems of irrigating coastal ponds. Its interest in the past was mainly focused on irrigating inland paddy fields. However, the situation appears to be changing for the better: in the first half of 1982 the Ministry showed interest in studying the irrigation problems of coastal ponds on the north coast of West Java and in the coastal strips of Lombok, Sumbawa, Dompu and Bima. The following two suggestions proposed in this paper are related to the macro-irrigation of coastal pond complexes, and may need the aid of the Ministry of Public Works to be realized.
3.1 Macro-layout of coastal pond modules
Seasonal freshwater floods are recurring nightmares for farmers whose ponds are located in the coastal strips of watershed basins with upland erosion problems. Since it takes time to correct past errors in the soil management of high lands, it may be important to provide the coastal pond industry with a defensive mechanism against the regularly occuring freshwater floods.
The well-known “polder” system, created by the Dutch, is essentially a dike system protecting low-lying coastal farms against invasion by the sea. At present, some kind of a "polder" system has been built by the Ministry of Public Works and several Dutch engineers in Lampung, South Sumatra. These are to protect freshwater ponds in the coastal strip against the sea. In this paper, the reverse is suggested: a "polder" system to protect the coastal ponds against freshwater floods.
In essence, the suggested coastal pond “polder” system would consists of a complex of coastal pond modules which is protected by dikes on its three landward boundaries. The seaward boundary is bare of “polder” dikes since marine floods are rare. The “polder” dikes are equipped with flood sluices which allow the entrance of seawater and freshwater into the "polder" in normal times (Fig. 4).
The interesting aspect of such “polder” system is that it supplies pond operators with the area to deposit surplus excavated pond soil and sediment. Thus, the "polder" dikes would be built from surplus pond soil excavated by farmers who want to deepen and broaden their internal ponds. Furthermore, surplus silt incessantly dug up from internal pond ditches can be deposited on the "polder" dikes to broaden and heighten these protective structures. Technical guidance in constructing the “polder” dikes will be necessary, and this could be provided by engineers of the Ministry of Public Works.
3.2 Design and layout of tidal creek inlets
Many pond operators on the north coast of Java do not draw their water directly from the sea edge but do it indirectly from tidal creeks. Their problem is that the inlet of these creeks frequently clog up during the dry season. Shortages of seawater may have disastrous result in coastal ponds. especially if combined with high evaporation and shortages of freshwater.

Fig. 4 Diagrammatic layout of a coastal pond “polder” complex
The Faculty of Agriculture Technology and Mechanization, Bogor Agriculture University suggested that inlets in the form of a double funnel would prevent them from clogging up (Fig. 5A). The narrow part of the double funnels would be where clogging usually occurs; thus, narrowing of water-way would induce an increase in the speed of the current. which in its turn would prevent the settling down of, or sweep away the settled down sediments. The double-funnel shaped inlet should be provided with adequate flood drain in case of high water (Fig. 5B).
One problem of double-funnel shaped inlets is that such creeks are often used by fishermen's boats. In cases like that, it is suggested that such creeks should be equipped with man-made outlet arms which would have the double-funnel shaped inlet. This would then prevent the obstruction of water traffic on the one hand, and on the other insures the continuous supply of seawater even though the original creek inlet would be clogged up (Fig. 5C).
LITRATURE CITED
Amythas, 1980 Experts and Associates. General Consultancy Services, Ltd. Tambak Irrigation Projects in West. Central and East Java. Six volumes. Directorate General of Fisheries, Jakarta, Indonesia.
Anwar, A., S. Akhmad and M. Kooswardhono. 1982 Development concept study for the coastal strip areas of the districts of Bekasi, Karawang and Subang. Jatiluhur Irrigation Project, Directorate of Irrigation. Purwakarta, Indonesia.
Fisheries Service of the Province of East Java. 1977 Shrimp and milkfish culture techniques for onshore marine ponds. In Indonesian, Fisheries Service of the Province of East Java, Surabaya, Indonesia.

Fig. 5 A double funnel-shaped inlet
SCS/82/CFE/CP-19
by
V.P. Mendis2
1. INTRODUCTION
Sri Lanka is an island in the Indian Ocean southeast of India situated between 6–10°N latitude and 80–82°E longitude. The total land area is 65 610 km2 with a coastline of 1 200 km. Her continental shelf down to 180 m deep, is estimated at an area of 30 000 km2. The 1982 population is at 14.2 million.
Monsoon seasons influencing fisheries in Sri Lanka are the southwest and northeast monsoons. The former lasts from May to September, causing strong winds and heavy rains in the west coast. The latter prevails from November to February causing also strong winds and heavy rains but to the east coast. The country has a tropical climate. Fishing is a major occupation of the people who live along the coast.
Inland fisheries are maintained in man-made tanks and villus or flood lakes including reservoirs, comprising a total area of about 140 000 hectares. There are no natural lakes in the island. Irrigation tanks or reservoirs numbering about 10 000 were built in ancient times dating back 2 000 years. Some of the larger tanks are fed by rivers and streams through intricate canal systems. The small ones are rain-fed and go dry during dry weather. Flood lakes are large flat terrain bordering major rivers which get filled when the rivers are in spate. Some of them go dry while a few are perennial.
Brackishwater fisheries are conducted in river estuaries, coastal lagoons, tidal flats, mangrove swamps totalling an area of approximately 120 000 ha. Of this area of brackish-waters, 80 000 ha are deep lagoons and estuaries and 40 000 ha are shallow lagoons and tidal flats. Situated in the coastal belt, these lagoons are ideal sanctuaries for many species of marine life, as well as nursery grounds for their offsprings. The major lagoons in Sri Lanka are the Negombo, Puttalam, Batticaloa, Koggala, Chilaw, Kalpitiya and Jaffna lagoons.
With a view to developing inland fisheries and to popularizing pondfish culture, the State has set up nine inland fisheries stations for the purpose of the production of fish seeds for stocking large freshwater bodies and for distribution to those interested in pondfish culture. Experimental work on the economics of pondfish in the different regions of the country is also carried out at these stations.
These fisheries stations comprise 7 freshwater and 2 brackishwater fisheries station. The former is situated mainly inland; whereas the latter two are constructed in coastal areas, both near lagoons.
Although both brackishwater fisheries stations are situated in coastal areas near lagoons, the design and methods of constructing and also the method of water supply, are different in each case.
1 Contribution to the FAO UNDP-SCSP Consultation Seminar on Coastal Fishpond Engineering, Surabaya, Indonesia, 4–12 August 1982.
2 Technical Officer, Inland Fisheries Division Ministry of Fisheries. P.O. Box 1707. Crow Island. Mattakuliya, Colombo 15. Sri Lanka.
2. PITIPANA BRACKISHWATER FISHERIES STATION
The Pitipana Brackishwater Station is the biggest and the oldest. This was set up first in the late 1950's in the village of Pitipana, close to the town of Negombo, with a total land area of 10 ha. The Station has 15 mudponds built on a land of 3.6 ha and in addition 9 more concrete ponds. This fisheries station is sited near the east bank of the Negombo Lagoon. The layout plan of this station is shown in Fig. 1.

Fig. 1 Pitipana Brackishwater Station-layout plan of mud ponds
2.1 Design and construction of the 15 mudponds
The ponds were constructed by excavating the ground to over one meter deep from the ground level, and the excavated material was used to construct bunds. This bund-constructed soil has sandy clay characteristics. The peripheral bund separates the lagoon and ponds. A cross-section of this bund is shown in Fig. 2. This bund is of great importance as it helps to protect the ponds from high winds, strong wave action in the lagoon and also floods. To construct the 15 ponds, secondary bunds were built between primary bunds. These secondary bunds were designed in the same way as the peripheral bunds. The upper width of these bunds are not so wide as the peripheral bunds. The side slope of these two bunds is 1:1 (horizontal: vertical measurement, Fig. 2). Since the parts are the outside and inside slopes and the crown, these should be protected against erosion by turfing.

Fig. 2 Cross-section of a peripheral bund
2.2 Method of water supply

Fig. 3 Cross-section of water canal and bordering bunds
Water is supplied to the Pitipana Station by the canal (Fig. 3). To ensure adequate water supply, a main water-gate is provided where the canal joins the lagoon. A detailed plan of this gate is shown in Fig. 4. The same method is used, and small gates has been built, at the entrance of each and every pond to provide water from the canal to ponds. Fig. 5 shows a detailed diagram of the sluices.

Fig. 4 Details of the main sluice gate at the Pitipana Brackishwater Station.

Fig. 5 Details of the sluice gate at the Pitipana Station
To properly plan the methods of supply and drainage of water, data on the pattern of tidal differences have also been considered. The range of water level between the minimum and maximum tides is approximately 3 ft (90 cm). Since the bottom level of the ponds is about 4 ft (122 cm) below the ground level, water does not completly drain during low tide. The remaining water has thus to be pumped out using a 5 cm diesel pump, which requires 2 days to empty the pond.
2.3 Disadvantages and problems at Pitipana Brackish-water Fisheries Station
2.3.1 Sand erosion takes place on the lagoon side of the primary bunds. The main reason for this type of erosion is the waves caused by the usage of motor boats. A concrete fence is under construction to protect the primary bunds from erosion.
2.3.2 The sides of the secondary bunds also face the erosion problem. Although grassing is successful in certain areas, it is not at all successful due to the burrowing of crabs. This seriously affects the material strength of the bund, which is then proved to the adverse effects of other forces of erosion. Because of this, the authorities have to desilt the pond every six months.
2.3.3 The collection of sand at the places where the canal falls to the lagoon is also caused by waves generated by passing motor boats. As this threatens the necessary water supply, again the authorities have to clear the sand every 3 months.
2.3.4 Sand erosion takes place also on the sides of the canal. This raises the bottom of the canal to a higher level than the bottom level of the ponds. This causes difficulty of draining the water of the ponds.
2.3.5 Although generally the construction cost is the lowest for the common canal used for both the inflow and outflow of tidal waters, there are many disadvantages including:
water quality in the ponds cannot be controlled due to insufficient water circulation in them.
3. PAMBALA BRACKISHWATER FISHERIES STATION
Consisting of 20 cement ponds and 10 mudponds, this station is situated near the Chilaw Lagoon. The soil at the pond site is essentially sandy.
Each pond is 6-8 ft (1.8–2.4 m) below the ground level. Therefore, there are no peripheral or secondary bunds around or between the ponds. Fig. 6 shows the layout plan of this station.

Fig. 6 Layout of the ponds of Pambala Brackishwater Station
On the sides of these ponds, up to 4 ft (1.2 m) from the bottom is paved with rubble. The slope of pond side is 1:1. There is a bund around the pond with water filled to this height, with the remaining 2 ft (0.6 m) on the upper sides covered with grass with slope of 1:1 (Fig. 7).

Fig. 7 Cross-section of a pond at the pambala Station
3.1 Method of water supply
A canal from the lagoon with a breadth of 10 ft (3 m) and a depth of 6 ft (1.8 m) was built to supply water to the mudponds. In this canal, the sides are very weak due to sandy conditions. Hora logs of a diameter of 5 ft (1.7 m) and a length of 8 ft (2.4 m) were buried in 5 ft (1.5 m) centres. Hora is a wood which can remain for a long time in water without getting decayed.
Between these logs 1.25" × 8" (3 × 20 cm) hora planks were fixed. A 6" (15 cm) rubble is also paved on the banks of the canal. A cross-section of this canal is shown in Fig. 8.

Fig. 8 Cross-section of canal showing reinforcement to the water-supply canal and its upper bunds
From the main canal, water is fed into 2 ft (61 cm) main hume pipes which run between the ponds. This can be seen in the pond layout plan. From the mainline, water is distributed to the mudponds through distribution sumps. Cross-section of a sump can be seen in Fig. 9. From the distribution sump a 9" (23 cm) hume pipe is provided to supply water to each pond consisting of a sluice gate to control water coming in and out. In these ponds, there are no separate inlets and outlets. Both are done by same line. This creates more problems in controlling water in the pond, which has earlier been mentioned in this paper.
One of the disadvantages of this system is the difficulty of cleaning the underground pipes, in case of blockage inside them. This method cannot therefore, be considered a practical one.
3.2 Disadvantages and problems
The supply of water to and drainage of the water from these ponds have become a difficult problem to the management. Although suitable steps have been taken after considering the pattern of tidal differences in this area, these have not met with much success. As a result, it is necessary to use water pumps to drain out water from the ponds. Anicuts to control the flow of water to and from the ponds have also been installed.

Fig. 9 Cross-section of a water distribution sump
As the soil is high in acidity, appropriate measures must be taken to suitably condition the soil for pond culture. Before this area was developed for the purpose of pond culture, the inhabitants had buried large quantities of coconut husks in the soil. This has resulted in the soil becoming acidic.
3.3 Future development plans
In addition to the existing brackishwater fisheries stations there are several other traditional fishing areas with considerable potential for pond culture. These are the coastal areas of Batticaloa-Trincomalee in the east, Negombo in the west, Kalpitiya-Puttalam in the northwest, and Mannar in the north.
Of these, Mannar is of great importance as a large stock of milkfish fry enters this area annually. If the location is found suitable, coastal fishpond culture should be developed in this area. This is at present being considered.
This area can also be developed for shrimp culture. Shrimps are very popular and in great demand from both the local people and tourists, presently fetching Rs1 30–40/lb (Rs 66–88/kg) in the open market and Rs 60–70 (Rs 132–154/kg) in tourist hotels. Sri Lanka has also made a beginning in the export of shrimp. Here is an area for this industry to develop and make a substantial contribution to the earnings of much-needed foreign exchange.
Increasing emphasis on shrimp culture research is being given by the Inland Fisheries Division of the Ministry of Fisheries as there is still room for expansion in this direction. In this consideration, more assistance from countries in the Asian region which have already made much headway will be required. Recently, a group of Indian scientists researched at the Pitipana Brackishwater Station and reported that conditions are favourable, but due to the lack of resources progress has been slow.
Under the circumstances where most of the available resources must of necessity be devoted to development of agriculture in order to achieve self-sufficiency in staple food grains, the State is unable to spend as much as it would wish at present in coastal aquaculture development. The contribution of the private sector is insufficient. However, it is encouraging to note that the government is aware of the needs and is doing its best to meet them within the available resources.
In conclusion, although in Sri Lanka significant steps have been taken in the development of coastal aquaculture, these are still confined to a beginning phase. The lack of the basic resources is the present obstacle confronting technological advancements. The needed resources for this purpose, include qualified personnel, and the required technological and financial inputs. Bilateral and multilateral assistance in this direction will be required.
1 Rs or Sri Lankan rupees 20.77 = US$1.