
La présente notice a pour objet de présenter les nouvelles dispositions qu'il est proposé de retenir pour assurer la permanence de la communication entre la mer Mediterranée et la lagune de NADOR par fixation de l'ouverture actuellement existante à travers le lido.
Ces nouvelles dispositions résultent d'un “allègement” des dispositions primitivement proposées :
- A l'origine, par un AVANT PROJET SOMMAIRE (A.P.S) présenté par Rapport du 12 novembre 1982, établi à la demande de la FAO,
- ultérieurement, par un AVANT PROJET DETAILLE (A.P.D) en date d'août 1983, puis par un PROJET D'EXECUTION (P. Ex) en date de mars 1984, tous deux établis par le Bureau d'études - LABORATORIE D'HYDRAULIQUE : HIDROTECNICA PORTUGUESA représenté au Maroc par le Bureau d'Etudes HIDROTECNICA - MAROC.
Sont évoquées ci-après les dispositions primitives précédemment adoptées et les nouvelles dispositions proposées.
1. AVANT PROJET SOMMAIRE (A.P.S) FAO de novembre 1982
Le sous-dossier B qui accompagne la présente notice contient sous le № 1 :
- Le PLAN DE PRINCIPE
- Le PLAN GENERAL
des ouvrages de fixation proposés à l'origine pour la fixation de l'ouverture existante.
Il s'agit d'une protection classique constituée par 2 digues convergentes à recouvrement :
- digue Nord-Ouest, recouverte, d'environ 350 mètres de longueur atteignant l'isobathe (-3,00)
- digue Sud-Est, recouvrante, d'environ 710 mètres de longueur atteignant l'isobathe (-5,00),
les isobathes ci-dessus ayant été évaluées par extrapolation sur un lever bathymétrique partiel effectué de mars à Juillet 1982 par le LABORATOIRE PUBLIC D'ESSAIS ET D'ETUDES (L.P.E.E) de CASABLANCA.
L'importance donnée aux ouvrages résulte du triple rôle que ceux-ci sont destinés à jouer :
- Fixation définitive de l'ouverture
- Protection totale contre l'ensablement de la passe
- Atténuation quasi-totale de l'agitation dans la passe et ce. comptetenu, du sens du transport littoral sédimentologique résultant, décelé, SE-NO dans le cas d'espèce.
2. PROJET D'EXECUTION (P. Ex) HP/HM de mars 1984
Le sous-dossier B qui accompagne la présente notice contient sous le № 2 :
- le PLAN D'IMPLANTATION GENERALE des OUVRAGES (Pièce 5),
- le PLAN GENERAL DE LA JETEE SUD-EST et COUPES-TYPES (Pièce 6)
- le PLAN GENERAL DE LA JETEE NORD OUEST et COUPES-TYPES (Pièce 7),
ouvrages finalement proposés par le BUREAU D'ETUDES après réalisation :
- d'une étude sur modèle mathématique des caractéristiques hydrauliques à donner à l'ouverture,
- d'une étude sur modèle réduit physique de la structure des ouvrages de protection à installer au droit de la passe.
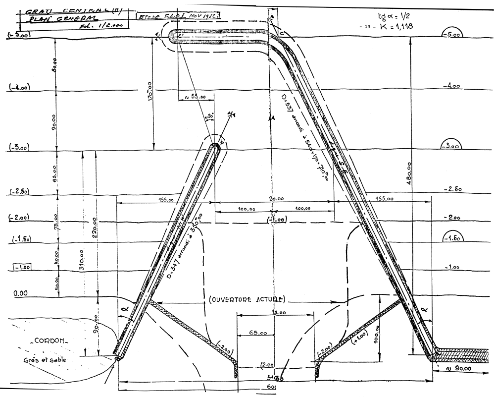
Ce projet retient le principe de la fixation ressortant de l'AVANT PROJET SOMMAIRE évoqué ci-dessus au paragraphe 1 et propose une protection similaire comportant également 2 digues convergentes à recouvrement :
- digue Nord-Ouest, recouverte, d'environ 370 mètres de longueur atteignant l'isobathe (- 2,00)
- digue Sud-Est, recouvrante, d'environ 657 mètres de longueur atteignant l'isobathe (- 5,00).
Les longueurs adoptées découlent de la position des isobathes relevées par lever bathymétrique réalisé en juin 1983 et sur lequel apparaît un remaniement important des petits fonds devant l'ouverture existante comportant :
- un recul notable de la laisse (0,00),
- une avance notable de l'isobathe (- 1,00), sensible de l'isobathe (-2,00), légère de l'isobathe (- 3,00).
Cette modification des fonds a pour origine une érosion importante du rivage de part et d'autre de l'ouverture, érosion qui conduit à l'engraissement des petits fonds marins évoqués ci-dessus par une partie des sables arrachés à la plage, l'autre partie de ces sables étant transportée par le courant lors du flux à l'intérieur de la lagune pour constituer des flèches sableuses en progression lente mais constante.
L'évolution ci-dessus évoquée apparaît nettement sur :
- la pièce 3 du sous-dossier B joint :
Lever topohydrographique de la zone de l'embouchure (1983)
- la photographie aérienne C jointe, prise dans l'axe de l'ouverture de la mer, le 03.05.87
- la photographie aérienne qui orne le dossier I, prise de trois quarts le même jour et qui met particulièrement en valeur l'ensablement de la passe côté lagune et la menace que fait peser cet ensablement intérieur sur la pérennité de l'ouverture, les overtures précédentes s'étant petit à petit obturées dans les mêmes conditions.
3. PROPOSITION NOUVELLE
Le sous-dossier B qui accompagne le présente Notice contient sous № 3 le fond de plan bathymétrique dressé à la suite d'un lever effectué en juin 1983 sur lequel ont été portées les dispositions proposées pour les ouvrages de protection de l'ouverture tels prévus par le PROJET D'EXECUTION évoqué au paragraphe 3 ci dessus.
Sur ce même fond de plan ont été portées les nouvelles dispositions proposées par la fixation de l'ouverture dans le cadre d'une SOLUTION ALLEGEE prévoyant :
- une digue Nord-Ouest d'environ 360 mètres de longueur atteignant l'isobathe (- 2,00) actuelle, voisine de l'isobathe (- 3,00) primitive, identique (à 10 mètres de longueur près) à la digue du PROJET D'EXECUTION,
- une digue Sud-Est d'environ 420 mètres de longueur arrêtée au niveau des fonds de l'ordre de (- 2,50) , correspondant au (- 3,00) primitif, plus courte que la digue du PROJET D'EXECUTION.
L'implantation du dispositif de protection a été légèrement translatée vers le Nord-Ouest de façon à ce que ce dispositif soit “centré” sur l'ouverture actuelle utilisée suivant sa situation actuelle alors que le PROJET D'EXECUTION HP/HM prévoit le déplacement de cette ouverture vers Sud-Est.
Le raccourcissement de la digue Sud-Est d'environ 240 mètres entre (-5,00) et (- 2,50) actuel (soit (- 3,00) primitif) est acceptable parce que le transport littoral sédimentologique résultant de sens Sud-Est/Nord-Ouest est finalement peu important ce que e été confirmé par le laboratoire auteur du PROJET D'EXECUTION et il en résulte que la longueur réduite de cette digue est encore suffisante pour éviter un débordement notable de celle-ci par les sables. De toutes façons, si par tempête prolongée un tel débordement se manifestait, il ne pourrait qu'être peu fréquent et modeste, ne nécessitant que des interventions de dragage espacées et modestes, interventions accidentelles qu'il convient néanmoins de prévoir.
En tout état de cause la SOLUTION ALLEGEE proposée a été étudiée de telle sorte qu'elle ne compromette en rien la SOLUTION PRIMITIVE, la digue Sud-Est pouvant à tout moment être prolongée, s'il s'avérait, ce qui est peu probable, que le débordement ci-dessus évoqué se manifestat à une cadence renouvelée et avec une certaine importance.
A noter que l'installation des digues va stabiliser le littoral au droit de l'ouverture, enrayant ainsi le transport de sable sur les petits fonds d'une part et à l'intérieur de la lagune d'autre part. Cette stabilisation va donc provoquer :
- côté mer, une régularisation progresse des isobathes déformées de part et d'autre de la protection, chacune de ces isobathes ayant tendance à se rapprocher de sa position d'origine dans le cadre d'un nouvel équilibre de la pente transversale de la plage,
- côté lagune, un arrêt de la progression des flèches sableuses donc de l'engraissement progressif des fonds actuellement constaté.
Le dragage à (- 2,00) d'un chenal entre digues de la passe, ainsi que de la zone située au débouché de cette passe dans la lagune selon dispositions de la pièce № 3 du sous-dossier B, est suffisant pour les besoins en eau marine des exploitations ostréicoles et piscicoles prévues dans cette lagune sous réserve de donner au chenal et à la passe la largeur préconisée par HP/HM à la suite de l'étude sur modèle mathématique effectué, à savoir 140 mètres.
A noter également que la structure des digues à retenir est celle qui a été préconisée dans le PROJET D'EXECUTION par HP/HM et qui résulte de l'essai réalisé sur MODELE REDUIT, et il convient à cet égard de se reporter aux pièces № 6 et № 7 du dossier de ce projet.
Cette structure est rappelée par les pièces 2.2 et 2.3 du sous-dossier B qui accompagne la présente Notice.
Il est rappelé également que la protection des 2 musoirs devra être comme prévu dans ce PROJET, renforcée par tetrapodes de 4 m3 comme préconisé par HP/HM.
Enfin des précautions sont à prendre pour asseoir les digues et plus particulièrement le digue Nord-Est à établir en aval du transit littoral sédimentologique pour tenir compte de la rectification prévisible des isobathes de (-1,00) à (-3,00) évoquée ci-dessus, rectification qui va se traduire par un approfondissement des fonds à proximité des digues, côté extérieur après établissement des ouvrages.
1.1. PLAN DE PRINCIPE (Grau Central A) - 1/5 000
1.2. PLAN GENERAL (Grau Central A) - 1/2 000


2.1. IMPLANTATION GENERALE DES OUVRAGES (Pièce № 5)
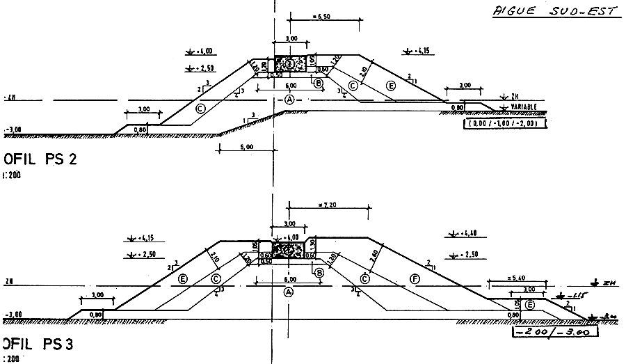
2.2. JETER SUD-EST (Pièce № 6) - COUPLES-TYPES
2.3. JETEE NORD-OUEST (Pièce № 7) - COUPES-TYPES
2 - 1
5


2 - 2
6

A - TOUT-VENANT 0 – 1500 kgf
B - TOUT-VENANT SELECTIONNE 1 – 200 kgf
C - ENROCHEMENTS 0.2 – 0.5 tf
D - ENROCHEMENTS 0.5 – 1.0 tf
E - ENROCHEMENTS 1.0 – 3.0 tf
F - ENROCHEMENTS 3.0 – 5.0 tf

2 - 3
7

A - TOUT - VENANT 0 – 1500 kgf
B - TOUT VENANT SELECTIONNE 1 – 200 kgf
C - ENROCHEMENTS 0,2 – 0,5 tf
E - ENROCHEMENTS 1,0 – 3,0 tf
F - ENROCHEMENTS 3,0 – 5.0 tf

| - 3 - | ||
| PROPOSITION | ||
| 2 |


Photographie prise le 03.05.1987
