10. ESTRUCTURAS DE SALIDA DEL ESTANQUE

10.0 Estructuras de salida

1. Las estructuras de salida se construyen por dos razones principales:

2. Además de estas dos funciones principales, una buena salida debería reunir, en la medida de lo posible, las siguientes condiciones:

3. En la mayor parte de los casos, las salidas tienen tres elementos principales:

4. Las salidas se pueden construir de diversas maneras, y con diferentes materiales, como bambú, madera, ladrillos, bloques de cemento y hormigón. Se pueden distinguir cuatro tipos principales, de los que nos ocuparemos sucesivamente:

5. En la siguiente sección se examinan los principios básicos de diseño, y en particular las cuestiones relacionadas con los pozos de sedimentación, tuberías y rebosaderos.


10.1 Puntos importantes en el diseño de las salidas

1. Al diseñar y construir una estructura de salida, se prestará especial atención a los siguientes puntos:

(a) Prevea una capacidad de descarga de agua lo bastante grande para que el estanque se pueda llenar en un plazo razonable, que iría desde unas horas en un estanque pequeño a uno o dos días en un estanque grande. (Para seleccionar el tamaño indicado de las tuberías, véase más adelante en está misma sección.)

(b) La elevación del fondo de la estructura de salida deberá ser lo bastante baja para garantizar el vaciado completo del estanque. Para ello:

(c) Diseñe su longitud total de manera que el agua descargue lejos del pie de muro exterior del dique para evitar los daños que podría causar la erosión.

(d) En un estanque de presa, la salida deberá construirse lejos del cauce de la corriente, si es posible, y su nivel deberá ser más bajo que el punto más bajo del fondo del estanque

(e) La salida deberá construirse antes o inmedíatamente después del comienzo de la construcción del dique, según el tipo de estanque (véase Construcción, Sección 12.6)

(f) Si la estructura de salida es pesada, sitúela siempre sobre suelo muy bien compactado (véase Construcción, Sección 6.2). Quizá tenga que reforzarla también con un pilotaje sencillo.

(g) Si hay un tubo de salida que atraviesa el dique, conviene construir siempre una abrazadera de hormigón para evitar las filtraciones:

(h) Cuando construya el dique por encima de los tubos, compacte bien la tierra alrededor de éstos

(i) Recuerde que los tubos pequeños se pueden bloquear fácilmente, especialmente dentro del estanque. Por ello:

Nota: Procure uniformar el tipo de salida utilizado en la explotación piscícola, para hacer más fácil y económica su utilización.

2. Como guía en la selección del tipo adecuado de salida, consulte et Cuadro 46. Deberá también tener en cuenta cuánto puede invertir y que tipos de materiales puede adquirir localmente.


COMO HACER UN COLLARIN DE HORMIGÓN Y DONDE INSTALARLO

 

Dimensiones del collarín de hormigón

Construcción de un encofrado de madera para moldear
el hormigón alrededor del tubo

     
Llenar el encofrado con un mezcla hecha con una parte de cemento, dos partes de arena y algo de agua

Colocar el tubo en el encofrado
 

Retirar el encofrado cúando el hormigón esté completamente seco


CUADRO 46
Características de varias salidas de estanques

Sección 10.2; Sección 10.3; Sección 10.4; Sección 10.5


Dimensiones de los tubos de salida

3. El diámetro interíor de los tubos de salida determinará la capacidad de descarga de agua de la estructura de salida.

4. Elija las dimensiones y la calidad más indicadas para los tubos que va a utilizar, teniendo en cuenta el tamaño del estanque (véase Cuadro 47) y de los tubos:

 

CUADRO 47
Dimensiones de los tubos de salida para estanques de derivación

Tamaño del estanque(m2)
Diámetro interior del tubo (cm)
menos de 100
5-7.5*
100-200
7.5*-10
200-400
10-15
400-1000
15-20
1000-2000
20-25
2000-5000
25-30
más de 5000
40 o más

* No se aplica a los desaguaderos con tubos de 10 cm de diámetro por lo menos (Sección 11.7) 

5. La capacidad de conducción de agua de los tubos elegidos se puede estimar consultando el Gráfico 1, Cuadros 13 y 14, o mediante fórmulas matemáticas (véase Sección 3.8).

Nota: En los estanques de presa alimentados directamente por una corriente, quizá se necesiten tubos más anchos de lo normal si el exceso de agua de entrada se debe descargar continuamente a través de la salida del estanque. En la mayor parte de los casos, será más seguro y más económico construir una estructura de desbordamiento lateral (Secciones 11.3 y 11.4).

Colocación y fijación de los tubos de salida

6. En general, en suelos estables con diques debidamente construidos y tuberías pequeñas, la única precaución que hay que tornar es cerciorarse de que las zanjas donde van los tubos sean de suelo uniforme y que los tubos no sufran daños.

7. Cuando se trata de tuberías más largas y más anchas, como las utilizadas en los desaguaderos, quizá se requiera algún sistema de fijación o cimentación .Para más información sobre los desaguaderos, véase la Sección 10.5.

Estructuras adícionales de rebosamiento

8. Por razones de seguridad, deberá siempre procurar que el nivel de agua del estanque no suba por encima del nivel máximo previsto ni se desborde por encima de los posibles diques existentes (véase la Sección 11.1sobre la descarga del exceso de agua). Esta circunstancia podría no sólo provocar la pérdida de la mayor parte de los peces sino también obligar a efectuar importantes obras de reparación, antes de poder utilizar el estanque de nuevo.

9. En un estanque de desviación, donde la mayor parte del exceso de agua de entrada se descarga en la estructura de desviación de entrada, los sistemas de salida, por ejemplo una tubería vertical abierta, un desaguadero o una compuerta, deben descargar automáticamente todo exceso de agua. Pero habrá que comprobar repetidamente que las rejillas estén todas limpias.

10. Cuando se trata de un estanque de presa alimentado directamente por una corriente, necesitará sin embargo medidas adicionales de seguridad, como un a aliviadero mecánico para la descarga continua del exceso de agua y, quizá, un aliviadero adicional de seguridad para la descarga ocasional del agua procedente de crecidas (véanse las Secciones 11.3 y 11.4, donde se trata de los rebosaderos de tubos y de los aliviaderos mecánicos).

11. Si el estanque no tiene estructura de salida o la que tiene no regula el nivel del agua (una tubería cerrada, por ejemplo), necesitará sin duda una estructura de protección para descargar ocasionalmente el exceso de agua (Capítulo 11).

10.2 Salidas sencillas para estanques pequeños

Una abertura en el dique

1. Cuando se trata de estanques muy pequeños, para la recogida de los peces basta efectuar directamente una abertura en el dique en uno de los puntos más profundos del estanque. Cuando haya que Ilenarlo de nuevo, se cierra la abertura. En tal caso:

2. Si, por alguna razón, no puede construir una estructura de desagüe en el estanque, puede limitar los daños del dique de la siguiente manera:

(a) No haga el estanque demasiado profundo, y practique la abertura en diversas etapas, vaciando primero los niveles superiores de agua.

(b) Al evacuar el agua, utilice un trozo de lona.

(c) Al construir el dique, incluya dos hileras de fuertes estacas de madera. Cierre el espacio intermedio compactando cuidadosamente el suelo arcilloso basta el nivel máximo del agua. Proteja la parte superior de este espacio intermedio con piedras o grava, de manera que el posible exceso de agua pueda desbordarse sin provocar daños. Cada vez que vacíe el estanque, abra el espacio intermedio entre dos hileras de estacas y vuelva a protegerlo antes de llenar el estanque de agua.

 
     
 

Un sifón en la salida del estanque

3. Los estanques pequeños se pueden drenar parcial o totalmente por medio de un sifón (Sección 8.9). Una de las limitaciones de este método es que la salida del sifón debe estar al llenos 20 cm por debajo del nivel al que se quiere drenar.

4. La longitud total del sifón deberá ser al llenos igual a la parte mojada del dique, más la anchura de la parte superíor del mismo, más el lado seco, más 30 cm. El diámetro del sifón no debería superar los 2 o 3 cm, para que resulte más fácil ponerlo en funcionamiento.

 

5. Para que el sifón comience a funcionar, solicite la ayuda de otra persona y actúe como sigue:

(a) Pida a la otra persona que bloquee el extremo del tubo del sifón en la parte más baja del exteríor del estanque, utilizando la maño o un tapón.

 
     

(b) Coloque el tubo del sifón de manera que se pueda llenar completamente por el otro extremo (lo que significa elevar el otro extremo hasta la parte más alta de la pared del estanque). Procure evitar pliegues en el tubo que puedan formar bolsas de aire.

(c) Llene el sifón con agua desde el otro extremo; cuando esté lleno, bloquee este extremo con la maño, o mejor con un segundo tapón.

 

(d) Baje lentamente el extremo del tubo y sumérjalo completamente en el estanque, manteniéndolo bloqueado en todo momento.

(e) Pida al ayudante que abra el otro extremo del sifón, comprobando que se encuentra en su nivel más bajo.

(f) Al mismo tiempo, abra el extremo del sifón, manteniéndolo sumergido en el agua. El agua deberá comenzar a circular a través del sifón.

     
 

(g) El agua, al circular de forma continua, va perdiendo poco a poco altura, por lo que habrá que cerciorarse de que la parte del sifón que se encuentra dentro del estanque se mantenga siempre bajo el agua y que el extremo exteríor esté por debajo del nivel interior del agua.

6. Para estimar cuánto tiempo necesitará para drenar el estanque, puede utilizar o los Gráficos 11 y 12 o Cuadro 45, además de los datos relativos al volumen del agua (véase Agua , 4).

Nota: En algunos casos, quizá convenga hacer un punto de Ilenado en el extremo superior del tubo. Para ello, actúe en la forma siguiente:

a) Tapone ambos extremos del tubo.
b) Llene completamente el tubo.
c) Tapone el punto de Ilenado.
d) Comprobando que el extremo de salida se encuentra por debajo del
nivel de desagüe y que la entrada está perfectamente sumergida, quite los tapones de ambos extremos.

 

10.3 Salidas sencillas con tubos

Un tubo sencillo y un obturador

1. En los estanques de pequeñas dimensiones y poca profundidad, se puede utilizar como salida para el agua una tubería recta de pequeño diámetro. Es importante colocar los tubos en el punto más bajo del estanque antes de la construcción del dique. Elija, según la facilidad de acceso y el costo, uno de los siguientes tipos de tubo:

 

2. La tubería deberá estar cerrada en uno de los extremos antes de que comience a llenar el estanque de agua. Si es posible, cierre el extremo del tubo que se encuentra por debajo del agua para evitar que se bloquee por la presencia de los residuos flotantes o peces. Puede utilizar, por ejemplo:

 

3. En algunos casos, puede utilizar también una tubería vertical, que se podrá ajustar o renovar en la forma necesaria. Esta alternativa se examina con más detalle en las páginas siguientes de está sección.

4. Cuando desee drenar el estanque:

(a) Quite el tapón o abra la válvula; si se trata de un tapón, quizá le convenga sujetarlo a un lazo de metal o de cuerda, del que se pueda tirar con un gancho de mango largo. Se puede tirar también con una cuerda larga, siempre que ésta esté bien sujeta.

(b) Coloque inmediatamente una rejilla en el extremo del tubo para evitar que se bloquee.

(c) Limpie la rejilla siempre que sea necesario.

(d) Una vez drenado el estanque, o quite la rejilla y cierre el tubo inmediatamente o retire la rejilla más tarde cuando comience a llenar el estanque.

Tubería vertical flexible

5. Este tipo de salida consta de dos partes:

  • un tubo rígido en ligera pendiente, por ejemplo un tubo de bambú o de plástico, que corra a lo largo de la base del dique; y
  • un tubo flexible vertical conectado dentro del estanque con el tubo rígido y que llega hasta el nivel máximo del agua.

6. Recuerde que:

  • para mantener el tubo vertical y evitar el desagüe accidental del estanque, debe fijar su parte superior a una estaca de madera fuerte;
  • para evitar posibles bloqueos del tubo, debe colocar una rejilla perfectamente encajada en la parte superíor del tubo vertical;
  • para poder vaciar completamente el estanque, compruebe que el tubo está unido a la tubería al menos 10 cm por debajo del punto más bajo del estanque.
 
Tubo fijo flexible dentro del estanque
     

7. Para vaciar el estanque, separe el extremo superior del tubo vertical de la estaca. Bájelo progresivamente conforme descienda el nivel del agua. No olvide que el extremo del tubo debe estar cubierto siempre con una rejilla.

Nota: Puede utilizar también este tipo de salida en los rebosaderos normales. Recuerde siempre que la rejilla debe estar perfectamente encajada.

8. También se puede utilizar un tubo flexible en el exteríor. En este caso, se necesita una rejilla en la parte interior del tubo rígido. Por lo demás, el principio en que se basa su utilización es el mismo.

 
Tubo fijo flexible fuera del estanque

Tubería vertical abatible

9. Esta estructura, semejante a la anteríor, consta de tres partes de plástico rígido:

10. Para que el codo de 90° no se separe del tubo horizontal, sea por accidente o por manipulación, protéjalo de la siguiente manera:

(a) Introduzca una estaca de madera tratada de unos 3 a 5 cm de grosor y de 50 a 60 cm de longitud en el fondo del estanque, delante mismo del tubo vertical. Elija una madera resistente al agua (véase Sección 3.1). Introduzca la estaca firmemente en la base del estanque, comprobando que es lo bastante larga para llegar por encima del borde superior del tubo vertical acodado.

(b) Justo por detrás de la estaca y en el centro de la misma, introduzca una barra de acero o un tubo de acero de poco diámetro en el fondo del estanque hasta una profundidad de aproximadamente 1 m y sujételo a la estaca. Deberá tener la longitud suficiente para Ilegar hasta la parte superior del tubo vertical.

(c) Suelde una cadena o ate una cuerda a la barra de acero, a unos 10 cm de su extremo superíor.

(d) Cerca del extremo superior del tubo de plástico vertical, fije fuertemente un pequeño dispositivo para sujetar la cadena o cuerda. Puede utilizar, por ejemplo, un gancho de acero, un ojo giratorio o un pequeño grillete con pasador roscado.

11. Este tipo de salida se puede situar:

  • dentro del estanque, delante del dique; o
  • fuera del estanque, a espaldas del dique, en cuyo caso deberá colocar una rejilla en la parte interior del tubo de base.

12. Generalmente conviene colocar el tubo vertical dentro del estanque para reducir el peligro de bloquear el tubo horizontal y para evitar las filtraciones.

 
Tubo abatible dentro del estanque

13. Cuando utilice este tipo de tubería, recuerde los siguientes puntos:

(a) Si es posible, la abertura del tubo horizontal deberá estar al menos 10 cm por debajo del punto más bajo del estanque.

(b) Para mayor protección, puede cubrir con hormigón el tramo del tubo horizontal que sobresale por delante del dique en la parte interior del estanque.

(c) No olvide nunca sujetar firmemente el tubo vertical a la barra de acero con la cuerda o la cadena.

(d) Ajuste bien una rejilla en la parte superior del tubo vertical.

14. Para regular el nivel de agua en el estanque, coloque el tubo con la angulación más indicada moviéndolo hacia arriba o bacia abajo. Sujételo en la posición elegida con la cadena o cuerda.

15. Para vaciar el estanque, gire gradualmente hacia abajo el tubo vertical, siguiendo el nivel del agua conforme va bajando. Cuando haya alcanzado la posición horizontal, quite el codo del éxtremo del tubo horizontal para completar el vaciado y recoger los peces.

Nota: Mantenga la rejilla del tubo vertical mientras no haya quitado el codo del tubo horizontal. En ese momento, pase inmedíatamente la rejilla a la parte frontal de este tubo.

16. Como en el caso del tubo flexible, se puede utilizar este sistema para regular el agua normal de desbordamiento, ya que el posible excedente de agua que supere el nivel elegido para el tubo se drenará automáticamente.

Uso del tubo abatible
 

10.4 La compuerta de descarga

1. Una compuerta de descarga es una abertura protegida en el dique del estanque que se puede cerrar fácilmente con tablones de madera para regular el nivel del agua y se puede proteger con una rejilla para evitar pérdidas de peces. En caso necesarío, puede descargar ininterrumpidamente el agua excedente.

2. Por tratarse de una estructura de salida abierta, no requiere un tubo de base que atraviese el dique. Tiene las mismás funciones que el desaguadero «monje» (Sección 10.5), pero presenta algunas ventajas:

3. No obstante, su principal inconveniente está en que su construcción es más cara:

Se necesita mucho llenos material para construir un desaguadero "monje" que una gran compuerta
 
Desaguadero "monje"

4. Por ello, las compuertas de descarga suelen preferirse a los desaguaderos únicamente cuando se trata de estanques de pequeño o mediano tamaño y el dique que hay que atravesar es relativamente estrecho.

Ejemplo

Para un dique de 2 m de altura con pendientes laterales de 1:1,5, necesitará las siguientes cantidades de hormigón (en metros cúbicos) para construir compuertas de descarga de 0,30 a 0,50 m de anchura. Para un desaguadero y su desagüe, necesitaría llenos de 2 metros cúbicos de hormigón y entre 7 y 8 m de tubos de 30 cm.

 

Anchura interior de compuerta de descarga(m)

Anchura de la parte superior del dique

1 m
2 m
0.30
4.1
6.0
0.40
4.3
6.3
0.50
4.5
6.5

5. La compuerta de descarga consta fundamentalmente de los siguientes elementos:

6.La anchura interior de la compuerta de descarga no debería pasar de 0,80 m. De lo contrario resulta difícil manejar los tablones de madera, sobre todo cuando el estanque está lleno.

7. El número de ranuras puede variar según las dimensiones del estanque y el método utilizado para los peces.

8. Si el estanque es pequeño o si la recogida de peces se hace en una balsa de recolección construida detrás de la compuerta, podrá bastar con una serie de ranuras practicadas en el centro de la misma.

9. Si el estanque es mayor y la recogida se hace en la misma compuerta de descarga, la recogida resultará más fácil si cuenta con dos series de ranuras:

10. Conviene construir un puente sencillo por encima de la parte superíor de la compuerta para permitir el paso de personas y de carretillas o carros ligeros. Para ello basta con ensamblar varíos tablones de madera, o, si se trata de hormigón, colocar encima de todo una Iosa de hormigón armado.

11. Para averiguar cuánta agua podrá evacuar con compuertas de descarga normales, utilice el Gráfico 6 y Cuadros 32 y 33 del Capítulo 7.

12. Las compuertas de descarga pueden construirse con diversos materiales, por ejemplo madera, ladrillos, bloques de cemento u hormigón armado. A continuación, aprenderá a utilizar estos materiales para construir una compuerta de descarga sencilla.

Construcción de una compuerta de descarga de madera

13. Utilice madera fuerte y resistente. Antes de su utilización, trátela con sustancias contra la descomposición e (see Section 3.1).

14. Determine el tamaño de la compuerta y de los trozos de madera necesarios según el tamaño del dique. Si es posible, construya la compuerta antes que el dique o deje suficiente espacio para la compuerta, con sus correspondientes planchas centra las infiltraciones, que deberá instalarse en una sola pieza. En tal caso, quizá le convenga construir y preparar la compuerta lejos del estanque, donde pueda trabajar en las debidas condiciones, para luego montarla firmemente en su lugar.

15. Si la compuerta es demasiado grande, tendrá que construirla sobre el terreno.

16. Primero excave y despeje la zona necesaria. Consolide firmemente la base con material procedente del suelo del estanque. Si este suelo es muy blando, deberá aumentar la longitud de las estacas verticales o incrementar su número. Otra posibilidad, es utilizar pilotes (Sección 10.7).

17. Señale la posición de las estacas verticales principales. Con estas estacas verticales forme armazones cuadrados sujetando las piezas horizontales con pernos, tornillos o clavos (un punto por ángulo).


18. Fije los armazones en su sitio e introdúzcalos profundamente. Alinee los armazones, comprobando que las piezas horizontales están en el mismo nivel y que forman una línea a lo largo de toda la compuerta.

 
     

19. Fije los ángulos del armazón con soportes y refuerzos en escuadra, si es necesario. Fije las planchas internas de la compuerta, las planchas externas para evitar las infiltraciones, y los rieles de guía para las compuertas de descarga.

20. Una vez que la compuerta está perfecta y firmemente montada e instalada, acabe el tratamiento contra la descomposición. Si es posible, recubra las cabezas de los clavos, tornillos o pernos con barniz, pintura o alquitrán. En caso necesario, recubra los posibles huecos entre los tablones, los huecos producidos en la madera al desprenderse los nudos, etc. con arcilla, alquitrán, masilla o algún material parecido. Rellene y recubra el material del dique en torno a la estructura.

 
Excavar la zanja para la compuerta; limpiar y consolidar la base
     
Montar las estacas, soportes transversales y tablas contra
la infiltración, e introducir los armazones en la zanja de la compuerta

 
Compuerta de descarga de madera terminada con la
tablas internas instaladas en la zanja


Construcción de una compuerta de descarga con ladrillos o bloques de hormigón

21. Si utiliza ladrillos o bloques de hormigón, la estructura resulta notablemente más pesada y requerirá cimientos sólidos, normalmente de hormigón o de hormigón armado. Deberá también tener buenos conocimientos de albañileria. Actúe como sigue (véanse también Secciones 10.7):

(a) En primer lugar, prepare, marque y nivele el lugar. Excave la zona de los cimientos hasta alcanzar el nivel deseado. Si fuera preciso, coloque pilotes de cimentación y extienda y nivele el material de base.

(b) Marque y coloque simples encofrados de madera para la base de hormigón y fijelos perfectamente. Prepare las superficies, por ejemplo aplicando aceite usado de coche. Ponga los refuerzos necesarios. Si es posible, coloque algunos bloques de madera de 2 a 5 cm por debajo del nivel superíor de la base, donde se encuentran las paredes. Vierta el hormigón. Utilice una mezcla entre pobre e intermedia, con 195-250 kg cemento m3 (véase Sección 3.4).

(c) Cuando el hormigón está perfectamente fraguado y endurecido, prepare y coloque las guías para las paredes de la compuerta. Si ha utilizado bloques de madera, retírelos para obtener una «cuña» para las paredes. De lo contrarío, haga una cuña para las paredes utilizando un martillo y un cincel para excavar en el cimiento. Haga las paredes, poniendo especial interés en que las superficies internas sean lisas y estén perfectamente acabadas. Si lo desea, coloque pernos de sujeción para las guías de los tablones. Para un mejor acabado, conviene cubrir las paredes internas con mortero de densidad medía.

(d) Una vez terminadas las paredes, fije las guías de los tablones, utilizando los pernos de sujeción previamente instalados o pernos de albañilería y mortero. Compruebe que se encuentren perfectamente paralelos.

(e) Coloque cuidadosamente y recubra con el material del dique la estructura construida.

Plano de la compuerta de salida con bloques de hormigón


Sección AA


Construcción de una compuerta de descarga con hormigón armado

22. Se puede hacer una estructura más fuerte, de peso semejante, utilizando hormigón armado. Deberá actuar como sigue (véase también Sección 10.5)

(a) Prepare la zona de los cimientos como si se tratara de una compuerta de ladrillo, fije el refuerzo de la base y coloque los posibles refuerzos del muro que deban penetrar en el cimiento. Compruebe tpdo el sistema de refuerzos. Quizá tenga que utilizar soportes temporales para sujetar las barras verticales.

(b) Vierta el hormigón del cimiento ydeje que fragűe y se endurezca.

(c) Marque las posiciones, coloque y fije los encofrados para los muros de la compuerta (tenga presente que si va a hacer varias compuertas quizá valga la pena utilizar encofrados de acero que puedan valer para varias veces). Coloque los posibles refuerzos adicionales necesaríos y,en su caso, los pernos de sujeción para las guías de los tablones. Compruebe que los encofrados están bien sujetos en la base.

(d) Eche el hormigón del muro, apisónelo bien y deje que fragűe y se endurezca. Utilice hormigón entre medíano y rico (250-350 kg cemento/ m3 ). Quite todo el encofrado, y limpie, pique y remate todas las superficies.

(e) Si hay que poner guías, fíjelas utilizando pernos de sujeción previamente colocados o pernos de albañilería y mortero.

Funcionamiento de una compuerta de descarga

23. Antes de rellenar el estanque, introduzca dos filas de tablones de madera en la serie de ranuras hasta llegar un poco por debajo del nivel máximo del agua. Recubra el espacio entre estas filas con tierra o serrín, apretándolo bien. Coloque la rejilla encima de la fila frontal de tablones. Rellene el estanque de agua y compruebe que no hay fugas en la compuerta. En caso necesario, repita el proceso de compactación.

24. Para vaciar el estanque, quite un par de tablones y el material compactado al mismo tiempo, conservando la rejilla en la parte superior de la fila frontal de tablones mientras sale el agua. Quando queden únicamente dos o tres pares de tablones en la parte inferior de la compuerta, retire todo el material de relleno y la segunda fila de tablones. Entonces acabe de una de las dos formas siguientes, según el método de recogida de los peces:

(a) Continúe haciende descender el nivel de agua y recoja los peces dentro de la compuerta. Si hay dos series de ranuras, recoja los peces que se encuentren delante de la rejilla situada en una de las ranuras posteriores. Si tiene que quitar la rejilla para limpiarla, coloque antes otra rejilla en la otra ranura posterior.

(b) Otra posibilidad consiste en dejar pasar parte del agua, junto con los peces, a la balsa de recolección, donde podrá efectuarse fácilmente está operación; repita este procedimiento hasta que hayan salido toda el agua y todos los peces del estanque.

Recolección dentro de la compuerta
 
Recolección delante de la compuerta

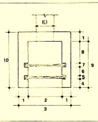
10.5 El desaguadero «monje»

1. El desaguadero «monje» es uno de los sistemas más antiguos y más comunes de desagüe de estanques. Consiste en una columna vertical cerrada con tablones de madera para regular el nivel del agua. El agua sale a través de un tubería sumergida bajo el dique. Una rejilla impide la salida de los peces que se encuentran en el estanque.

2. El desaguadero tiene ventajas semejantes a las de la compuerta. El nivel del agua del estanque se regula y ajusta fácilmente. Simplifica la recogida de los peces. Además, un desaguadero se protege más fácilmente que una compuerta, y su construcción resulta más económica si el dique del estanque es grande. En cambio, tiene el inconveniente de que su construcción no es demasiado sencilla, sobre todo si se hace con ladriIlos u hormigón.

3. Un desaguadero completo consta de las siguientes partes:

 
Desaguadero "monje"

Ubicación del desaguadero

4. Como cualquier otra salida, los desaguaderos se construyen generalmente en la parte del estanque opuesta a la de entrada del agua. Puede situarse o en el centro del dique o, cuando el agua sale, por ejemplo, a una balsa de recolección común a dos estanques adyacentes, en un lado del dique.

 

5. El desaguadero se puede construir bien dentro del dique o como estructura, exenta ya dentro del estanque:

Desaguadero incorporado al dique
 
Desaguadero delante del dique

Cuánta agua debería descargar un desaguadero

6. La capacidad de descarga de agua de un desaguadero depende del diámetro interior de la conducción (véanse Sección 3.8 y Sección 10.1).

7. Para estimar rápidamente cuánta agua podría descargar con un desaguadero normal, utilice los Cuadros 12, 13 y 14 de la Sección 3.8.

8. La sección trasversal del desaguadero aumenta conforme aumenta también el diámetro de la conducción. Recuerde los siguientes puntos:

9. Para poder trasladar fácilmente los tablones, trate de limitar la anchura interior del desaguadero, evitando que pase en cualquier caso de 50 cm.

Ejemplo
Dimensiones internas de desaguaderos según el temaño de la tuberia
(en cm)

 

Diámetro interíor de la tubería

10-15
15-20
20-25
25-30
Anchura Interior
30
33-35
40
48-50
Delante de la ranura 1
8
10
10
10
Espacio entre las ranuras 1 y 2
8
10
10
10
Distancia de la ranura 2 a la pared
16
16-20
26
34-37
Anchura de las dos ranuras
8
8
8
8
Longitud interna
40
44-48
54
62-65

 

Calcular las dimensiones de un desaguadero

  • ANCHURA (W) = diámetro de los tubos + 2 x (5 a 10 cm)
  • LONGITUD (L) = (1) + (2) + (3) + (ranuras)

donde

(1) = 8 to 10 cm
(2) = 8 to 10 cm
(3) = como máximo 35 to 40 cm
(ranuras) = 4 cm cada una


10. La altura del desaguadero está en relación con la altura máxima del agua en el estanque. El desaguadero deberá ser al llenos 20 cm más alto que la altura del agua. Normalmente, el desaguadero tiene la misma altura que el dique de salida. A no ser que se trate de un diseño especial, la altura no debería pasar de 2,5 m.

Materiales para construir un desaguadero

11. Los desaguaderos se pueden construir de madera, ladrillo u hormigón según la disponibilidad de los materiales, su costo, la mayor o menor abundancia de personal técnico local y las dimensiones de la obra.

12. El tipo de desaguadero que mayores dificultades de construcción presenta es el de ladrillo. Para evitar fugas de agua, se requerirá un albañil muy cualificado. Si la construcción no es de calidad, habrá que rehacer frecuentemente la superficie de mortero, lo que aumentaria los gastos de mantenimiento. Por lo general, los desaguaderos de madera y de hormigón resultan más baratos y fáciles de construir. Aprenderá a hacerlo en las próximas secciones.

Puntos de interés al construir un desaguadero

13. Cuando construya un desaguadero:

(a) La tubería deberá colocarse antes de construir el dique y la columna del desaguadero.

(b) Construya un cimiento sólido para evitar futures problemas.

c) Preste especial atención a:

(d) Dé a la tubería una inclinación razonable, si es posible del 1,5 al 2 por ciento.

(e) Si debe construir varios desaguaderos en la explotación piscícola:

(f) Construya un rebosadero adicional cuando haya peligro de entrada incontrolada de agua en el estanque (Sección 11.1).

10.6 Desaguaderos de madera

1. Un desaguadero elemental se puede construir totalmente de madera. Es el tipo más fácil y barato de desaguadero, aunque habrá que proceder con cuidado para garantizar su estanquidad y durabilidad. La altura de un desaguadero de madera no deberá pasar de 2 m.

Elección de la madera

2. Para construir un desaguadero de este tipo, elija una madera fuerte y duradera, resistente al agua, como iroko o mukulungu (véase Cuadro 6). Para aumentar su durabilidad, puede tratarla con un producto especial para la conservación de la madera o aplicando aceite usado de automóvil. Acuérdese de eliminar los restos del producto conservante antes de introducir los peces en el estanque.

3. Utilice tablones de madera sin nudos, de 3 a 5 cm de grosor. Por ejemplo, para una columna de 2 m de altura, necesitará aproximadamente 0,4 m3 de madera.

Construcción de la tubería de madera

4. En vez de utilizar tubos estándar de plástico o de cemento, puede construir una tubería totalmente de madera. Basta con clavar o atornillar cuatro tablones formando una especie de caja. Coloque la estructura debidamente sobre el suelo compactado y entiérrela por debajo del dique de salida. Ponga especial esmero en la compactación del suelo del dique en la zona próxima a la conducción (véase Sección 6.2).

5. En la mayor parte de los casos, no hace falta cimiento, pero en suelos menos estables, como algunas arciIlas pesadas, quizá convenga utilizar simples pilotes de madera.

 
Tubería de madera

Construcción de la columna de madera

6. Los desaguaderos de madera no necesitan prácticamente cimiento, ya que son muy ligeros. Normalmente basta con un cimiento elemental, por ejemplo adoquines o simples pilotes de madera, o algunos tablones más anchos colocados horizontalmente en el fondo del estanque.

7. Los desaguaderos de tamaño pequeño y mediano están clavados o atornillados de tal manera que la parte que va hacia el estanque quede abierta. Según las dimensiones generales y la anchura de tablones disponibles, construya la columna tal como puede observarse en los dibujos.

Nota: Este desaguadero se construye utilizando tablas de 2 a 3 cm de grosor.

8. Conviene atornillar un punto de anclaje a cada lado de la columna. Primero, introduzca profundamente estos dos puntos en el fondo del estanque y luego atorníllelos al desaguadero.

9. Si se desea un sistema más fuerte, puede añadir a cada lado un puntal inclinado que apoye la parte superior de la columna sobre la conducción.

Pequeño desaguadero de madera
 
Partes de un pequeño desaguadero de madera
     

Desaguadero de madera de temaño mediano

Nota: Este desaguadero se construye utilizando tablas de 2 a 3 cm de grosor

 
Partes de un desaguadero de madera de temaño mediano

10.7 Pequeños desaguaderos de ladrillo, bloques de hormigón y hormigón

1. Se pueden construir desaguaderos de hasta 1,5 m de altura, unidos a tuberías de 25 a 30 cm de diámetro, utilizando mortero y ladrillos de una sola capa. Aunque se puedan construir desaguaderos más altos y más anchos, para ello se requiere una base de doble anchura y buenos puntales para asegurar su estabilidad y resistencia, por lo que resultan demasiado pesados y caros en la mayor parte de los casos.

2. Las dimensiones recomendadas para estos desaguaderos aparecen en la primera parte del Cuadro 48.

3. Pueden construirse también los desaguaderos con bloques de hormigón y con hormigón armado. En general, los principios de construcción son semejantes (véase párrafo 4 más adelante), con estas dos salvedades:

CUADRO 48
Dimensiones aconsejadas para desaguaderos de ladrillo, de bloques de hormigón y de hormigón

 


Construcción de tuberías para desaguaderos

4. En estos desaguaderos, las tuberías suelen hacerse con los tubos que se encuentran normalmente en el mercado, bien de cemento de amianto o de plástico. Para obtener mejores resultados, sobre todo cuando se trata de tubos de cemento, la tubería deberá estar asentada en un buen cimiento, que habrá de construirse junto con el cimiento de la columna. Las juntas de los tubos deberán estar bien impermeabilizadas para evitar filtraciones de agua

.
 
Tubos de hormigón

5. Para preparar el cimiento de una tubería, puede actuar de la siguiente manera:

(a) Excave y apelmace bien el lugar donde piensa colocar la tubería. El nivel de esta zona deberá ser al menos 10 cm más bajo que el punto más bajo del estanque.

(b) Trace una señal que corresponda a la línea central de la conducción, normalmente en sentido perpendicular a la línea central del dique de salida. La línea deberá llegar 50 cm más allá de la tubería en uno y otro extremo.

(c) A cada lado de esta línea central mida una distancia igual a la mitad del diámetro exterior de la tubería, más 10 a 15 cm. Delimite esta zona con lineas de demarcación, comenzando por la pared posterior de la columna del desaguadero. Estas son las líneas de cimentación.

(d) Elimine la líneas centrales, y entre las líneas del cimiento cave una zanja cuya profundidad deberá ser:

(e) Prepare el fondo de la zanja, con cuidado, dándole una pendiente del 1,5 al 2 por ciento hasta el exterior del estanque.

(f) Marque con estacas el centro de la zanja, y ajuste su altura al grosor previsto del cimiento y la pendiente del 1,5 al 2 por ciento.

(g) Prepare un hormigón pobre (175 kg cemento/m3).

(h) Vierta el hormigón en la zanja preparada. Haga coincidir el nivel de su superficie con el de la parte superior de las estacas. Apelmácelo bien, protéjalo y déjelo endurecer durante dos días (para mayor información sobre el hormigón de cemento, véase Sección 3.4).

Colocación de la tubería

6. Una vez preparado el cimiento, coloque la tubería teniendo en cuenta las siguientes instrucciones (según el tipo de tubería utilizada):

(a) Si utiliza tubos de cerámica o de cemento:

(b) Si utiliza tubos de plástico, hay dos tipos principales de conexión:

7. Para uno y otro tipo, el procedimiento general de colocación es semejante al de los tubos de cemento, aunque no hace tanta falta proteger las juntas, ya que éstas suelen colocarse a 3, 6 o hasta incluso 9 m de distancia.

8. En el caso de los tubos soldados con disolvente, las junturas son tan fuertes como el propio tubo, por lo que éste necesita llenos protección frente a posibles desplazamientos. Además, como los tubos de plástico son flexibles y lisos en el interíor, pueden deformarse ligeramente y a pesar de todo continuar funcionando satisfactoriamente. Por ello, no es necesarío utilizar cimientos rígidos. En los suelos duros se pueden eliminar por completo, y en los suelos blandos bastaría con un cimiento de 5 a 15 cm.

9. En los tubos encajados a presión, preste especial atención a los siguientes aspectos:

(a) Compruebe que las juntas de unión estén absolutamente limpias y sin asperezas (por ejemplo, las que se producen al serrar el tubo), y que los aros de goma no estén torcidos, aplastados o rotos, y encajen debitamente.


(b) Utilice un lubricante adecuado en el tubo. Lo mejor es utilizar grasa de silicona, pero podría bastar con agua jabonosa. Introduzca el tubo hasta el final del manguito. No haga demasiada fuerza, ya que podría partir el manguito.

10. En los tubos soldados con disolvente, haga como sigue:

(a) Limpie el tubo, si es posible con la solución de limpieza recomendada y aplique el cemento siguiendo las instrucciones. Compruebe que se extienda perfectamente alrededor de todo el tubo.


(b) Introduzca el tubo en el manguito. No lo tuerza, ya que ello puede provocar una «canaladura» en la junta, y las consiguientes fugas.


(c) Lo ideal es que aparezca un reborde de disolvente alrededor del extremo del manguito; en tal caso, la soldadura será perfecta.

Nota: Los cementos solventes son normalmente de dos tipos:

11. Compruebe que los tubos y el estaño solvente son compatibles.

Utilización de una conducción subterránea de hormigón

12. Otra posibilidad es utilizar una conducción subterránea de hormigón. Puede construirla usted mismo encima del cimiento preparado, utilizando encofrados de madera para las dos paredes laterales y planchas prefabricadas para la cobertura superior. Construya el conducto subterráneo hasta la pared posterior de la columna del desaguadero. Alise bien la superficie del fondo con mortero de cemento.

 

Construcción del cimiento de la columna del desaguadero

13. El cimiento para la columna del desaguadero deberá construirse al mismo tiempo que el cimiento de la tubería. No obstante, generalmente es más grueso que ésta última. Haga como sigue:

(a) Partiendo del eje de la tubería, señale con estacas el cimiento de la columna y márquelo con líneas. El cimiento suele tener forma cuadrada. Sus dimensiones deberán superar normalmente a las de la columna:

(b) Entre las líneas de demarcación, cave un hoyo cuya profundidad variará según la calidad del suelo;

(c) Quite todas las estacas y lineas de demarcación.

(d) Nivele el fondo del hoyo excavado

(e) Rellene este hoyo con material de cimentación:

(f) Apisone bien estos materiales y prepare la superficie, en la forma requerida por el diseño, de manera que se encuentre al menos 10 cm por debajo del punto más bajo del estanque.

(g) Proteja la superficie del hormigón, téngalo húmedo y déjelo endurecer al llenos durante dos días

(h) Quite los bloques de madera, dejando el cimiento listo para recibir las paredes.

Recuerde que la solidez de la columna depende sobre todo de la estabilidad y robustez de su cimiento. Por ello, no ahorre esfuerzos en la Construcción del cimiento.

PREPARAR LOS CIMIENTOS PARA LA TUBERIA Y EL DESAGUADERO



Si no utilizó listones de madera para formar la base de la
columna del desaguadero, debera excavarla con martillo y cincel

 

Instalar un tramo de tubo desde el extremo frontal
de la tubería hasta el interior del desaguadero



Ahora ya puede construir o recubrir la columna del desaguadero
 


Preparación de un cimiento con pilotes

14. En los suelos muy blandos, por ejemplo los que tienen un contenido significativo de arcilla plàstica, la utilización de simples pilotes mejorarà la robustez del cimiento. En la mayor parte de los casos, se pueden utilizar pilotes de madera o de bambù, aunque es preferible utilizar maderas resistentes (véase Sección 3.1). Normalmente se introducen varios metros en el suelo utilizando un martillo. Conviene probar primero con pilotes de 2 a 3 m y un diámetro de 6 a 10 cm, introduciéndolos con el martillo hasta donde se pueda. Recorte el resto del pilote, dejando un pequeno saliente sobre la superficie. Utilizando éste como guía, puede elegir la longitud normal más indicada para los pilotes. Si alguno de ellos no consigue entrar completamente, córtelo dejando un pequeño saliente, como en el pilote de prueba. Estos pilotes deberán colocarse a una distancia aproximada de 30 a 50 cm entre el centro de uno y el centro del siguiente. Luego, sobre ellos, se construye un cimiento normal.

Nota: Para aumentar la estabilidad, algunos de los pilotes se pueden introducir en ángulo, lo que contribuye a aumentar la superficie de la base y a incrementar la seguridad del cimiento.

 

Construcción de la columna del desaguadero de hormigón

15. Para construir una columna de hormigón, necesita un encofrado de madera en el que verter el hormigón. Si tiene que construir varias columnas de las mismas dimensiones, puede emplear el mismo encofrado de madera varias veces, lo que le permitirá ahorrar tiempo y dinero. Puede también pedirlo prestado o prestarlo y distribuir su costo entre un grupo de personas. Podrá informarse mejor sobre los encofrados de madera en la Sección 10.9. (véase Construcción Sección 3.4, donde se describe con mayor detalle la preparación y aplicación del hormigón)


 
Ranuras en el desaguadero de hormigón

16. Cuando tenga ya listo e instalado el encofrado, haga como sigue:

(a) Con dos estacas y una cuerda, marque la linea central longitudinal del cimiento. Esta parte directamente desde la línea central de la tuberìa.


(b) Con clavos y una cuerda, marque en el cimiento de hormigón la situación exacta de las tres paredes de la columna que va a construir, a distancias semejantes desde la línea central longitudinal.


(c) Si va a utilizar bloques de madera para dar forma a los cìmientos de la pared, la siguiente fase es muy sencilla; de lo contrario, el trabajo se complica. Utilizando un martillo y un cincel, haga varías líneas profundas en la superficie del hormigón, a unos 2 cm de las cuerdas y por fuera de las paredes.

(d) Rebaje la superficie de hormigón situada entre estas lineas hasta una profundidad de unos 5 cm. Retire los trozos de hormigón. Esta pequena zanja se utilízará para reforzar la unión de la columna y su cimiento.


(e) Limpie bien el encofrado de madera, quitando los restos de hormigón seco. Aplique aceite usado de automóvil a sus paredes internas para que puedan despegarse fácilmente del hormigón cuando éste se haya endurecido.

(f) Tome un trozo de tubo recto con la longitud suficiente para poder alcanzar desde la tubería hasta la pared interior del desaguadero. Deberá tener el mismo diámetro que el de la tubería.


(g) Sitúelo en la parte posterior de la columna, en la línea central de la tubería, comprobando que se introduce ligeramente en la pared interior. Sujételo firmemente.

(h) Monte el encofrado; compruebe que está bien centrado tanto alrededor del tubo de sus paredes posteriores como en relación con la zanja preparada en el cimiento.

(i) Apuntale bien el encofrado para que no se mueva mientras se vierte el hormigón.

(j) Prepare hormigón rico relativamente blando (350 kg cemento/m3), (véase Sección 3.4). La cantidad necesaria para llenar el encofrado se puede estimar fàcilmente teniendo en cuenta las dimensiones dadas a la columna:

Ejemplo

La columna del desaguadero mide 1,30 m de altura. El grosor de las paredes es de 12 cm. La anchura interior es de 33 cm y la longitud interior de 44 cm. El volumen de hormigón necesario se obtiene de la siguiente manera:

Véase el Cuadro 9 (Sección 3.4) sobre el hormigón con 350 kg cemento/m3. Mezcle 90 kg de cemento con 113 I de arena, 200 I de grava y 50 I de agua.

(k) Vierta el hormigón dentro del encofrado, llenándolo progresivamente por capas y apisonando bien cada capa antes de pasar a la siguiente.

(l) Proteja la parte superior del hormigón fresco y déjelo endurecer al menos durante 24 horas antes de quitar el encofrado. Evite por todos los medios romper alguna parte del hormigón, sobre lodo en las proximidades de las ranuras verticales.

(m) Una con mortero el tubo colocado en la columna con la tubería.

(n) Utilizando mortero normal, termine la unión de la base de la columna con el cimiento, por dentro y por fuera. De a la parte del cimiento situada dentro de la columna un acabado liso.

(o) En caso necesario, dé a las ranuras un acabado liso. Para mejorar la calidad de éstas se puede fijar con cemento en las ranuras de hormigón una pieza de hierro en U de 4 cm de anchura.

Nota: Si decide utilizar como ranuras piezas de hierro en U, amplie ligeramente las ranuras hechas con el encofrado de hormigón, dándoles aproximadamente unos 5 cm.

10.8 Desaguaderos de hormigón armado

1. Los desaguaderos grandes, de más de 1,5 m y con un tubería cuyo diámetro interno pase de los 25 cm, deberán construirse con hormigón armado.

2. Si utiliza las dimensiones mostradas en el Cuadro 48, relativas a los desaguaderos con refuerzo de hormigón, el resultado sera una columna de forma aproximadamente cuadrada (72 x 74 cm u 80 x 80 cm, por ejemplo), segùn las dimensiones de la tubería.

Construcción del cimiento de la tubería

3. Los desaguaderos de gran tamaño suelen estar equipados con tubos de venta comercial, bien de cemento de amianto o de hormigón, colocados sobre un cimiento sòlido. Este cimiento deberá construirse al mismo tiempo que el de la columna del desaguadero. Para construir la tubería, siga las indicaciones de la Sección 10.7 con la única diferencia de que algunas de las dimensiones deberán incrementarse como sigue:

(a) La anchura del cimiento deberá ser al menos 30 cm mas ancha que el diámetro exterior de la tubería.

(b) El grosor del cimiento deberá ser:

4. Para construir este cimiento, se pueden utilizar mortero y piedras para la parte inferior y hormigón pobre en la parte superior.

5. Si se utiliza hormigón armado, el cimiento puede ser menor (unos 15 cm de grosor).

6. Uno de los posibles métodos es el siguiente:

(a) Rellene de hormigón la parte inferior de la zanja.

(b) Apisónelo bien y nivélelo.

(c) Coloque el refuerzo (barras de acero de 6 a 8 mm de diámetro a intervalos de unos 10 cm, con barras transversales de 6 a 8 mm a intervalos de unos 50 cm) encima del hormigón antes de que se seque.

(d) El refuerzo deberá ocupar loda la extensión del cimiento de la tubería y llegar por lo menos hasta el cimiento del desaguadero.

(e) Luego, cuando el hormigón de debajo este todavía húmedo, cubra el refuerzo con mas hormigón hasta Menar la zanja.

(f) Apisónelo bien y allánelo debidamente.

7. Un método alternativo sería el siguiente:

(a) Suspenda el refuerzo en el punto medio de la zanja utilizando trozos de madera y ganchos de alambre.

(b) Llene toda la zanja de hormigón y al mismo tiempo apisónelo bien.

(c) Cuando la zanja este completamente llena, allánela debidamente.

Colocación de la tubería

8. Una vez preparado el cimiento, coloque la tubería como se explica anteriormente al hablar de los desaguaderos pequeños (Sección 10.7).

9. Si utiliza tubos de cemento de amianto de 30 cm de diámetro, puede aumentar notablemente su durabilidad recubriéndolos de 10 cm de hormigón pobre blando. Esto se debe hacer después de acabar todas las juntas de la tuberia y antes de construir la columna del desaguadero.

Construcción del cimiento de la columna del desaguadero

10. El cimiento de la columna del desaguadero deberá construirse al mismo tiempo que el cimiento de la tuberìa, como se describe en la (Sección 10.7, párrafo 13) con estas únicas diferencias:

(a) El tamaño del cimiento deberá ser mayor que la base de la columna:

(b) B grosor del cimiento deberá ser el siguiente:

(c) Al verter el hormigón en la mitad superior del cimiento:

 CONSTRUCCION DE UN DESAGUADERO DE HORMIGON ARMADO
 
     


 

Preparación del refuerzo de acero

11. Ya hemos dado algunas indicaciones (véase Sección 4.5) acerca del refuerzo con barra de acero para el hormigón. En esta sección va a aprender algo más sobre este tema analizando dos tipos específicos de desaguaderos «monje».

12. Si quiere construir una columna reforzada para el desaguadero de 1,50 m de altura, con una tubería de desagüe que tenga un diámetro interior de 25 cm (Cuadro 48, tipo 4), prepare el refuerzo de la manera siguiente:

(a) Tome una barra de acero para el refuerzo de unos 20 m de longitud, con un diámetro de 6 mm; córtela en tramos de las siguientes longitudes, y fórjelos tal como se indica a continuación:

(b) Ensámblelos como se indica en los dibujos, uniéndolos en los puntos de intersección con alambre recocido blando de 1 mm de diámetro:

13. Si quiere construir una columna reforzada de 2 m de alto, con una tubería de desagüe que tenga un diámetro interior de 30 cm (Cuadro 48, tipo 5), prepare el refuerzo como sigue:

(a) Tome una barra de acero de refuerzo de 25 m de longitud, con un diàmetro de 6 mm; córtela en tramos de las siguientes longitudes y deles la forma que se indica a continuación:

  • 3 tramos de 4,45 m cada uno, en forma de U estrecha;
  • 3 tramos de 1,55 m cada uno, en forma de U ancha;
  • 2 tramos de 2,5 m cada uno, en forma de L.

(b) Ensámblelos como se indica en los dibujos, uniéndolos en los puntos de intersección con alambre recocido blando de 1 mm de diámetro.

 
     
 

 

Nota: Sección 10.9

Construcción de la columna de hormigón armado

14. Tal como se explica anteriormente, para verter el hormigón necesita un encofrado de madera (Sección 10.9). Al construir la columna, proceda según las instrucciones de la Sección 10.7, prestando particular atención a los siguientes puntos:

(a) para mejorar los puntos de conexión entre el cimiento y la columna, efectúe una abertura en la superficie de los cimientos donde se va a asentar la base de la columna y todo alrededor de las barras verticales de refuerzo.


b) Fije la pequena sección del tubo en la prolongación de la tubería ya establecida, en el nivel mas indicado de la zanja preparada y dentro del refuerzo de acero.

(c) Ensamble los elementos del encofrado de madera sin desplazar el refuerzo de acero.


(d) Compruebe que el refuerzo está a una altura uniforme en relación con los lados del encofrado de madera, sin acercarse demasiado a ninguno de los dos lados. Sujételo firmemente en ese punto y fije el encofrado de manera que no se mueva mientras se vierte el hormigón.


(e) Compacte bien el hormigón (véase Construcción, Secciones 34 y 35) sin modificar la posición del refuerzo.


(f) Quite el encofrado con mucho cuidado.


(g) Acabe la unión entre el cimiento y la columna con argamasa común.

10.9 Encofrados de madera para desaguaderos «monje» de hormigón

1. En la Sección 3.4 de Construcción, hemos examinado las indicaciones generales sobre la preparación de encofrados de madera para el hormigonado. En está sección nos ocuparemos más a fondo del diseño especifico de estos encofrados para la construcción de desaguaderos de hormigón.

Preparación de un encofrado de madera contrachapada para pequenos desaguaderos «monje»

2. Para la construcción de pequeños desaguaderos con una altura máxima de alrededor de 1 m, podrá utilizar un encofrado hecho de listones de madera y de madera contrachapada de 1,5 cm de espesor. Los dibujos de està pàgina muestran como construir este tipo de encofrado.

 

Note: SI quiere construir un desaguadero con tres ranuras, añada a este diseño otra hilera de ranuras.

Preparación de un encofrado de tablones de madera para desaguaderos «monje» más grandes.

(Adaptación de un diseño de J. MilIer, experto de la FAO en desarrollo de la piscicultura rural. )

3. Puede construir un encofrado sencìllo hecho de tablones de madera de 3 a 4 cm de grosor. Los dibujos que figuran en esta página y en la siguiente muestran como se puede construir este tipo de encofrado.

Encofrado de madera tamaño medio montado
 
Partes de un encofrado de madera de tamaño medio
     
Parte de un encofrado de madera
de tamaño medio, continuación

   

Note: Si quiere construir un desaguadero con tres ranuras, añada a este diseño otra hilera de ranuras.  


10.10 Regulación de las aguas en una compuerta o desaguadero «monje»

Ranuras y tablas

1. Normalmente una compuerta o un desaguadero están dotados de dos series de ranuras en las que se introducen tablas hasta el nivel de agua deseado. Para evitar infiltraciones de agua, el espacio entre las hileras de tablas se rellena con material apisonado, tales como arciIla o serrín de madera.

2. Mientras el estanque funciona, debe instalarse una rejilla debe instalarse una rejilla en la parte superíor de la hilera frontal de tablas para impedir que los peces salgan en caso de que suba el nivel del agua.

3. Una compuerta o un desaguadero muy pequeños pueden tener sólo una única fila de ranuras y tablas. En este caso, se pueden evitar las infiltraciones introduciendo cintas de tela de yute entre las ranuras y las tablas. También las juntas entre las tablas pueden cerrarse perfectamente utilizando cintas de politeno o caucho.



 

4. Una compuerta o un desaguadero de tamaño mediano pueden tener dos series de ranuras que han de utilizarse de la manera siguiente:

  • en la hilera frontal de ranuras fije una pequeña rejilla en el nivel a partir del cual desea quitar el agua;
  • la hilera posterior de ranuras debe Ilenarse por completo de tablas hasta el nivel en el que usted quiere mantener el agua en el estanque.
 
Dos pares de ranuras
     

5. Una compuerta o desaguadero más grandes pueden tener tres filas de ranuras que han de utilizarse como sigue:

  • en la hilera frontal de ranuras va encajada una pequeña rejilla para separar por filtración la mayor cantidad posible de material flotante Ilevado por la columna de agua;
  • en las ranuras intermedias debe fijarse una pequeña rejilla en el nivel a partir del cual se quiere sacar el agua;
  • la hilera posteríor de ranuras debe Ilenarse por completo de tablas hasta el nivel en el que usted desea mantener el agua en el estanque.
 
Tres pares de ranuras

Selección de las tablas

6. Las tablas para la construcción de desaguaderos y compuertas deberán ser de madera duradera, resistente al agua y con un limitado margen de hinchamiento, tales como doussie, iroko o mukulungu (cuadro 6).

7. Su tamaño varía según las dimensiones de la estructura pero, en general, deben adoptarse las siguientes normas:

8. Es importante que las tablas de madera no se ajusten demasiado a las ranuras después de que la madera se ha hinchado por la acción del agua. De lo contrarío será muy difícil quitar las tablas cuando se desee.

9. Se puede aumentar la adherencia entre las tablas de madera, puestas una encima de la otra, y reducir las pérdidas de agua mediante:

10. Si el desaguadero es bastante alto y ancho será más fácil quitar las tablas desde arriba, utilizando un brazo con una T soldada en el extremo. La podrá hacer fácilmente un herrero. Detrás de cada tabla fije dos pasadores o ganchos de acero para poderlas levantar.

11. Otro modo de reducir las pérdidas de agua consiste en utilizar una vieja cámara de neumático para hacer una junta hidráulica sencilla de la manera siguiente: